查看完整案例

收藏

下载

翻译
Architects:Cometa Architects
Area:250m²
Year:2022
Photographs:José Hevia
Architects In Charge:Faidra Matziaraki, Victor Gonzalez Marti
Construction:TC-Interiors
City:Barcelona
Country:Spain
Text description provided by the architects. A family of four with a love for architecture and interior design sought for an architect that could respond to a post-pandemic reality: A `work from home space that would not compromise the new uninterrupted floor plan.
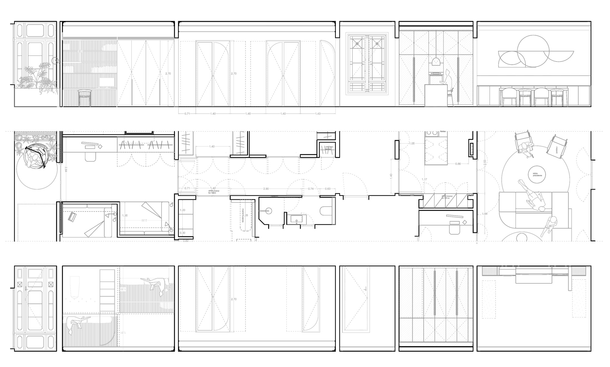
The idea was to create a scenographic narrative using consecutive spatial perspectives generated by full-height doors. Simultaneously, interrupt large amounts of light with small darker ambiances. In addition, the choice of a meaningful materiality that could merge with the remaining treasured elements of the original interiors was a key decision.
This early 20th-century Modernista apartment with daedal Interiors, long dark corridors, a small disconnected kitchen, plenty of service rooms, and dark corners, was a very complicated knot to undo. A new distribution that demanded important structural changes was completed with brand-new electrical, water, and heating-cooling installations.
A `loggia´ corridor- ornamented with a series of custom-made doors is the spine of the apartment. This space opens up in a `secret restaurant´ inspired kitchen where cooking is a meditative ritual for the owners.
The bright monolithic island is surrounded by dark lacquered cabinets. Reaching the living, the ´great hall´ of the apartment, is where the precious ´Noia´ restored floors, brew with the contemporary lighting system and the signature furniture.
The master quarter, opens up to a dark sleek walk-in wardrobe area and from there, to the en-suite bathroom. Custom-made fluted glass screens separate the wet area from the rest, offering a preternatural sensation. This Design & Build complete urban refurbishment includes: architectural concept, details design, structural calculations, permits, project management, construction execution, and restoration works.
Project gallery
Project location
Address:Carrer del Bruc, Barcelona, Spain
客服
消息
收藏
下载
最近


































