查看完整案例

收藏

下载
凉茶,是广东人的味蕾记忆,古老的凉茶文化也随着“苦入心底”的滋味根深于脑海中,但随着时代的推进,凉茶也被赋予新的形式和形象,邓老凉茶以全新的品牌形象和创新产品展现凉茶与时俱进、包罗万象的精神意象。TUSHI design在邓老凉茶北京旗舰店空间设计中,更多地思考东方凉茶铺的创新探索。
项目简介
在北京旗舰店的空间设计中,我们围绕品牌基因里的国医本草茶饮属性,基于“场景体验”和“健康有机”进行空间规划和设计,更深层多元地传达广府凉茶文化的价值。
空间体验适应需求迭代
我们将邓老凉茶品牌VI元素打破重构,让空间有别于传统凉茶店的空间设计,从平面视觉延伸至空间立面,打造空间形式的差异化。
空间外立面映入眼帘的是邓老凉茶的品牌象征,品牌色配合灯光的照射,给消费者带来一定的视觉冲击力,为了避免尺度失衡,采用木饰面中和色彩之间的紧张关系,使整个空间的视觉感受对于人的心理层面是接纳状态的,以柔和的方式告知品牌的存在,这也是我们对适度设计的诠释。
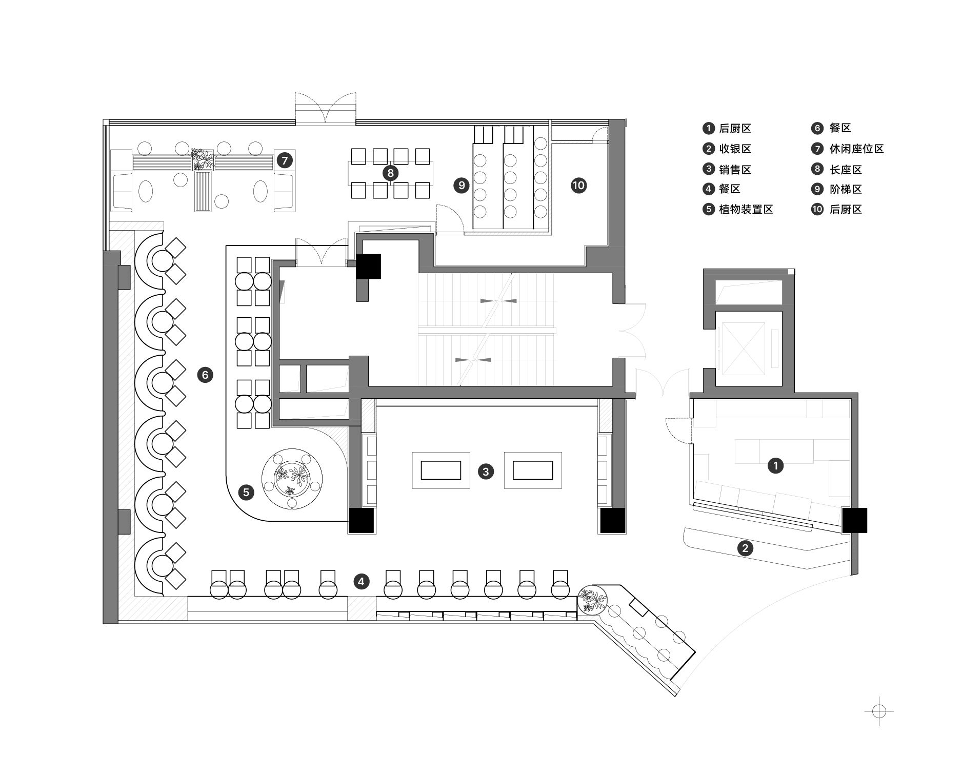
△ 平面图
△ 功能分区
品牌希望呈现养生茶饮带来的健康舒适生活体验,我们以轻盈流畅的空间线条划分区域,注重人的休闲、洽谈、观赏的需求,不同功能区域与装饰场景之间相互交织,描绘优雅轻松的空间氛围调性,突破传统凉茶铺的固有印象,邓老凉茶北京旗舰店传达的是中华凉茶文化广阔的创新维度,吸引年轻消费者关注,引领本草茶饮新潮流。
场景构建诉说品牌价值
为了呈现邓老凉茶的品牌调性,我们特地构筑了一个与景观结合的环型休息区,中间的植被顺着光向上而生,以木色的中医药柜墙为背景,两者相互交映,无声述说着自然的生命力场。
墙面细节处呈现品牌核心价值观和“六味珍材”视觉设计,“背景式”的退守,如中医本草所呈现的性格:含蓄温和但毫不逊色,构建强烈的品牌记忆点,重新构建全新的东方凉茶风范。
线下门店作为品牌文化的载体,需要年轻化的设计语言去表达传统与现代的碰撞力量,其平衡点的探索是关键的一环,邓老凉茶北京旗舰店是我们交出的答卷,欢迎前往品味别具一格的凉茶新体验!
📍「邓老凉茶·北京丰台区·合生广场店」
地址:北京市丰台区果园7号楼合生广场1层23-24号
项目:邓老凉茶北京旗舰店
客户:邓老凉茶
项目地点:北京
项目类型:室内设计
设计团队:TUSHI design
创意总监:梁小笛、林孔仔
空间设计:林灿、黄金锐
摄影:部分图片由邓老凉茶提供
客服
消息
收藏
下载
最近

























