查看完整案例

收藏

下载

翻译
Architects:Paulo Melo e Paulo Andrade
Area:160m²
Year:2021
Photographs:Gabriela Daltro
Manufacturers:Bontempo,Cinex,Grifo,Omni Light,Pavimenti,Portobello,Uniflex Unica,Vallvé
Lead Architect:Paulo Melo e Paulo Andrade
Team:Lara Gama, Leonardo Garcia, Carlos Improta
Construction Management:Thiago Oubinha
City:Barra
Country:Brazil
Text description provided by the architects. Urban poetry is translated in the form of “private concrete”. This is the concept adopted by the office in the recovery of this apartment, in a building from the 60s, in Salvador, with a privileged view of Baía de Todos os Santos.
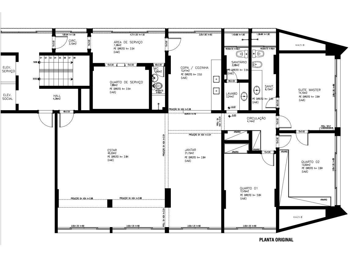
The original project contemplated 01 suite and 02 rooms, all occupying the area that faces the sea. In the renovation, we expanded the master suite creating a closet and increasing the bathroom area.
A guest suite was created in the front area close to the entrance, along with a vestibule, powder room, and home theater, environments that welcome visitors, while leading them to the living room that is now fully facing the sea. The fully open kitchen was framed to take advantage of the view and create cross ventilation. A cement cobogós partition separates the social area from the circulation to the master suite.
The entire concrete structure was exposed and kept visible, in a game of shapes, textures, and shades of gray, proving to be capable of raising awareness. The result is spectacular and rhythmic. The decoration privileges space and confirms the courage of the architects to dare, break parameters and propose the unexpected, creating spacious, versatile environments with an air of a “New York loft”, with a lot of artwork and pieces of Brazilian furniture very well positioned.
Project gallery
Project location
Address:Edifício Porto XXI Apart Service - Av. Sete de Setembro, 3244 - Barra, Salvador - BA, 40080-001, Brazil
客服
消息
收藏
下载
最近
























