查看完整案例

收藏

下载
吐泡泡亲子游泳品牌经过多年的发展,已经成为广州地区知名亲子游泳领域品牌,从品牌创立伊始,我们便全程参与其品牌与空间的设计工作。此次分享的案例为吐泡泡亲子游泳的第五家直营店,也是番禺店的升级版本。
该店位于广州番禺区四海城,是一家商业体内的空间环境,因此原始空间结构相对复杂,电路、给排水、消防等限制因素很多,给我们的设计工作提出了不少挑战,加之去年底疫/情的影响,给施工工作也带来了不少挑战。
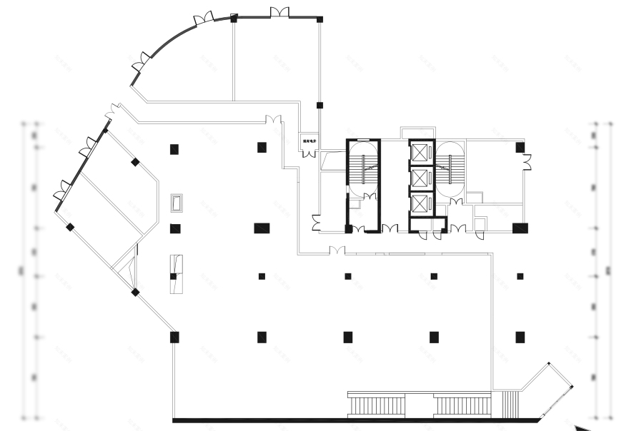
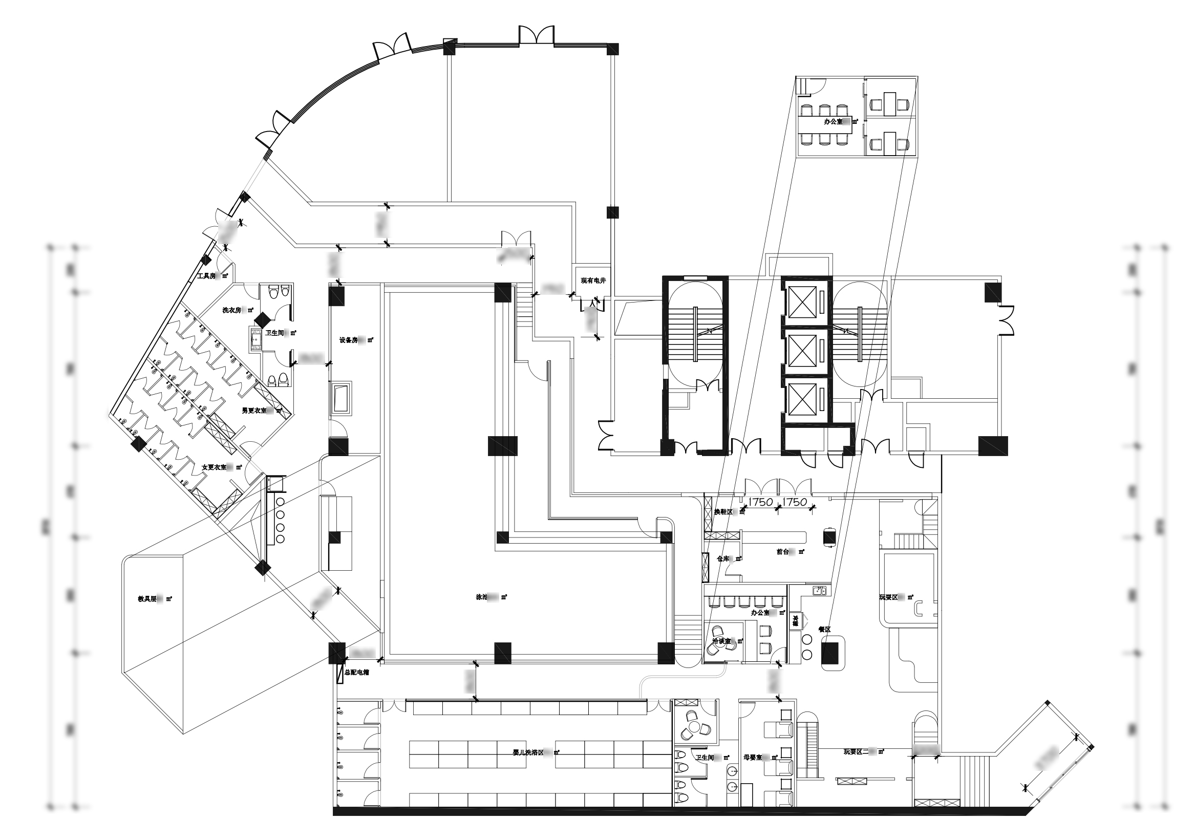
原始平面图。该空间位于商场内部,受建筑影响,两侧入口存在近6米的高差,同时受场地原始结构等限制,对我们的功能布局产生了不小的影响。
亲子游泳馆主分干区和湿区,其中湿区泳池的布局尤其重要,基本决定了整个空间的功能布局,在选定好泳池的位置后,其他功能便可围绕其展开布置,同时利用层高等优势,合理规划办公、仓库、机房等空间。
设计效果图-前台区域。由于两个主入口高差的限制,因此前台的设计我们特别考虑了前后入口呼应的问题。
设计效果图-餐区的设计
设计效果图-玩耍区的设计
设计效果图-玩耍休闲区的设计
设计效果图-泳池的设计
设计效果图-干区到湿区的过渡
施工进行中,现场脚手架的搭建。
施工进行中-玩耍区的搭建
施工进行中-墙面的修补粉刷
施工进行中-墙面粉刷
环境美化中,这一次的场内空间美化,都是由我们设计团队亲自完成的,整场做下来,贴膜手艺直线飙升,也算是意外收获。
保持品牌调性的一致性,我们还拓展了标识系统的设计。(图片节选)
完工照-主入口
完工照-餐区
完工照-玩耍区
完工照-玩耍区与休闲区
完工照-阅读区
完工照-干区
完工照-前台与换鞋区
完工照-干区与湿区过渡区域
完工照-干区视角
完工照-婴儿洗浴区
完工照-走廊
完工照-泳池
完工照-泳池
完工照-泳池观课区
完工照-办公室与洽谈区等
完工照-次入口
项目地址:广州市番禺区四海城
设计单位:意匠工作室
完工时间:2023年2月
客服
消息
收藏
下载
最近

































