查看完整案例

收藏

下载
相较于表皮,骨骼的美感可能会更容易留下印记。
TGS长沙店我们尝试用空间中的骨架作为空间内在结构与外在装饰来展开设计,进入空间的过程犹如进入一个超大构筑物的内部,支撑的骨架,衬底的波浪板材,裸露的螺母等等,将本应藏于内的结构关系暴露于外,是我们想捕获的新鲜感。
当然这样的设想也是源于时下户外运动、城市露营等新生活方式对当下年轻人的影响。人们更愿意到陌生的自然中,从零开始搭建独属于自己的空间。支起帐篷的骨架,附着庇护的篷布,一钉一锤的将逃离城市的庇护所搭建完成。除了搭建的乐趣,露营装备自身的结构和工业美感也深深吸引着露营人。所以我们希望能在一个极度热闹的长沙市中心,搭建一个属于这群城市青年喘息休整的场所。繁忙的工作之余,能到当下最新鲜的审美和生活情趣的设计空间中去。天气好的时候,坐在外摆区露营椅上观望着路人的形形色色或许也是一种对都市的逃离。除了好的场所体验,美食也是治愈心情的利器。我们把充满热气的面包与咖啡设置在入口的区域,这里空间并不宽裕,但客人聚集在这个走廊挑选满柜的美食,好像又把长沙这座城市的热情带到空间里来。面包和咖啡柜后方是一个开阔的用餐区,这里缓解了前方区域的拥挤,让客人可以更放松自由的享受美食的治愈。不管是新的生活美学还是治愈的美食,都是我们生活中需要遇见的惊喜。我们希望TGS能给这座城市带去更有温度的用餐体验。
-
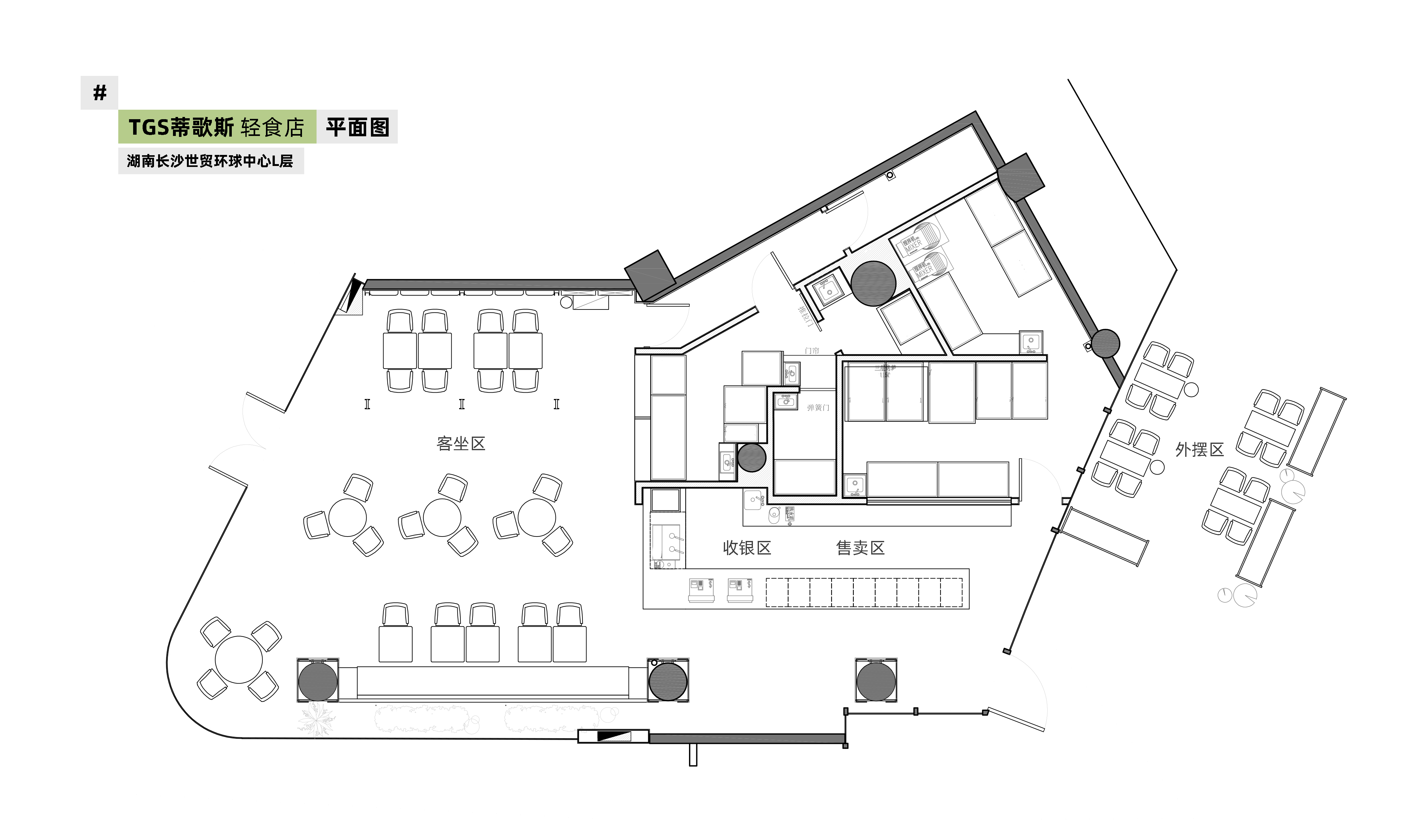
项目名称:TGS蒂歌斯轻食店
项目地点: 湖南长沙世贸环球中心L层
主持设计师:巫国源
项目业主:TGS蒂歌斯
主要材料:不锈钢、水洗石、水磨石、桦木板、绿色烤漆
室内面积:175m2
完工时间:2022.10
客服
消息
收藏
下载
最近









































