查看完整案例

收藏

下载

翻译
Interior Designers:Atelier D+Y
Area:83m²
Year:2021
Photographs:Donghai Guo
Manufacturers:Louis Poulsen,Goldea,LIXIL,Norhor,Schuco,Shanghai Mitsubishi Elevator
Lead Architects:Donghai Guo, Linglin Yan
City:Shanghai
Country:China
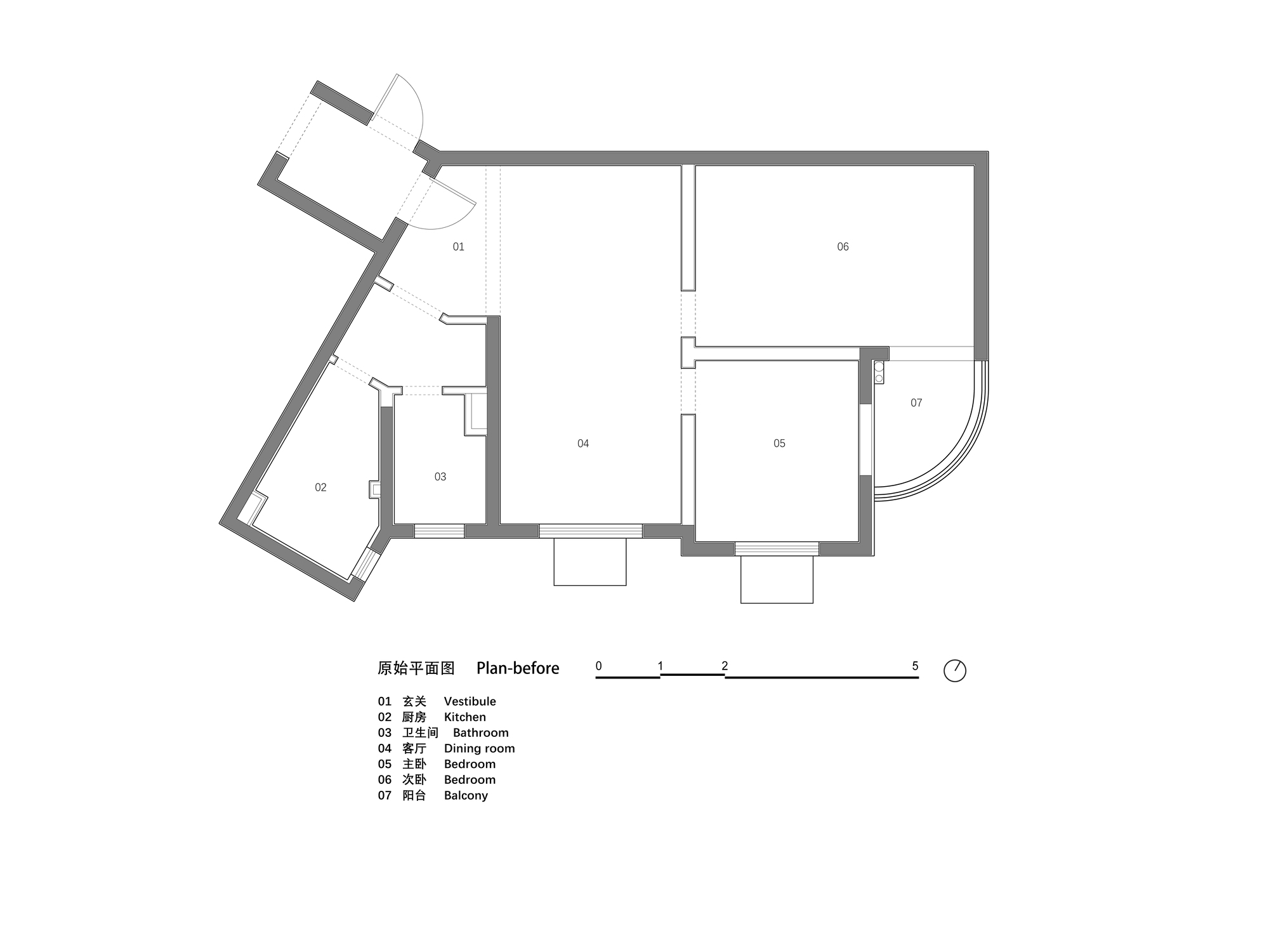
Text description provided by the architects. This is an irregular school district house that can be rarely seen in other cities but in Shanghai. As the necessity of the family always focuses on children’s learning and growth, we moved from the traditional concept of halls and rooms, and reconstructed the spatial sequence within the house. With bookcases set as the house center, cooking zone, dining and reading areas, sleeping areas and other areas were well arranged according to their dynamics, which formed a gradual sequence that interact with the center.
Bookcases as the center of the house:Nearly all non-load-bearing walls were demolished. To construct the wall for parents’ sleeping room, three bookcases were placed together with the thinnest bricks to ensure basic sound insulation. By doing so, more books can be accommodated and accessed from every functional division (living room, reading zone in the dining area, children’s room) of the house. This is to cultivate children's habit of reading in the very first years of their life. We do believe layouts will influence the behavior of people living in the space.
Sequential space:The house is in a gradual sequence. Here, cabinets serve more function beyond storage. From the glass showcase at the door, the operation table where refrigerator and oven seat, the large long table where the family eat, study and make handicrafts, to the children’s room where private activities are carried out, the space in this house is open and in order. In this way, the sightlines of family members will not be blocked, and the utilization of public space is maximized.
The large long table and bookcases constitute the center of activities, which can be seen from both the bedrooms. Imagine how relaxing and reassuring the scene is when children are reading or doing homework, and parents are keeping an eye on kids while enjoying their own space. Again, the spatial layout reshapes residents’ behavior. The long shelf above the large table provides sufficient space for more books and toys. Besides, the 4-meter-wide shelf also increases the feeling of depth as it extends the space sequence horizontally.
Dialogue:We emphasized spatial dialogue to promote people’s dialogue in the space. Sticking to the belief that human behaviors are not supposed to be isolated, we reconstructed two sides of the irremovable load-bearing wall respectively into reading and chores area, so as to pose influence on people through space and encourage adults and children to spend more time in interactions or just enjoy each other’s company on equal terms.
Blending the new with the old:The space adopted simple texture and structure, including the light chartreuse retro wall paint, cherry wood bookcases and furniture, as well as several concrete low beams, which were left exposed without decoration after demolition. With these quaint elements in the space, possibilities are opened for residents to recall the past.
Project gallery
Project location
Address:Jiangpu Road, Yangpu District, Shanghai, China
客服
消息
收藏
下载
最近

























