查看完整案例

收藏

下载

翻译
Architects:Keisuke Kawabe Architecture Office
Area:40m²
Year:2020
Photographs:Koharu Kimata
Lead Architect:Keisuke Kawabe
City:Nagoya
Country:Japan
Text description provided by the architects. This renovation project of the steel-structured old building is titled “FACTORESIDENSE”. The residence was built 45 years ago and is still located in Minato ward, Nagoya, Aichi prefecture, Japan. Our project name “FACTORESIDENSE” is a coined word that combines FACTORY with RESIDENCE. This is because the programs we made are houses and ateliers of some creative offices. And the site is in a housing and industrial mixed area. We refer to materials and details making this area. So the interior we designed is similar to the environment. It is important for us to connect inside experience with local context and historical background.
For example, the columns and beams shapes in the four corners are painted blue to emphasize the fact that it is a generous one-room space. The color blue is chosen as an aggregate of various contexts and fragments of memory.
This site and its surroundings have a broad view of the harbor and the sky. This town, with its scattered factories, is basically gray, and the blue of the road signs emerges as a relative color. The team color of a local baseball team is blue. The fence of the swimming pool of the adjacent elementary school is painted blue, and the roofs of the old wooden rental apartments are covered with blue Japanese tiles.
Walking around this town, we could feel the sense of materials peculiar to a mixed residential-industrial area, such as galvanized steel exterior walls and corrugated tin eaves. In front of a factory with exposed metal piping, aluminum scraps from lathe processing are piled up, and the entire town gives an immediate and wild impression.
The materials and details were studied in this regional context. Walls and floors made of aluminum composite panels, hanging walls made of stainless steel panels, metal-deposited curtains, and furniture made by ironworkers.
Before the renovation, a wooden infill was inserted, but these were dismantled once and the building materials were diverted. 105mm square pillar wood was sliced into 20mm thick pieces and laid on the floor. The benches are made of duckboards and pillars placed on concrete blocks. The existing mortar wall facing the studio was polished and coated with epoxy resin. The entire wall can be written on with markers and erased during meetings.
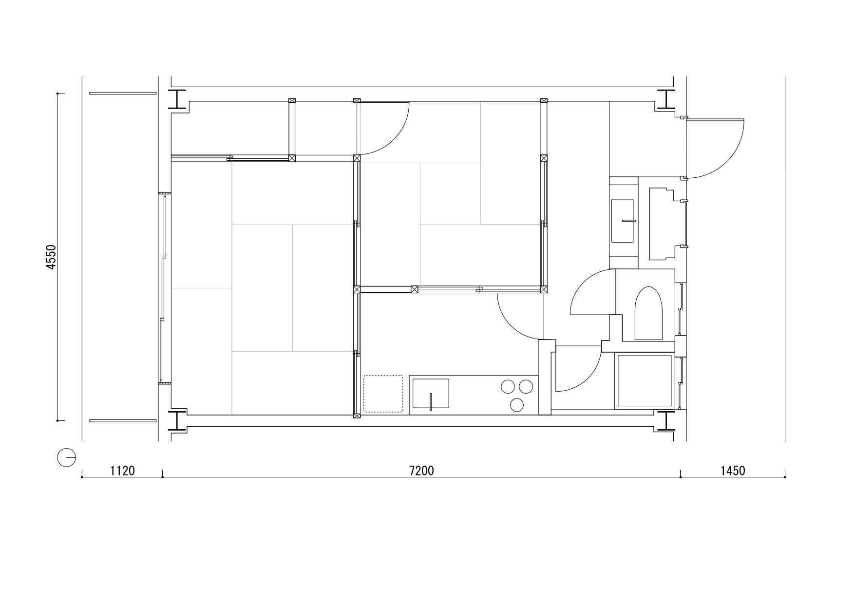
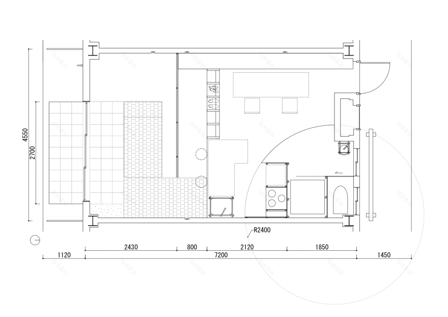
During the demolition process, small niches created by the removal of partition walls, texture changes, and ceiling steps appeared. This is a heterogeneous one-room space that would not be possible in a new building, and we actively and opportunistically used it as a base for a new lifestyle.
Two large geometries, a planar arc, and an elevational arc were inserted into the heterogeneous studio. We aimed to maintain and emphasize the heterogeneity of the one-room space by creating a complete geometric form for the new construction. The arc-shaped thin aluminum wall forms the space gently like a hill. The light coming in from the north-south windows softly reflects the whole space, and a pleasant breeze blows through.
Project gallery
Project location
Address:Minato Ward, Nagoya, Aichi, Japan
客服
消息
收藏
下载
最近

























