知末
知末
创作上传
VIP
收藏下载
登录 | 注册有礼

ADARC 办公室系列丨中国广州丨思为建筑事务所

2022/09/22 11:13:46
查看完整案例
微信扫一扫
收藏
下载
INFO
项目名称:ADARC办公室系列
项目类别:办公空间
项目地点:广州
项目设计:思为建筑事务所
完成时间:2021年
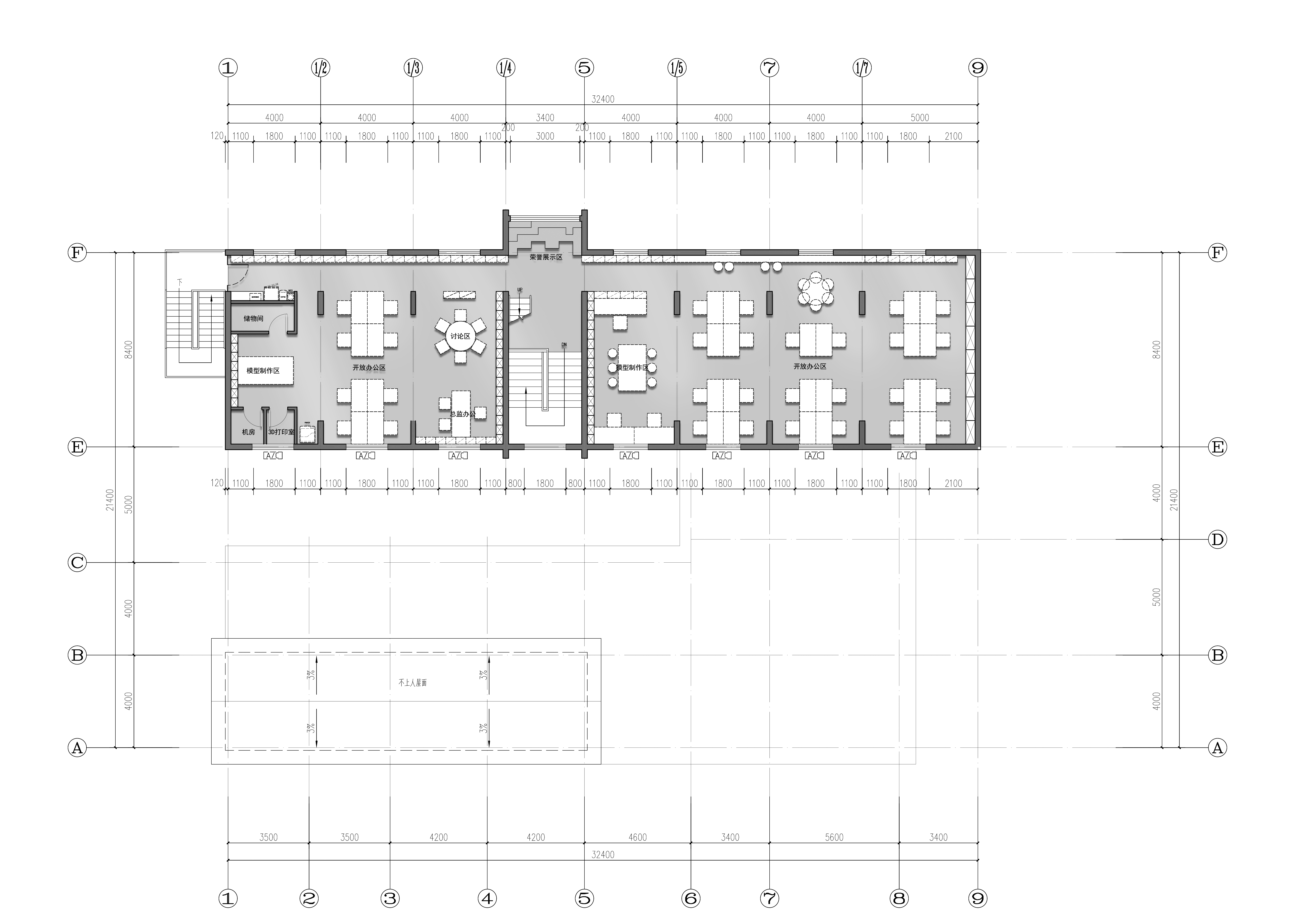
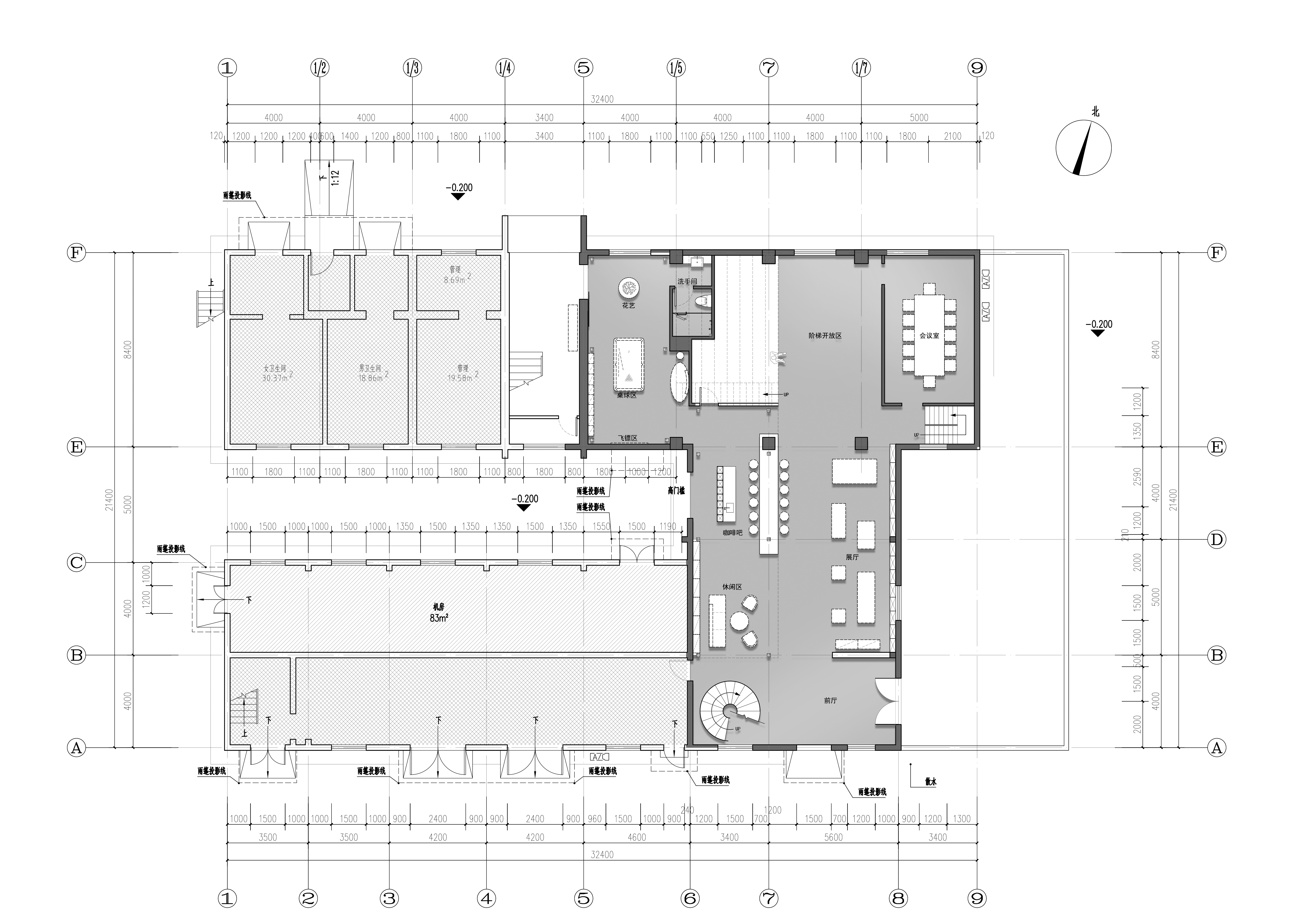
作为建筑师的办公场所,以对建筑美学的热爱,充分利用空间的构造,发挥空间的使用价值,保留原结构,将原始的结构裸露出来。
ADARC 办公室系列丨中国广州丨思为建筑事务所-7
ADARC 办公室系列丨中国广州丨思为建筑事务所-8
ADARC 办公室系列丨中国广州丨思为建筑事务所-9
ADARC 办公室系列丨中国广州丨思为建筑事务所-10
ADARC 办公室系列丨中国广州丨思为建筑事务所-11
ADARC 办公室系列丨中国广州丨思为建筑事务所-12
ADARC 办公室系列丨中国广州丨思为建筑事务所-13
ADARC 办公室系列丨中国广州丨思为建筑事务所-14
ADARC 办公室系列丨中国广州丨思为建筑事务所-15
ADARC 办公室系列丨中国广州丨思为建筑事务所-16
ADARC 办公室系列丨中国广州丨思为建筑事务所-17
ADARC 办公室系列丨中国广州丨思为建筑事务所-18
ADARC 办公室系列丨中国广州丨思为建筑事务所-19
ADARC 办公室系列丨中国广州丨思为建筑事务所-20
ADARC 办公室系列丨中国广州丨思为建筑事务所-21
ADARC 办公室系列丨中国广州丨思为建筑事务所-22
ADARC 办公室系列丨中国广州丨思为建筑事务所-23
ADARC 办公室系列丨中国广州丨思为建筑事务所-24
ADARC 办公室系列丨中国广州丨思为建筑事务所-25
ADARC 办公室系列丨中国广州丨思为建筑事务所-26
ADARC 办公室系列丨中国广州丨思为建筑事务所-27
ADARC 办公室系列丨中国广州丨思为建筑事务所-28
ADARC 办公室系列丨中国广州丨思为建筑事务所-29
ADARC 办公室系列丨中国广州丨思为建筑事务所-30
ADARC 办公室系列丨中国广州丨思为建筑事务所-31
ADARC 办公室系列丨中国广州丨思为建筑事务所-32
ADARC 办公室系列丨中国广州丨思为建筑事务所-33
ADARC 办公室系列丨中国广州丨思为建筑事务所-34
ADARC 办公室系列丨中国广州丨思为建筑事务所-35
ADARC 办公室系列丨中国广州丨思为建筑事务所-36
ADARC 办公室系列丨中国广州丨思为建筑事务所-37
ADARC 办公室系列丨中国广州丨思为建筑事务所-38
ADARC 办公室系列丨中国广州丨思为建筑事务所-39
ADARC 办公室系列丨中国广州丨思为建筑事务所-40
ADARC 办公室系列丨中国广州丨思为建筑事务所-41
ADARC 办公室系列丨中国广州丨思为建筑事务所-42
ADARC 办公室系列丨中国广州丨思为建筑事务所-43
ADARC 办公室系列丨中国广州丨思为建筑事务所-44
ADARC 办公室系列丨中国广州丨思为建筑事务所-45
ADARC 办公室系列丨中国广州丨思为建筑事务所-46
ADARC 办公室系列丨中国广州丨思为建筑事务所-47
ADARC 办公室系列丨中国广州丨思为建筑事务所-48
ADARC 办公室系列丨中国广州丨思为建筑事务所-49
ADARC 办公室系列丨中国广州丨思为建筑事务所-50
ADARC 办公室系列丨中国广州丨思为建筑事务所-51
ADARC 办公室系列丨中国广州丨思为建筑事务所-52
ADARC 办公室系列丨中国广州丨思为建筑事务所-53
ADARC 办公室系列丨中国广州丨思为建筑事务所-54
ADARC 办公室系列丨中国广州丨思为建筑事务所-55
ADARC 办公室系列丨中国广州丨思为建筑事务所-56
ADARC 办公室系列丨中国广州丨思为建筑事务所-57
ADARC 办公室系列丨中国广州丨思为建筑事务所-58
ADARC 办公室系列丨中国广州丨思为建筑事务所-59
ADARC 办公室系列丨中国广州丨思为建筑事务所-60
ADARC 办公室系列丨中国广州丨思为建筑事务所-61
ADARC 办公室系列丨中国广州丨思为建筑事务所-62
ADARC 办公室系列丨中国广州丨思为建筑事务所-63
ADARC 办公室系列丨中国广州丨思为建筑事务所-64
ADARC 办公室系列丨中国广州丨思为建筑事务所-65
ADARC 办公室系列丨中国广州丨思为建筑事务所-66
ADARC 办公室系列丨中国广州丨思为建筑事务所-67
ADARC 办公室系列丨中国广州丨思为建筑事务所-68
ADARC 办公室系列丨中国广州丨思为建筑事务所-69
ADARC 办公室系列丨中国广州丨思为建筑事务所-70
ADARC 办公室系列丨中国广州丨思为建筑事务所-71
ADARC 办公室系列丨中国广州丨思为建筑事务所-72
ADARC 办公室系列丨中国广州丨思为建筑事务所-73
ADARC 办公室系列丨中国广州丨思为建筑事务所-74
ADARC 办公室系列丨中国广州丨思为建筑事务所-75
ADARC 办公室系列丨中国广州丨思为建筑事务所-76
ADARC 办公室系列丨中国广州丨思为建筑事务所-77
ADARC 办公室系列丨中国广州丨思为建筑事务所-78
ADARC 办公室系列丨中国广州丨思为建筑事务所-79
ADARC 办公室系列丨中国广州丨思为建筑事务所-80
ADARC 办公室系列丨中国广州丨思为建筑事务所-81
ADARC 办公室系列丨中国广州丨思为建筑事务所-82
ADARC 办公室系列丨中国广州丨思为建筑事务所-83
ADARC 办公室系列丨中国广州丨思为建筑事务所-84
南京喵熊网络科技有限公司 苏ICP备18050492号-4知末 © 2018—2020 . All photos and trademark graphics are copyrighted by their owners.增值电信业务经营许可证(ICP)苏B2-20201444苏公网安备 32011302321234号
客服
消息
收藏
下载
最近