查看完整案例

收藏

下载
项目名称/ FA OFFLINE女装店
设计机构/ 宁波ABD魔戏空间
项目地址/ 浙江宁波
主要材质/ 艺术涂料、玻璃、金属
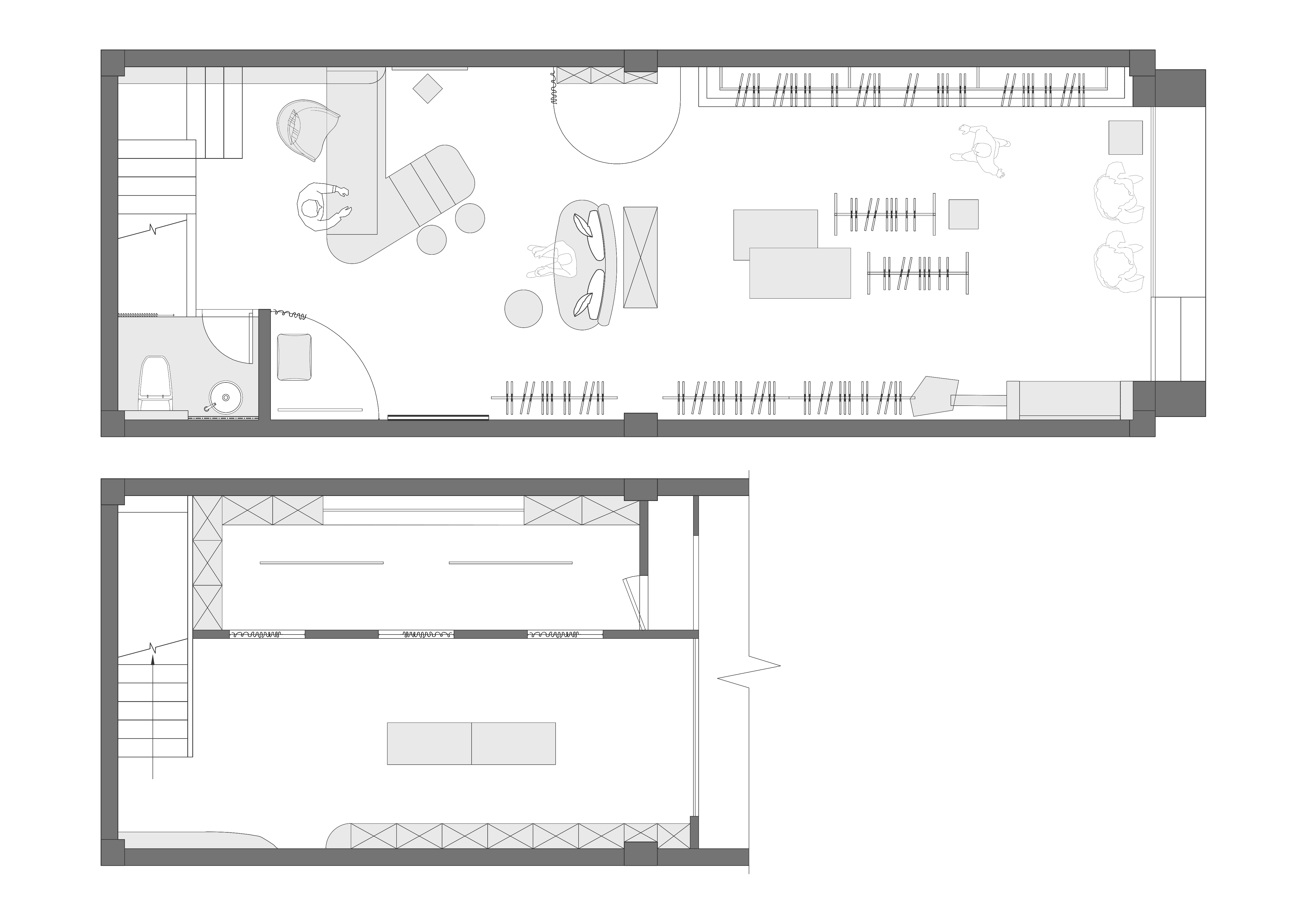
项目面积/ 76m²
完成时间/ 2022.03
项目负责/ 张博 创意设计/ GG女士 设计总监/ Waison
设计团队/ Rush Eva
效果图表现/ Saisen
施工团队/ 中土华夏(北京)建设有限公司宁波海曙分公司
空间色彩
-
空间内色彩以白色和灰色为基调,干净精致的气质感自然流露,引入浅咖色,舒适的色彩搭配,柔和且充满了出众质感。同时,点缀少许温暖的橙红色,为空间注入活力,让整体空间呈现含蓄又明快的氛围。
空间材质
-
空间整体利用艺术涂料作为基础,细腻柔滑的触感,碰撞哑光的金属材质,从而给人精致的感受。通透的玻璃在增加了明亮度的同时,加强了室内外的联系。石材的使用也是空间中的小亮点,打造丰富的空间层次,营造品质氛围。
门头外立面
-
FA OFFLINE地处繁华街道,附近有多家服装店,想要脱颖而出,门头的设计也是一个重点。门头整体选用了石材并进行了分割块面的处理方式,打造出了立体法式的视觉观感,与其他传统的服装店面区分开来。门外绿植的装设点缀,也为其增加了几分生机与悠闲。
1F服饰区域
-
基于服装是空间的主角,而空间作为一个容器,我们希望能为服装的展示提供适宜且不抢眼的背景,所以我们选择了灰色,优雅且包容。同时,合理划分空间,将陈列装置规整地分布于空间,将功能与动线彼此关联,保持空间服务于人的本质。
空间中设计了休息和交流的区域,舒适的沙发就放置在此,宛如一个敞开式的小型客厅,地毯、抱枕和小茶几共同营造出温暖无拘束的氛围。另外,在室内设计了卫生间,提供店员以及消费者更人性化的体验。
2F奢侈品区域
-
2楼是奢侈品区域,精致而富有现代感的室内氛围,凸显了现代女性的优雅审美。大理石桌面自然的纹理,与具有律动感的墙面相呼应,恰如其分地布置在空间内,打造了空间的节奏感。
▾彩平示意图
▾施工前
▾施工中
▾空间色彩
▾空间材质
▾门头
▾1F服饰区域
▾2F奢侈品区域
▾现场实拍
客服
消息
收藏
下载
最近





























