查看完整案例

收藏

下载
公园,一个城市中最富余生活气息和民众趣味的场所。每天不同时刻,公园里都演绎着不同人不同的故事,这里就像一个容器,盛满普通民众对生活的热忱与希望。晨练的老人、玩耍的儿童、练乐器、组舞队的叔叔阿姨。。。。公园里每天发生的故事深深烙印在城市发展的历史中。当下品牌都在追寻升级与变化。但往往找不到有趣的切入点。廣莲申是一个立足于上海的中点品牌,前两年依靠良好的产品力赢得了消费者的认可,在消费者心里是“地方老字号”的存在,受众大多是有一定年纪的叔叔阿姨。这一次品牌升级我们希望廣莲申在不流失原有市场的基础上,能进入年轻人的视野中。最终我们定下的策略是——将生活感的场景作为突破口,让它既可以连接品牌身上的上海文化与地域产品优势,又可以通过老场景新尝试来做大胆的突破。做到与年轻人对话,实现品牌年轻化的升级,同时摆脱现在泛滥的“国潮中点“的局面。真正的创造出属于廣莲申自己的文化内容。市集、公园、弄堂…等都是我们抓取的概念场景。
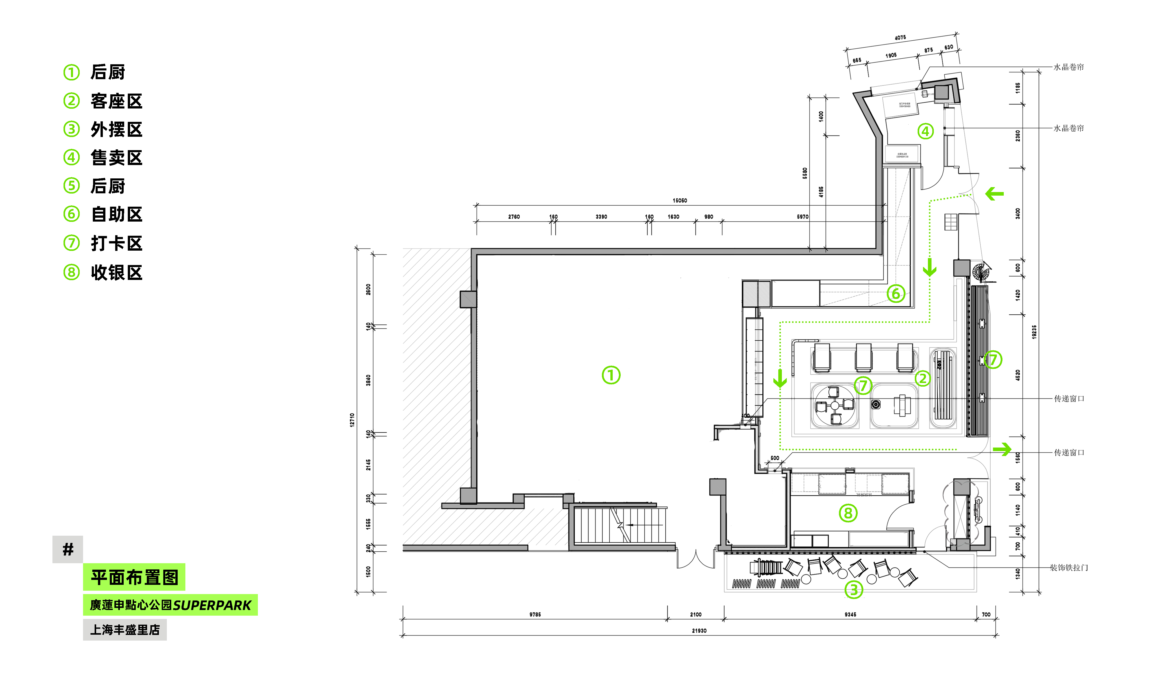
点心公园是廣莲申第三个主题店,我们将产品的销售与生产都贯穿到公园的场所氛围中,空间材料与颜色,都从公园中最有代表性的元素中提取——报刊亭、零食小卖部、儿童转椅、步道、摇摇马,公园长椅…这一切的细节都在给顾客“还原”一个市民公园的样子,但又是一个通过巧妙设计和重组升华后的“市民公园场景”,我们希望呈现给消费者的是一个年轻、时尚、有话题性、有分享欲望的新零售空间。
这是廣莲申的一次新尝试与开端,后续我们还会带来廣莲申各种不同的主题店,呈现完全不同的消费场景。我们希望消费升级并不仅仅局限于“装饰”的表面改变。而是从内而外持续性的输出属于当下的有趣内容,并且使内容能触发消费者自发的宣传和推广行为,通过内容、场所、产品等等与消费者保持对话,保持新鲜感。
-
项目地点: 上海市静安区茂名北路277号101-102
室内设计:或者设计ORDesign
品牌设计:理所设计
设计团队:奕豪、BOBO、小鱼、小鸣、张浩、吕哥
项目业主:廣蓮申
主要材料:不锈钢、金属烤漆、地坪漆、红砖
室内面积:211m2
完工时间:2022.02
摄影:或者设计
客服
消息
收藏
下载
最近














































