查看完整案例

收藏

下载
项目名称/ 汇港鲁匠男士理发&圆和御方&艺术展厅
设计机构/ 宁波ABD魔戏空间
项目地址/ 宁波汇港美术馆
项目负责/ 张博 创意设计/ GG女士 设计总监/ Waison
设计团队/ Rush Tracy
效果图表现/ Saisen Sam
☛ 汇港潮流艺术展厅
展厅
-
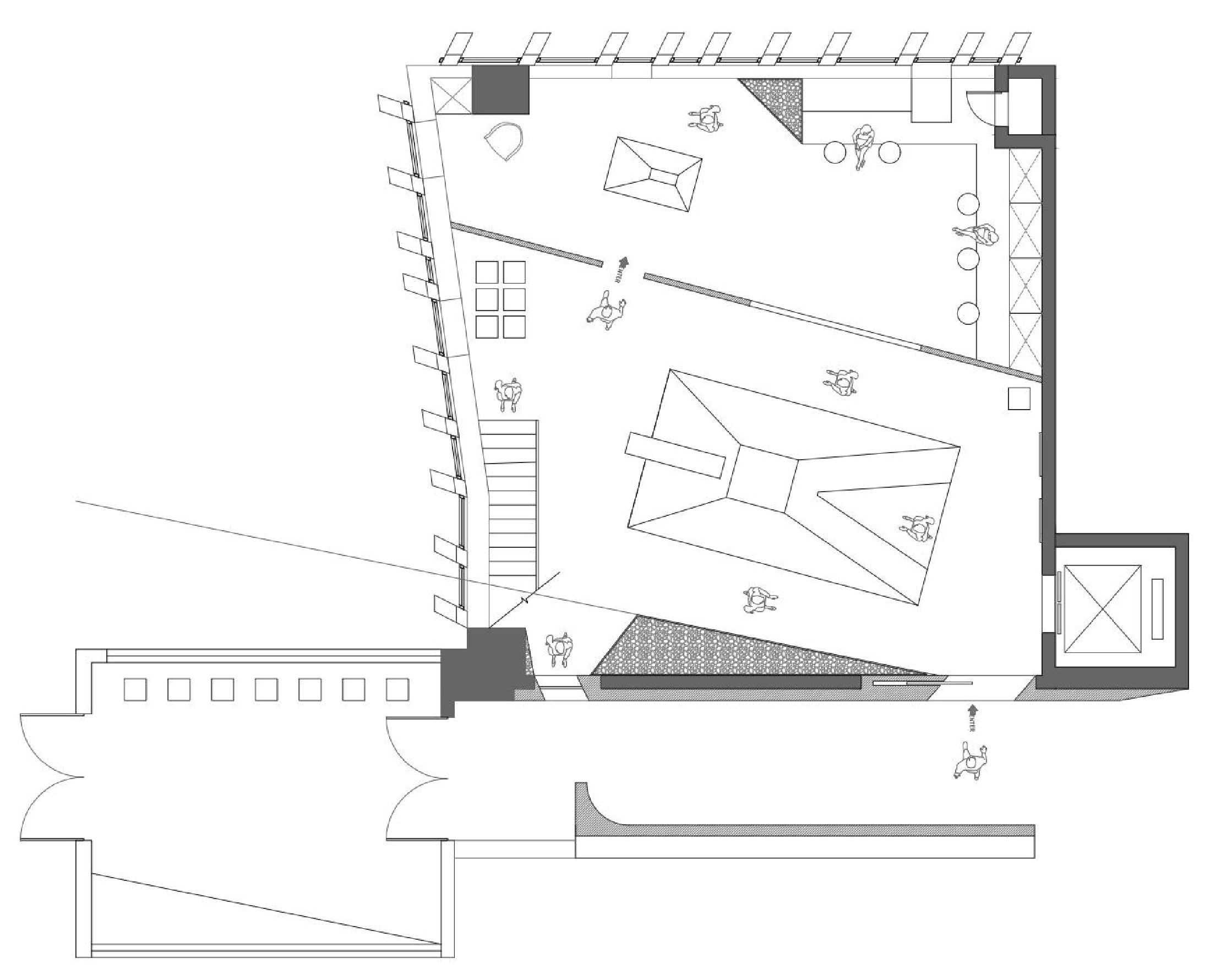
“梯形”是组成空间的主要元素,上窄下宽,倾斜的墙面,打造了一个异形的空间造型,让人在一步一移中感受奇妙的空间体验。在展厅中央设置了一个立体梯形,既分割着空间,又可作为小展厅,是空间内的点睛之笔。
再往里,设置有休息区,不同的几何块面构成了丰富多样化的空间,渐变的绿色为传统的休息空间注入了动态的变化,构成了与外侧相似却又不同的空间姿态。
☛ 汇港圆和御方理疗馆
门套前台接待区
-
用最简单的设计,通过材料和光的互动打造了个性化的门套,灯光的轻盈展现,增强了门头的律动感。进入前台接待区,贯彻极简的设计外,融入了木质和绿植,自然而又具有舒适感,让人瞬间放松下来。
过道与休闲区
-
过道连接了休闲区和接待区。休闲区的设计灵感源于布雷根茨美术馆,设计擭取彼得·卒姆托的建筑艺术语言,以三堵厚墙搭建起内部的轮廓,最大限度引入自然光线的同时,为空间的动线布局、功能分区带来了更大的自由度与可塑性。
办公区域
-
整个办公空间不似传统的办公室,而是吸取了品赏茶的美感之道,结合现代的简约风格,以质朴素色作为底色,好似远离浮华后的返璞,素雅而又静美,打造了一种安谧祥和的禅意氛围感。
VIP区域
-
简练的VIP室内构造,用最少的元素,淡雅的颜色搭配,质朴且具有质感的材质,营造富有品味的理疗环境,让人不再紧绷,而是全身心的放松下来。装饰着些许绿植,自然生趣,让客人在空间内感知静静流淌着的舒适感。
☛ 汇港鲁匠男士理发
门头区域
-
木质结构门面的搭建,金属门把手、复古墙灯、透明玻璃等元素的运用,精心的设计与极致的工艺,让人感受到在硬朗利落的线条下的温和感,体现了男性的稳重与成熟,同时也很好地呈现了复古美式的空间氛围。
店内空间
-
店内布局简单明了,包括了服务台、理发区、等候区和吧台。在整体深色系的基础上,在等候区和吧台引入暖色调的木质元素,是门头的延续,连接着内与外的空间。内嵌式的酒柜设计,皮质沙发的放置,不仅提高了空间的舒适性,还共同营造了轻复古的“美式风格”。
理发区没有明显的分隔,而是运用创意黑色木饰面装置作为区块分割,阻而不断。洗剪一体的设计,合理化利用空间,优化了小空间的闭塞感。
▾展厅彩平示意图
▾展厅空间色彩
▾展厅空间材质
▾展厅
▾圆和御方彩平示意图
▾圆和御方空间色彩
▾圆和御方空间材质
▾圆和御方门套前台接待区
▾圆和御方过道与休闲区
▾圆和御方办公区域
▾圆和御方VIP区域
▾鲁匠男士理发彩平示意图
▾鲁匠男士理发空间色彩
▾鲁匠男士理发空间材质
▾鲁匠男士理发门头区域
▾鲁匠男士理发店内空间
客服
消息
收藏
下载
最近





































