查看完整案例

收藏

下载
项目名称/ ecskid 伊启萌国际儿童教育中心
设计机构/ 宁波 ABD 魔戏空间
项目地址/ 浙江宁波
主要材质/ 木饰面、涂料、玻璃、皮革
项目面积/ 673㎡
完成时间/ 2021.6
项目负责/ 张博 创意设计/ GG 女士 设计总监/ Waison
设计团队/ Rush Tracy
效果图表现/ Saisen
施工团队/ 宁波格左装饰工程有限公司
本能特性远比刻意创造的个性重要
设计师希望用空间转换成一种教育启发,设立了简单直观的环形路线,让孩子通过弯曲的视觉探索空间,激发他们对艺术的兴趣与好奇心,激活孩子们与生俱来的艺术感。
空间色彩
在色彩上,以白色和木色为主,纯净而又清爽的白色,就如孩子给人的感觉,纯真、纯善。不过大面积的白色同样会给人冷瑟的视觉感受,所以设计师采用温柔的木色来中和,为空间增添了不少亲和力,营造出一种温暖舒适的氛围。
空间材质
在材质上,以木质材料为主,大自然的韵味,藏在脉络清晰的纹理之中,给人朴实无华、自由舒适的感觉。简单清爽的设计搭配,本真而具匠心,圆滑的木质,无棱无角,让孩子在这里能够如家般惬意自在。
入口
前台大厅
整个空间内拱形和弧线在这里穿行,圆滑而顺畅,与木质元素一起柔和了整个空间。此外,为了保持室内的干净整洁,设计师在入口处设置了换鞋区,考虑到大人和孩子的身高的不同,放置了高低有致的换鞋凳,便于换鞋穿鞋。
设计师为了打造有趣有序的大厅空间,打破空间内常有的规整,将充满童趣的滑梯融入其中,打造无忧无虑的纯真空间。
绘本区
不同年龄段的孩子每天都会在这里相遇,他们可以自由地交流,与其他孩子合作,让他们在这个空间里作为主动的创造者和探索者。
洽谈区
洽谈区采用的是一个半开放设计,用玻璃连接着空间,使得空间层次更加丰富,在拥有足够隐私的同时,又不会过于拘谨。内部则用全木质打造,犹如进入了一个安全的树洞,平静而又祥和,让交谈变得更加顺利、舒心。
教室区域
教室延续着大厅的风格,但少了些圆润感,多了几分严肃,与休闲的区域得以区分开来。同时,白墙与木质的交叠融合恰到好处,在明亮的灯光下,呈现出一种自由舒适的空间状态。
运动教室不同于其他教室,利用撞色,将整个空间的氛围调动起来,让孩子一下子就能爱上这个活力四射的运动场所。
卫生间
在空间内,设计了大人和孩子的卫生间,在保证卫生安全的同时,更能锻炼孩子的独立性。儿童的专属卫生间设计了不同于别处的拱形门,彰显着它的特殊性,易识别又很贴心。
▾品牌视觉
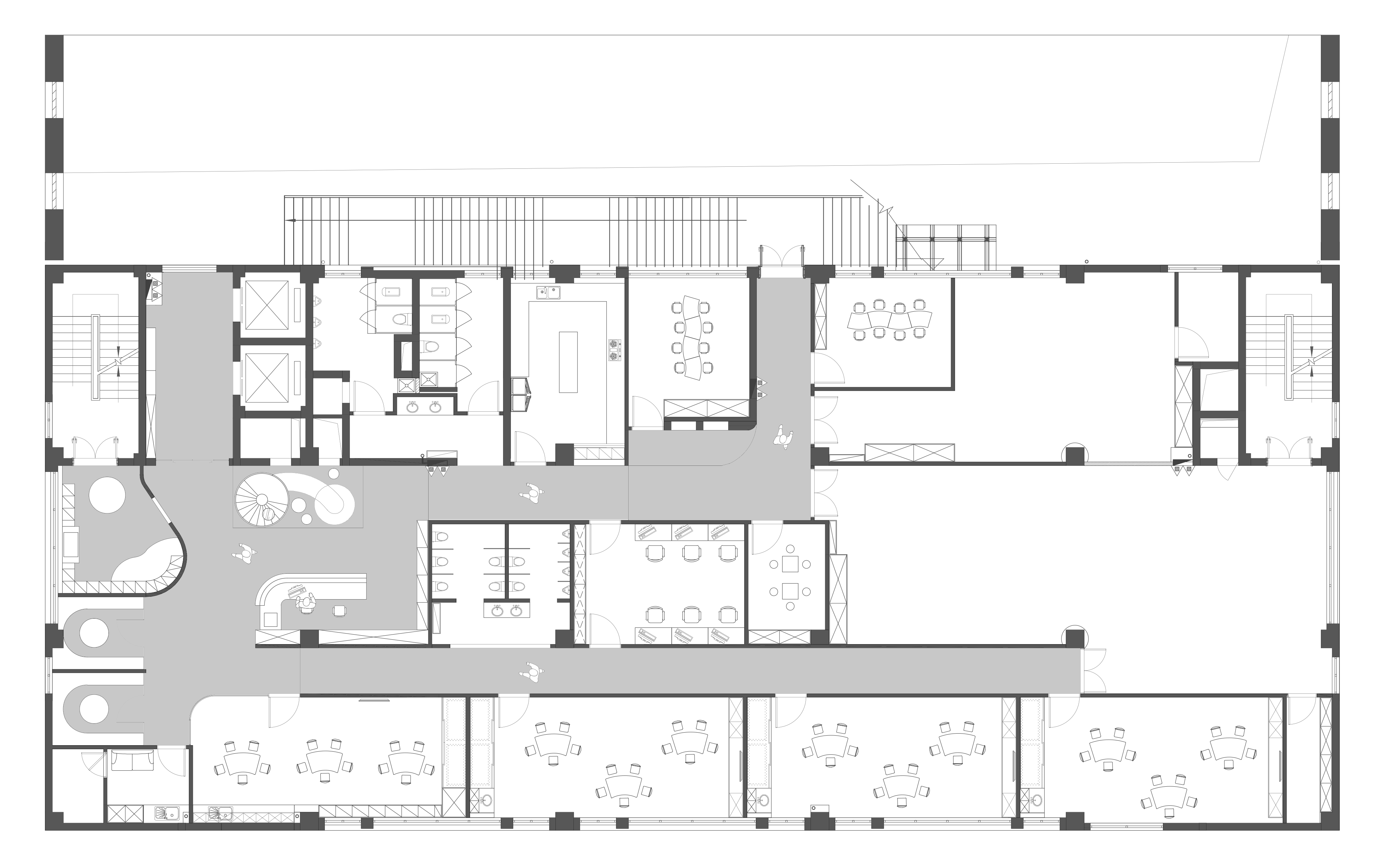
▾彩平示意图
▾施工前
▾施工中
▾空间色彩
▾空间材质
▾入口
▾大厅
▾绘本区
▾洽谈区
▾早教教室
▾托班教室
▾多功能教室
▾运动教室
▾现场实拍
客服
消息
收藏
下载
最近











































