查看完整案例

收藏

下载

附件

翻译
Architect:+Tridente Boyce
Location:Tonsley, South Australia
Project Year:2021
Category:Offices;Warehouses;Factories
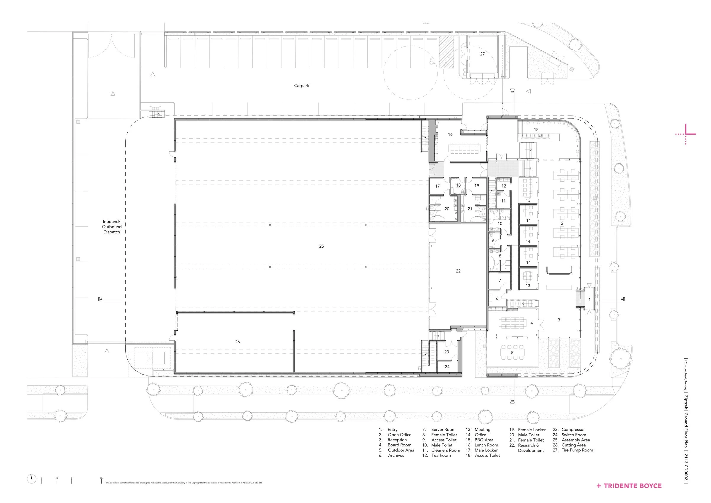
Ziptrak is a commercial manufacturing facility located in the Tonsley Innovation Precinct. The district integrates industry, education and training, research, residential and community services, an initiative of the South Australian Government under the guidance of The Urban Renewal Authority.
Ziptrak is the manufacturer of a patented track guided outdoor blind system, developed in South Australia and exported to fourteen countries. Previously located within four separate sites, the brief was to develop a single facility which would house manufacturing, assembly, research, distribution, and offices as well as creating a unique identity for the brand.
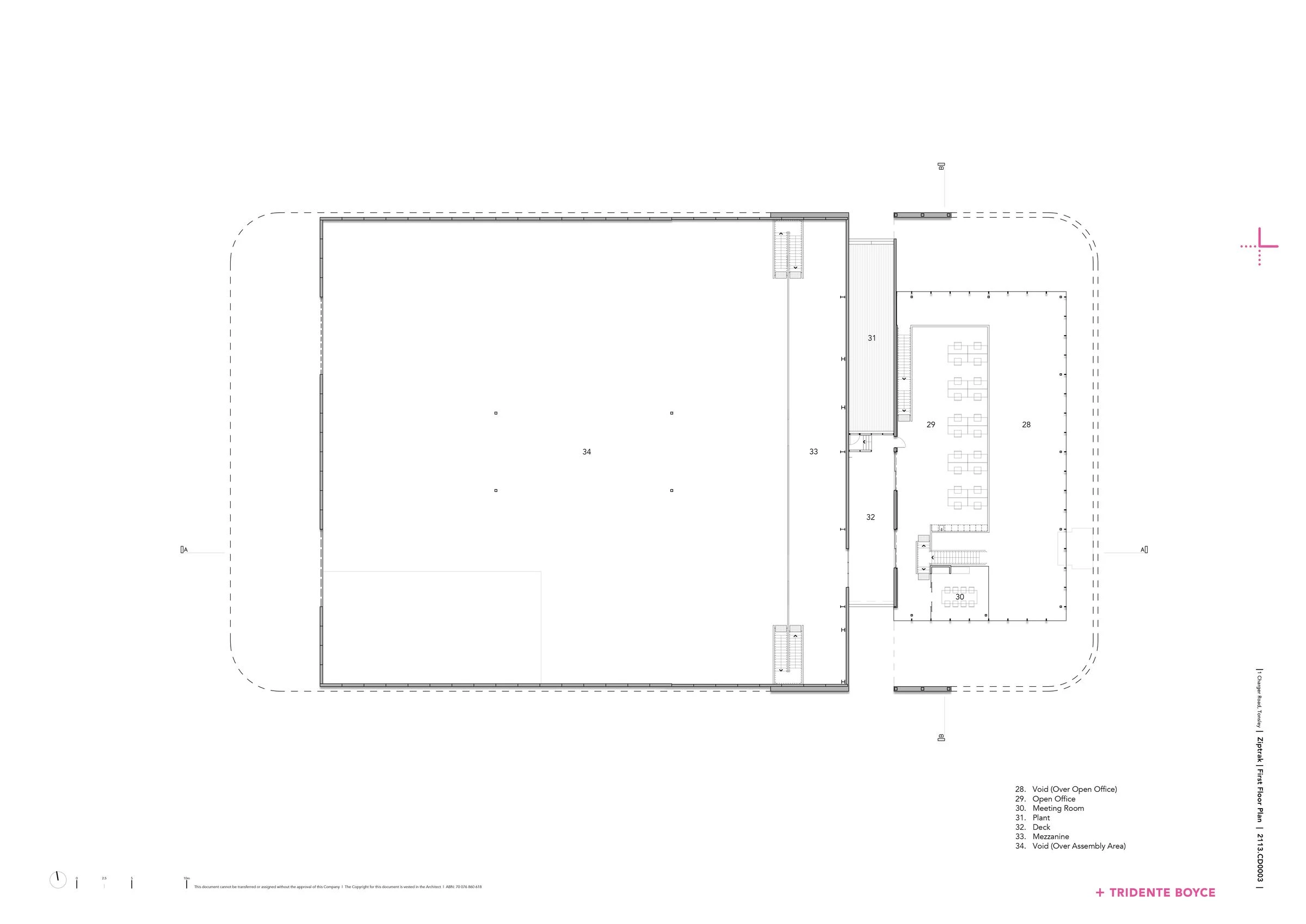
The site is programmed for deliveries and dispatch to the rear with direct access to the assembly and manufacturing area. The offices are housed in a two- storey glazed volume with an open mezzanine floor which is protected from direct solar entry with large overhangs. The ground floor accommodates open offices, meeting rooms, reception, and a display area.
The concept was developed as a singular composition, scaled to reflect the functional requirements for high bay storage and for all offices to be visually connected to the outside.
The required proportions of the building and the decision to adopt a singular composition are quite different to how Australian factories are traditionally handled, typically a small box attached to a bigger box, resulting in an enormous scaled building. Different materials were introduced, on displaced planes, which provided a mechanism to reduce the bulk and scale of the building, naturally ventilate the assembly area and provide protection to the glazed office volume. The planes are anchored to the ground and conceal the support structure to the large overhangs protecting the external areas and glazed walls to the offices. The curves were adopted to further soften the hard edges of this large building.
The result is a facility that forges a unique identity for Ziptrak.
Architect - +Tridente Boyce
Builder - Kennett
Civil, Structural & Services Engineer - TMK Engineers
Project Manager & Superintendent - Cushman & Wakefield
-Fielders Spanform
-Austral GB Honed Concrete Block - Nickel
-Precast Concrete Panels – Nawkaw Dark Charcoal Concrete Stain
-External Aluminium Window & Door Frames – Natural Anodised Aluminium
-Honed Concrete with Satin Sealer - Natural Grey
-Nolan Carpets Surimi GX3016 - Charcoal
-Forbo Surestep Original Slip Resistant Sheet Vinyl - Charcoal
-R10 Vitra UNI Slip Resistant Ceramic Floor Tiles - Grey'
-Boardroom Joinery – Briggs Veneer Ecoligna Shale Crown Cut Natural Timber Veneer
-External BBQ Bench Top - Honed Concrete
-Joinery Generally Laminex Plastic Laminate - Polar White
-Custom Boardroom Table & Reception Counter – 316 Grade Stainless Steel, Class 4 and Linished finish.
▼项目更多图片
客服
消息
收藏
下载
最近















