查看完整案例

收藏

下载
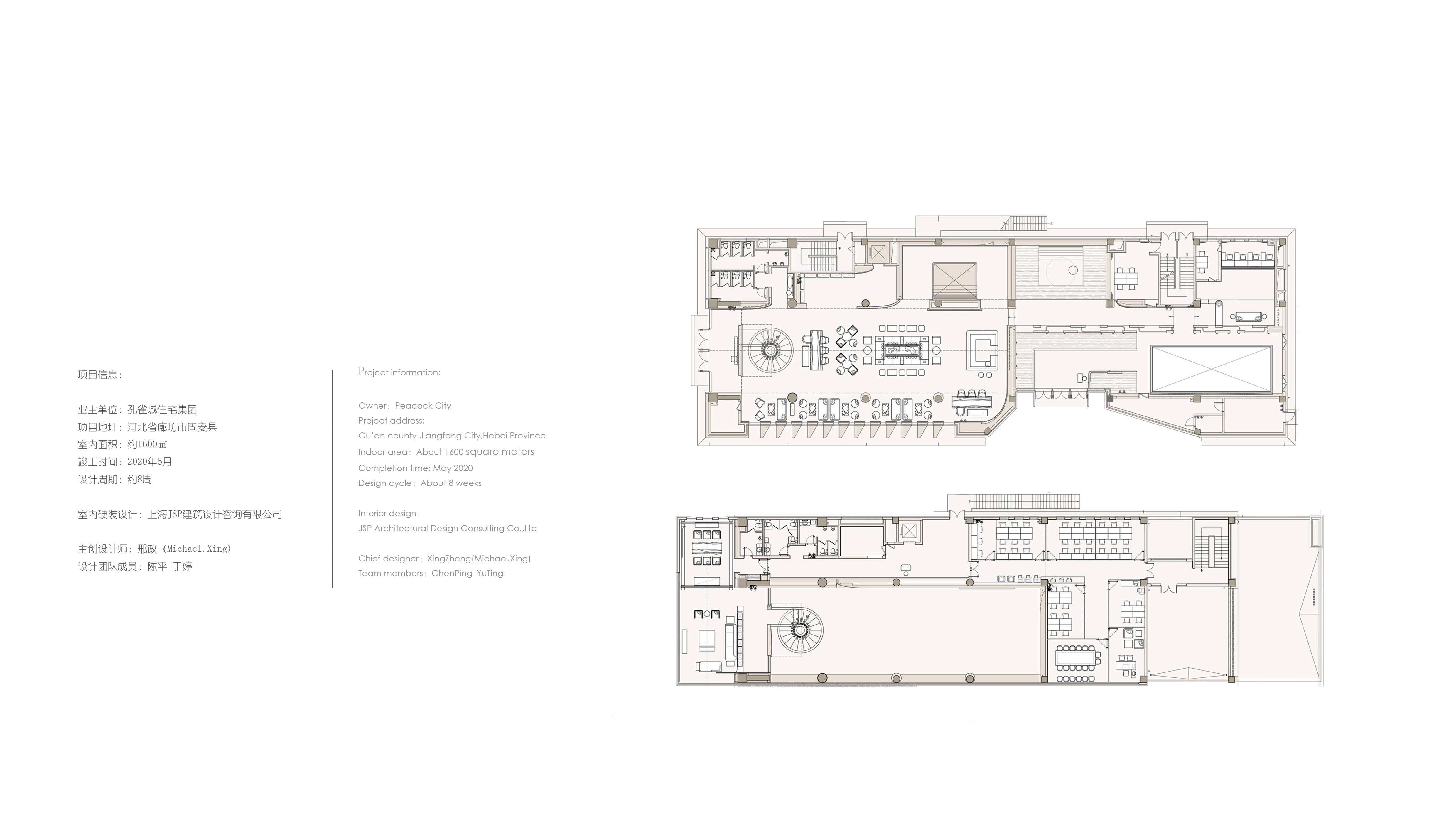
项目名称|“柏悦府”接待中心
Project Name: Boyue marketing center
项目地址|河北省固安中央公园以南
Project Address: South of Gu’an Central Park, Hebei Province
设计面积|约1600 ㎡
Design Area: About 1600㎡
完工时间|2020年5月20日
Completion Time: May 2020
甲方团队|王澎、丁佳、胡毅、李婉璐、赵泽耀
业主单位:孔雀城住宅集团
Owner :Peacock City
室内设计|上海JSP建筑设计咨询有限公司
Interior Design Company: JSP Architectural Design Consulting co.,Ltd
室内设计团队:邢政、陈平、于婷
Interior Design Team:Michael.Xing、Chen Ping、Yu Ting
项目主材|天然石材、柔性石材、盖珂板、亚克力
摄影|MZ STUDIOS
客服
消息
收藏
下载
最近






























