查看完整案例

收藏

下载

翻译
Architects:studioHAUS
Area:7000ft²
Year:2018
Photographs:Ritesh Ramaiah,Jignesh Jhaveri
Manufacturers:Bharat Floorings,Fantini,KOY,Lighting,Rempp Kitchen
Architect In Charge:Kunaal Kyhaan Seolekar
Design Team:studioHAUS
Clients:Mrs. Marushka, Rohan Seolekar
Collaborators:INHAUS ENGENHARIA
City:Pune
Country:India
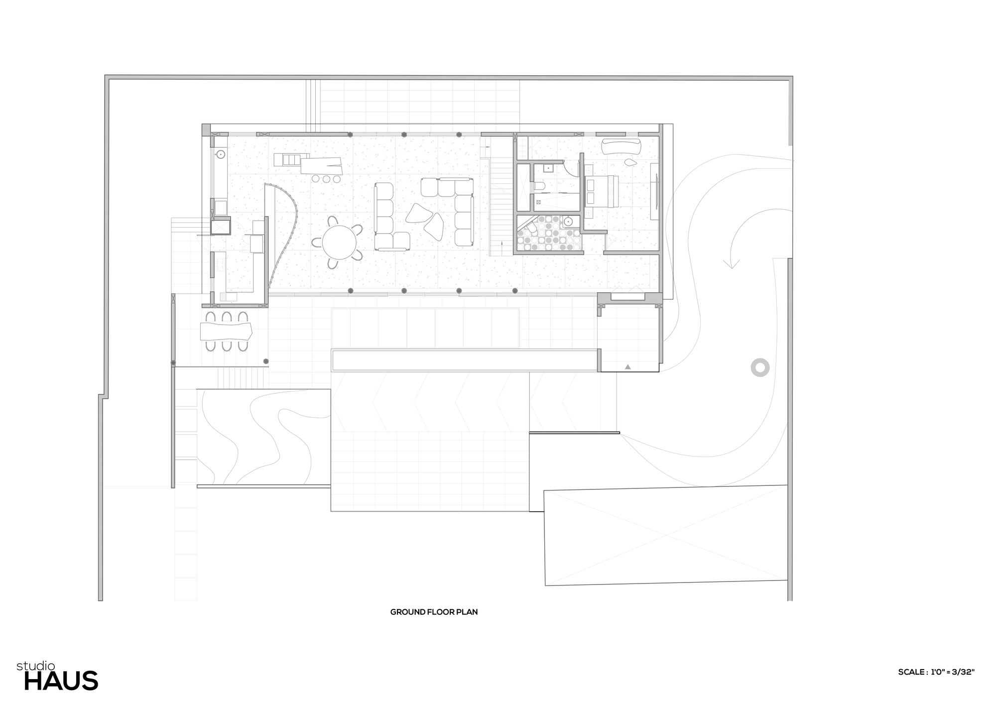
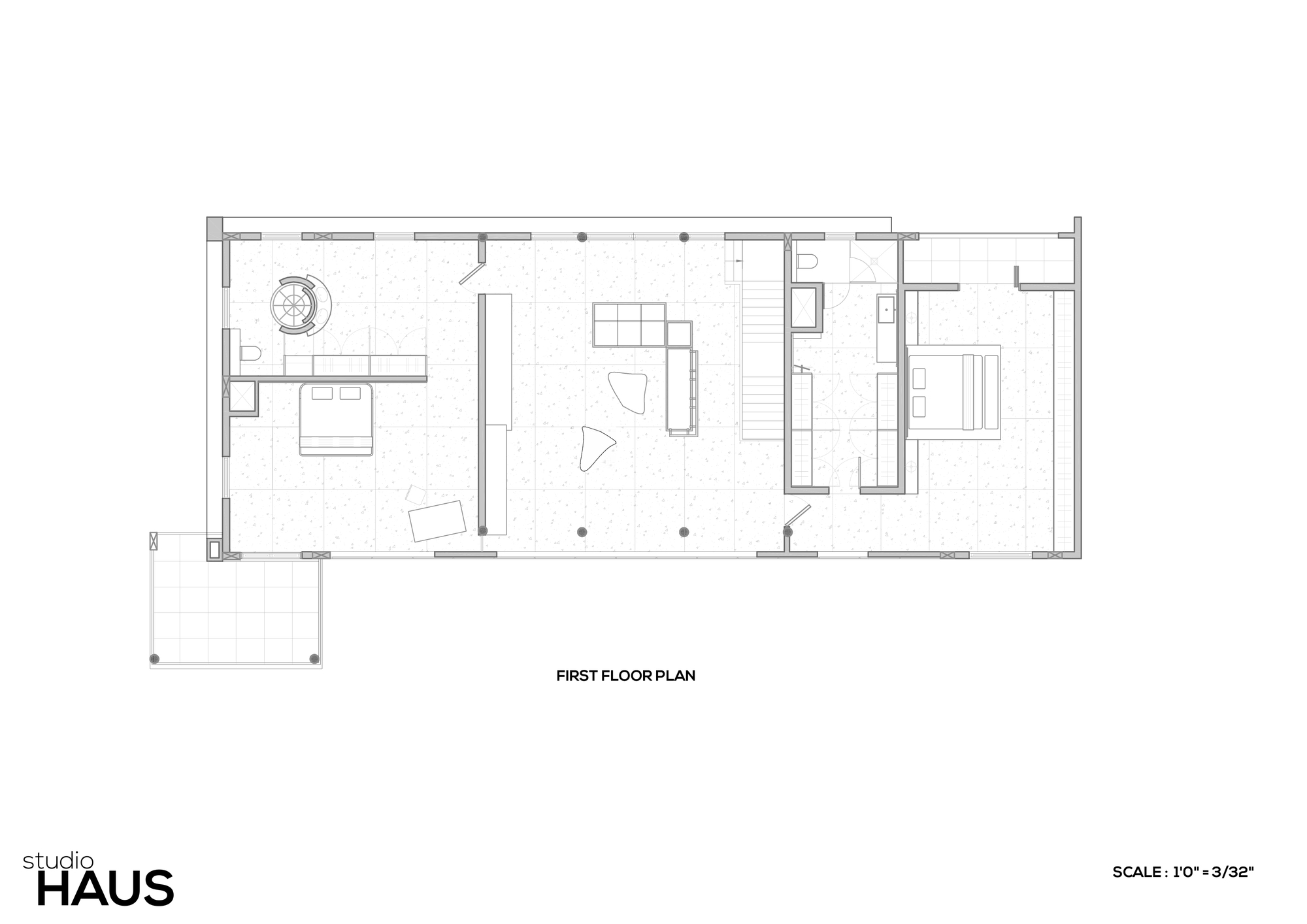
Text description provided by the architects. ParkHAUS, a 7000 sq.ft modern open plan villa, was designed with a contemporary vision. Bespoke luxury takes on a whole new meaning expressed here in every detail through the concept of design and the construction details. A glazed walkway allows you to peek into the basement lounge. With a rectangular floor plate and full-length glass on both sides, the living spaces are undivided with possibilities for expansion and entertainment. The lush, tropical landscape is brought inside the house allowing a panoramic view of the greenery and the monsoon, the true delights of Pune.
Sculptural furnishings designed by Kunaal Kyhaan for his design brand KOY, create a bold dialogue between the white walls and bejeweled seamless terrazzo flooring. Energies associated with the semi-precious stones placed by hand in the white concrete of the floor, cosmically charge different areas of the house. ParkHAUS, a 7000 sq.ft open-plan modern villa, was designed with a contemporary vision. Bespoke luxury takes on a whole new meaning, expressed here in every detail through the concept of design and the details of the construction. With a rectangular floor plan and full-length glass on both sides, the living spaces are undivided with possibilities for expansion and entertainment.
Color is celebrated throughout the space. The lush, tropical landscape is brought inside the house, allowing a panoramic view of the greenery and the monsoon, the true delights of Pune. Sculptural furnishings designed by EDIDA winner Kunaal Kyhaan for his design brand KOY create a bold dialogue with the white walls, including a modular sofa composed of multiple elements in shades of amber and amethyst. The kitchen island is a sculptural interplay of "live edge" wood and stainless steel set against a ‘meat-like’ patterned marble. The basement is an open space with natural light streaming in through the glass walkway above. A Terrazzo floor made of semi-precious stones – quartz, jasper and aventurine - individually hand-set into the cement charges different areas of the house with cosmic energy.
A guest bedroom on the lower level has a concrete ceiling revealing a network of pipes that resembles a subway map, and a marble-clad, Mondrian-inspired bathroom in black and white marble that allows for a sensual shower experience through the rainbow iridescent glass. 100-year-old seasoned teak salvaged from an older property provides a vertical passage up to the private living room. From the outside, it looks like a giant curved feature wall but a secret opening reveals a teardrop-shaped room. Here elegant crockery and prestigious wine bottles are styled to perfection, and wine tastings within the woody space hint at the sensual experience of being inside a wine cellar.
Project gallery
Project location
Address:GWGR+Q8 Pune, Maharastra, India
客服
消息
收藏
下载
最近

























