查看完整案例

收藏

下载

翻译
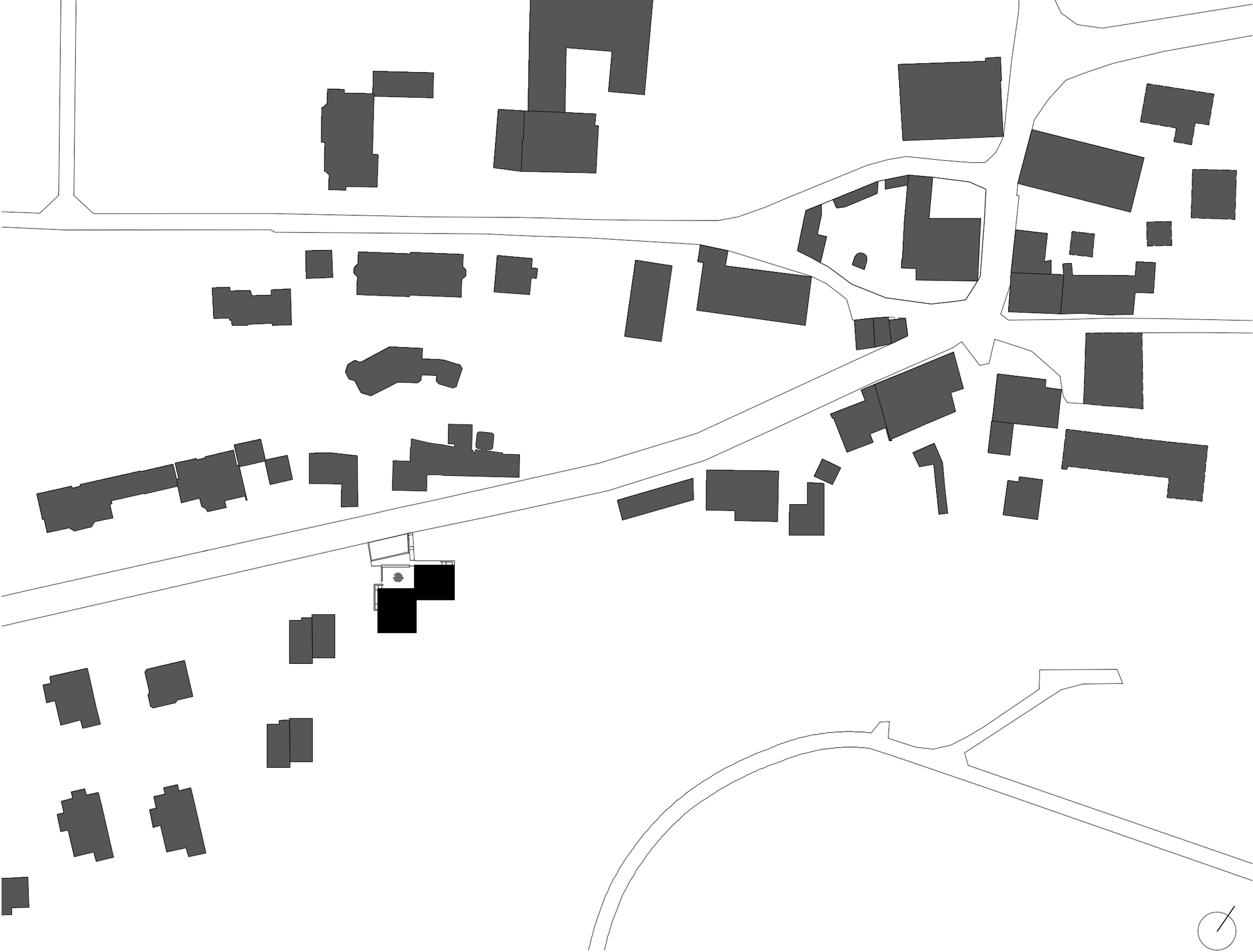
As a contribution to the climate debate, the two houses on the Mont Vully were built with the natural and low-emission materials timber and loam. The client and the architects wanted to create rooms with a good atmosphere and a good indoor climate.
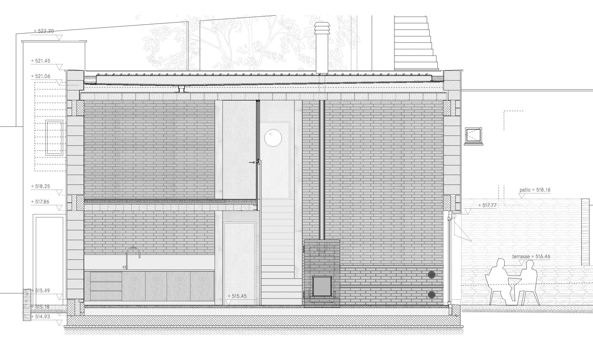
All the interior walls are made of adobe bricks, the pillars and ceilings are in massive timber, the floor is of loam and casein. Instead of plaster only loam rendering with earth colors and without color pigments were used.
We think architects and planners should break new ground, time is ready for a Terrestric Architecture: Terrestric Architecture engenders spaces, buildings, settlements, and cities that fulfill the physiological, social, and cultural needs of its users and considers the needs of the fellow human beings and the environment and the long-term habitability of the Earth.
客服
消息
收藏
下载
最近














