查看完整案例

收藏

下载

翻译
Architects:studiotalca Arquitectura | Ingeniería
Area:543m²
Year:2021
Manufacturers:Cintac,GRUPO SUARIAS,Hormipret,MUEBLE ALUM
Lead Architect:Igor Rodríguez
Structural Calculation:RAÚL ALCAINO, LUÍS ZAMORA, EDVIN CAPO
City:Talca
Country:Chile
Text description provided by the architects. The studiotalca building embodies the revitalization of Chile's architectural heritage, particularly in Talca's historic center. This project has transformed a 19th-century warehouse, once used for furniture manufacturing and left semi-abandoned after the 2010 earthquake, into a modern facility housing coworking spaces and a cafeteria.
Preserving the historical integrity of adobe walls and wooden trusses, while integrating modern reinforcements of concrete and steel, the building stands as a testament to sustainable architectural practices. The structure's monochromatic and distinctive design features a vertical garden that mitigates the western heat exposure, reflecting a commitment to environmental consciousness and design excellence.
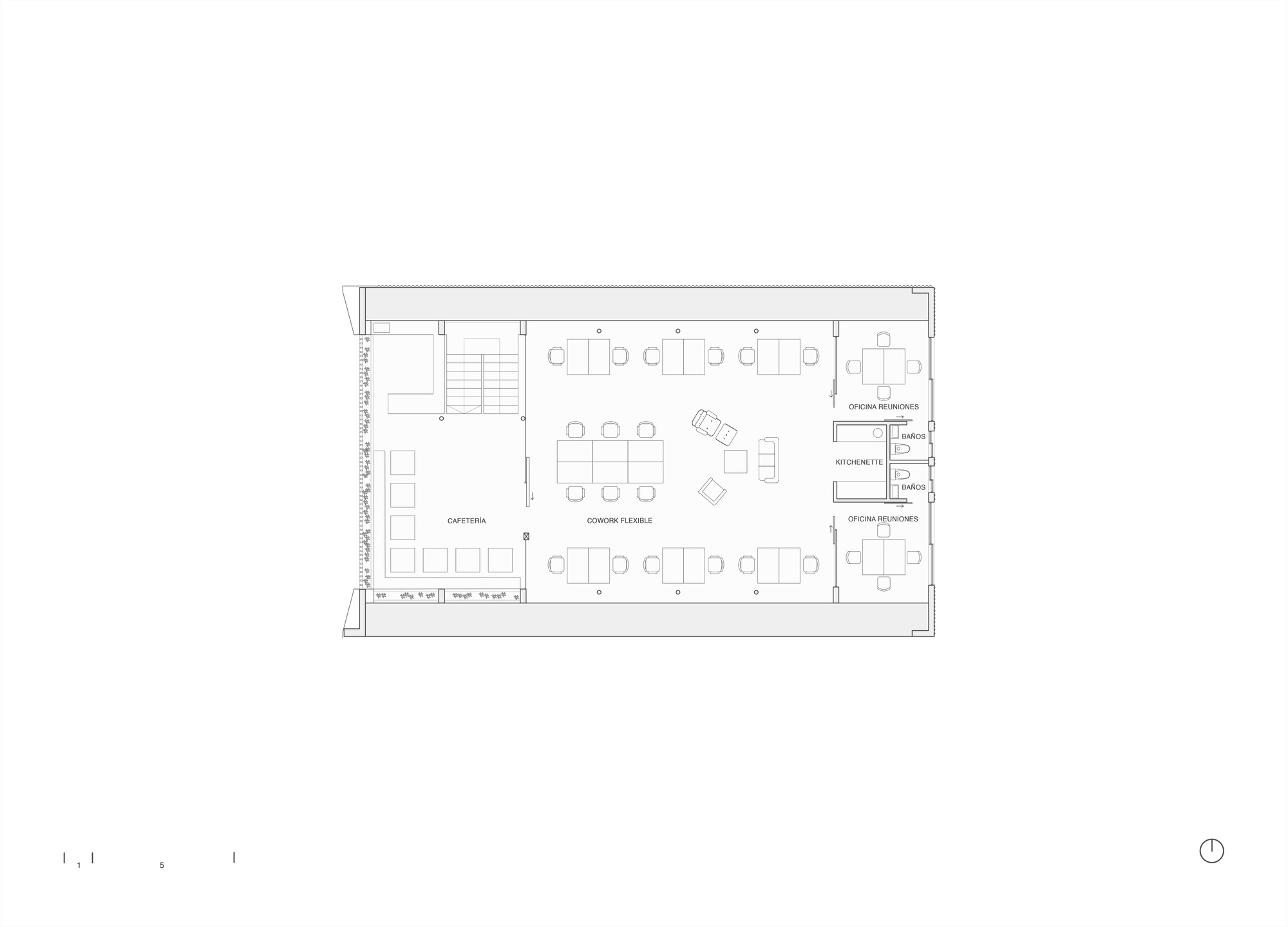
Internally, the building features a diverse range of spaces: parking and service bathrooms on the first level, a semi-open terrace with a cafeteria and flexible coworking spaces on the second, and fixed coworking spaces along with the "studiotalca, Architecture | Engineering" office on the third. It is more than a building; it's a cultural hub aimed at fostering a community of entrepreneurs and creatives, facilitating interactions across disciplines such as architecture, design, art, and technology through its versatile design and public events.
studiotalca is not just a rehabilitation project; it's a catalyst for cultural and creative activity in Talca and the broader Maule Region, aiming to be a central point for innovation and collaboration. Its architectural approach and commitment to preserving heritage while encouraging contemporary use make it a significant addition to the local urban fabric.
Project gallery
Project location
Address:Talca, Maule, Chile
客服
消息
收藏
下载
最近































