查看完整案例

收藏

下载

翻译
Architects:HOHarquitectura
Area:3767ft²
Year:2023
Photographs:Lorena Darquea
Manufacturers:Bostik,Comex,Construlita,Llano de la Torre,Panel Rey
Principal Architect / Project:Héctor Oñate
Collaborating Architect:Gerardo Flores Chapa
Aluminum And Glass Installation:Alumant
Containers:MDC Mercado de Contenedores
Program:Offices inside a warehouse
City:Guadalajara
Country:Mexico
Text description provided by the architects. In a constantly evolving world, where sustainability and innovation are crucial aspects in the construction and design of spaces, a project emerges that exceptionally combines both concepts. It involves offices built from six recycled shipping containers as a structural base, an initiative that demonstrates the possibility of creating innovative, functional, and environmentally friendly spaces.
The project arises from the client's need for flexible offices that could be disassembled and transported in case of needing to vacate the warehouse currently housing these facilities. Since the offices are within a warehouse, insulation was not a problem, allowing cost reduction in structure and slabs.
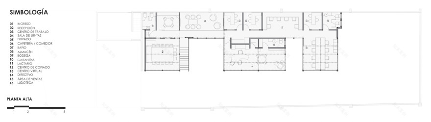
On the ground floor, six 20-foot shipping containers were used as a base, creating 6x5 meter spaces, a suitable size for office areas. These were interconnected with main corridors, forming three modules tailored to the specific needs of the company, with areas for operations, sales, marketing, logistics, meeting rooms, bathrooms, reception, playroom, cafeteria, and independent offices for managers and CEOs.
A highlight of this project is the optimization of materials. Cutouts from the containers were reused for the construction of mezzanines and internal partitions, giving a purpose to each element and contributing to the project's identity. At first glance, one might believe that all offices are merely interconnected containers due to the symmetry and integration of elements such as doors, dividing walls, and ceilings.
The total area of the offices is 350 square meters within a warehouse of 1100 square meters. Light and temperature control was essential due to its location inside a warehouse. Large openings were created, and the structure was hermetically insulated, regulating the climate with air conditioning and allowing the entry of natural light through large windows.
The use of containers and recycled materials reduced costs, time, and the environmental footprint of construction. This resulted in a more industrialized and modular project, with innovative design, functionality, and high architectural quality, while contributing to environmental conservation.
Recycled, reused, and non-polluting materials used in this project include the reused shipping containers for the structure, recycled steel for the structure and furniture, the reuse of container cuts for partitions and divisions, and the composition of double-glazed windows with air chamber for effective thermal insulation.
In summary, these offices built from recycled shipping containers represent an excellent combination of innovation, functionality, and sustainability in architectural design. They demonstrate that it is possible to create high-quality spaces by reusing materials and employing intelligent construction techniques, thereby contributing to environmental preservation.
Project gallery
Project location
Address:Guadalajara, Jalisco, Mexico
客服
消息
收藏
下载
最近














