查看完整案例

收藏

下载

翻译
Architects:PMA madhushala
Area:1596m²
Year:2022
Photographs:Hemant Patil
Manufacturers:Saint-Gobain,Schindler,Tata Steel,Toto,qubn
Structural Designers:G.A.Bhilare Consultants
Builders:Siddhashila Developer
Design Team:Aishwarya Dayama,Divya Jyoti, Prasanna Morey
Plumbing Consultants:Aqua Consultant
City:Pune
Country:India
S NINE is a multifunctional co-working space in the heart of Pune, in a context where developers are on the prowl to exploit the commercial viability of development by adopting a conformist structure enveloped in a glass box that fails to address the aspirations and dynamic requirements of the user.
The project aims to develop:
Sensitive and multifunctional design which is responsive to its surrounding and the end user.
An architectural vocabulary that is timeless and evolved from the ethos of the place and is rooted in the loci physically and culturally.
The architecture is abstracted as an active organism that can breathe, mutate, and transform through seasons and also at the will of the end user, by both its use and expression.
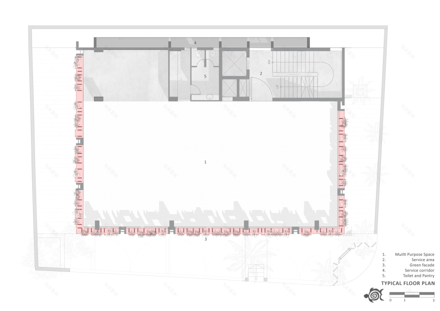
Regional observation, Design adaptation, and Innovation - In the present context buildings with glass envelop result in a nature deficit dull environment for the surrounding and the user. In earlier times, most of the buildings in Pune had planters protruding on the streets. It depicted a unique celebration of life with nature in transitional spaces like balconies and windows. This aspiration has been adopted in the design to create a nostalgia of having plants by the window that can be touched, felt, and watered from the inside to create a distinct bond with users. These planters bring life to the internal environment and create a sense of belonging for the user of the space. The external neighborhood turns lively with the natural planter fenestration. The semi-permeable natural skin serves the dual purpose of planters and a shading device for the building.
Design and strategies for construction - In response to the worldwide spread of air-tight, fully glazed buildings, that in countries like India can largely fail to meet occupant’s expectations and comfort requirements, the S-Nine suggests an efficient and environmentally conscious envelope for hot semi-arid climates. The envelope uses 25mm thick slabs of natural red sandstone, assembled so as to create a grid of planters and fenestrations. In this way, the vegetation becomes a distinctive part of the building's skin. The vertical space of the outer envelope is divided into smaller concrete modules. Vertical stone fins with planters are organically arranged on each of these concrete modules. The modular division makes the construction easier since the stone fins are locally crafted by hand on-site. The modular division also creates an illusion of scale in the elevation.
A unique type of structural innovation is evolved through combining structure and services. The stone fins stand only on two vertical metal members that also have a water supply and discharge system through them. The façade grid is independent of the main building structure, allowing for wide flexibility in terms of pattern and composition. A peripheral column system is adopted for flexible and multifunctional use of the interior space. Additionally, each floor has a special service corridor to facilitate services.
Modularity and Mutation - The asymmetric design and arrangement of planters make a visual pattern that is complete in itself further, it gets enhanced with plants. The organic arrangement of red sandstone and foliage colors weave together to form a composition that is soothing to the eyes of the viewer. The outer envelope acts like skin that changes naturally over time. In the longer run the stone fenestration is changeable. Here the concrete frames are permanent members and the stone fins with planters can be removed. Maintaining the stone fins' independence from the main structure gives the building the freedom to modify its overall architectural expression.
Natural material, zero wastage, and environmental performance - Instead of creating huge glass envelopes, Indian natural red sandstone was selected for the outer skin, for its key features like water absorption, durability, tough build, and quality to outlast artificial materials. Stone sizing has been designed to minimize the wastage of stone. The wastage of stone is utilized in parking floors and compound walls. The water and liquid fertilizer are supplied to each planter with a drip system by gravity. The modular design has made the planters easily accessible for maintenance from individual floors. The fins create a semi-permeable envelope around the building in a way to obtain diffused light in the interior for the most part of the day. Diffused rays through planters also reduce the overall heat gain inside the building.
Circularity with Inclusion of Locals - The stone envelope, railing, and partition walls are crafted on-site with the local stone worker team by avoiding high-tech imported systems, fostering a circular economy. Along with the outer stone envelope, the railing at S Nine is also designed in stone, which is a sandwich of two stones with stainless steel support in the middle. For the partitions of toilets and store rooms, 20mm thick slabs of basalt stone were used. A finished surface can be achieved once the stone has been installed, saving space and cost. Further, the Sculpture at the entrance lobby “Deepstambh”, is an exploration of traditional craft forms into the new era, offering growth and opportunities for the local artisans. The Deepstambh is made out of interlocking modules which decrease in size along with the height. Modules make it easier to handcraft, transport, and assemble it on the site.
Architecture as a living entity - The site sits amidst a rapid sprawl of glass boxes, a result of the misinterpreted definition of urbanization. The inclusion of structures that incorporate nature is a way to connect people to their surroundings while creating a visually pleasing built environment. S Nine is a small step toward creating a green urban neighborhood.
Project gallery
Project location
Address:jag soc, GRMH+52C, behind JW Marriott Hotel Pune, Shivaji Co operative Housing Society, Bhageerath, Shivajinagar, Pune, Maharashtra 411016, India
客服
消息
收藏
下载
最近






















