查看完整案例

收藏

下载

翻译
Architects:The Lab Saigon
Area:1500m²
Year:2022
Photographs:Chimnon Studio
Manufacturers:B+ Furniture,District Eight,Zero Furniture
Lead Architects:Hung Le, Tram Dang
Contractor:DB Plus Creative Interior
Creative Director:Tuan Le
Spatial Designers:Hiep Tran
Account Director:Phuong Anh Nguyen
Account Manager:Anh Nguyen
Documentation Team:Xuan Phan
Country:Vietnam
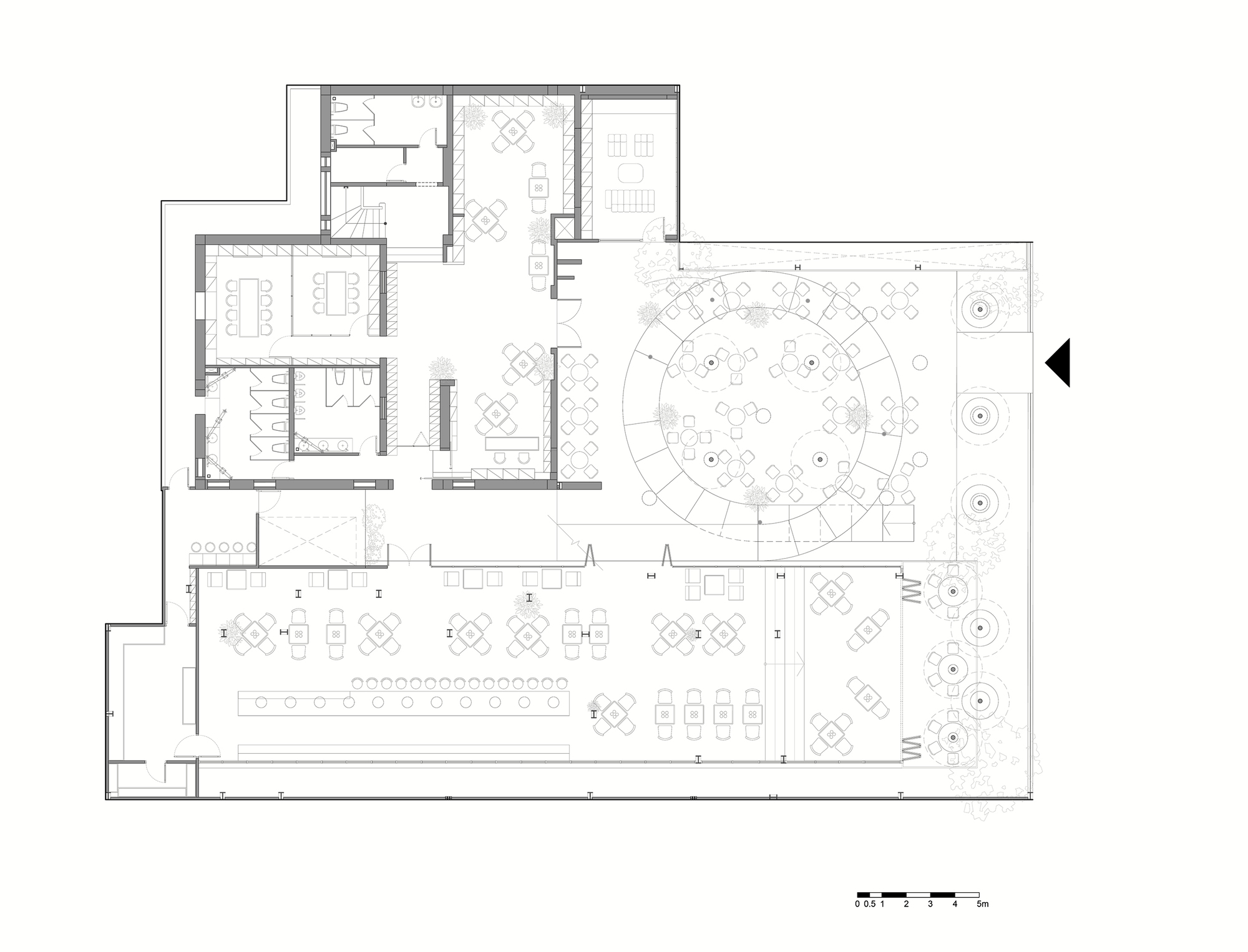
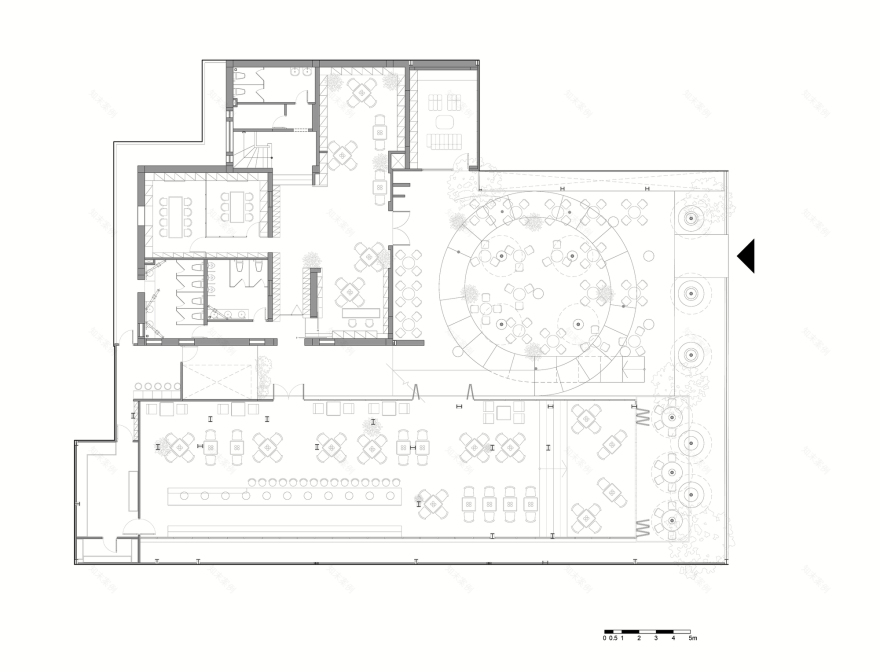
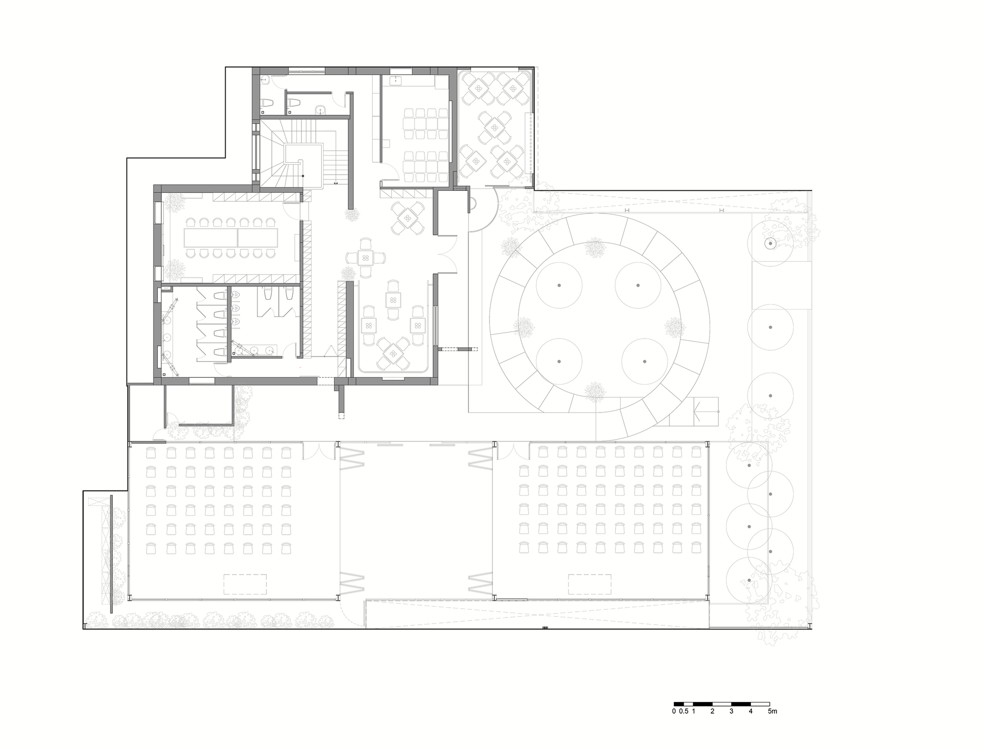
Text description provided by the architects. De La Sól / Shadow is a mixed-concept space in Ho Chi Minh City, Vietnam. A fluid intersection of exhibition halls, cafe lounge, retail displays, and client experience center of Sun Life Insurance (also the primary investor). The Lab drew inspiration from the idea of growth — both a reference to Sun Life’s brand promise and the flourishing Ho Chi Minh City — to design different volumes in the space.
The design layers new elements in view of the old. The historical villa facade stands untouched, in contrast to a new 2-story structure of steel and glass, with both structures connected by an expressive loop staircase. Bespoke rotating kinetic sculptures dot the outdoors, acting as a shading solution and a landmark — and a visual metaphor for growth.
A captivating discovery during the design process was the old villa's structure itself.
After removing multiple paint-plaster layers outside, arch gates from the past, various brick types used in each renovation, and the building's century-old history, were all revealed. The building's history is etched into every brick, a testament to the city's cultural heritage.
Material selection is informed by the villa. Keeping the original brickwork and wooden beams, the designers chose stainless steel for visual contrast and durability throughout Vietnam’s rainy season.
The outdoor deck, framed by the loop staircase, provides a focal point for gatherings,
providing a multi-use lobby for the various programs at De La Sol. The staircase, in turn,
becomes a viewing deck for the different activities happening below and around it.
Project gallery
Project location
Address:244 Pasteur, Phường 6, Quận 3, Thành phố Hồ Chí Minh, Vietnam
客服
消息
收藏
下载
最近



































