查看完整案例

收藏

下载

翻译
Architects:Daxing Jizi Design
Area:168m²
Year:2021
Photographs:Kangyu Hu,Rui Zhu
Construction Contractor:Creativity & Joy Exhibition Company Ltd.
Chief Architects:Wenhai Li, Zhenwei Zeng
The Client:Shenzhen ARTDBL Cultural Development Co., Ltd.
City:Shenzhen
Country:China
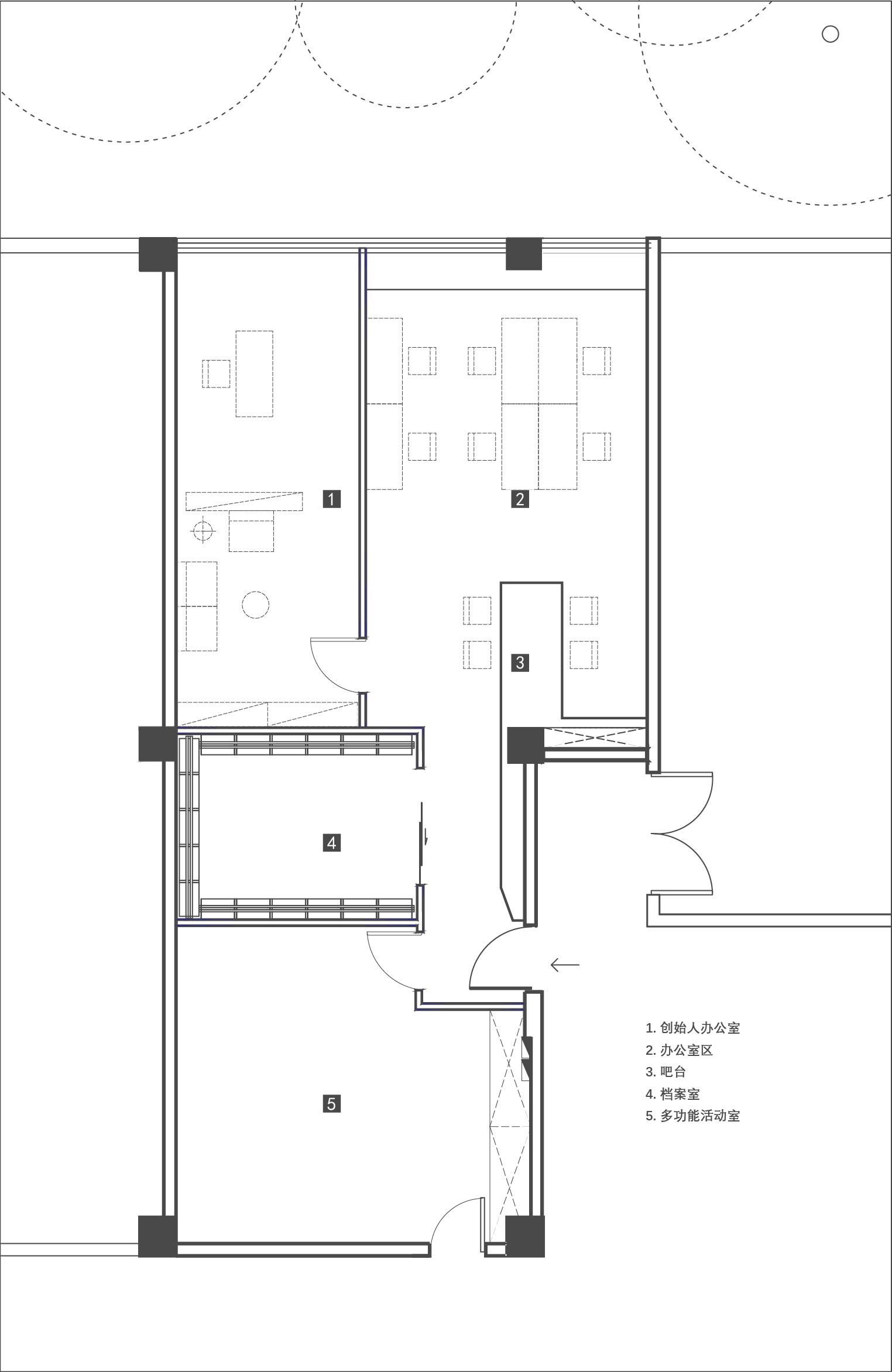
Text description provided by the architects. As one of the most influential professional art media in the Guangdong-Hong Kong-Macao Greater Bay Area, ARTDBL remains committed to producing truthful contents and insightful knowledge. Considering functional and practical purposes, the design aims at providing a quiet and undisturbed space for users to keep focused on contents production. To this end, all items in the space are designed as unnoticeable as possible to avoid distracting the users, and a quality space is created through delicate design of material and structural details.
A Beam of Light--Entrance SpaceThe entrance is made up of four complete metal pieces, each 1.4*2m in size, with a narrow stripe of unopenable glass window in the adjacent wall. Through the narrow window, a long and thin beam of internal light is reflected onto the metal surface and diffused to the outside, inadvertently dramatizing the interfaces between the interior and the exterior, the private and the public spaces. Hence, the metal wall surface feels less cold and distant and the spatial theme of “Look outside the Window” is extended to the south-facing windows of the corridor and the office area.
Look “outside the Window”—Office AreaWith many lush tall trees outside the window, the ARTDBL Office naturally follows the south orientation-based design approach to fully capitalize on the warm sunshine and lush greenery. The views and daylighting through the window make the highlight of the entire office space, and in this way, the theme “Look outside the Window” is continued throughout design and implementation. Entering in the office, one can immediately see a long desk intentionally placed pointing to the window.
The desk extends into the office area and transforms into a bar counter, where people can stay and communicate. The large bar counter naturally dissolves the oppression of the long and narrow corridor and the conflict caused by the corridor’s cutting into the office width. The long side table near the window further connects the interior space with the greenery outside.
The “Introvert” Tower— Archive RoomAt the heart of the office space is an archive room. It is an independent functional space and an iconic spiritual space with high recognizability. The bookshelves are constructed with wood rods and planks, reminiscent of layered eaves. They spiral inwardly into an introvert tower, creating an unexpected yet delightful corner in the tranquil and restrained overall space.
Traditional wood structures generally come with complicated mortise and tenon design to realize concealed joints for bracing and connection. Through orderly arrangements of wood members, their structural connections are made barely visible. ARTDBL’s bookshelves, on the contrary, feature a “highly visible” structure, with exposed connections to highlight the unique beauty of wood and its sturdiness in a very concise and neat structure. The bookshelves are produced and installed with ease.
Along the spatial axis, the metal, wood, paint, acrylic materials with different lusters are slowly woven into the fabrics and rhythm of the space, shaping the warm wooden floor, the high and open office area and the magnetic paint surface for both writing and document presentation.
In lighting design, all light strips in the office area are designed as diffusive lights to weaken environmental oppression on users, and the gentle light can also avoid direct harm to the eyes during long-time working. The flexible space gives ARTDBL the possibility for future expansion.
Project gallery
Project location
Address:A3-403, OCT-LOFT, Nanshan District, Shenzhen, Guangdong, China
客服
消息
收藏
下载
最近






































