查看完整案例

收藏

下载

翻译
Architects:Mole Architects
Year:2022
Photographs:Nick Guttridge,Taran Wilkhu
Main Contractor:Ardmore
Structural Engineering:WME
M&E:Skelly and Couch
Quantity Surveyor:Artelia
Landscape Architect:Shulze & Grassov
Client:Knight Dragon
Project Architect:Hugh Craft, Associate and Project Architect
Masterplanner:HNNA
Timber Frame:B&K
Timber Engineering:Enginuity
Facade Consultant:OPTIMISE
City:London
Country:United Kingdom
Text description provided by the architects. Mole Architects has completed two new purpose-built workspace buildings in London’s Design District on Greenwich Peninsula. The newly-created pedestrian quarter, master-planned by HNNA, features 16 architect-designed buildings and establishes a permanent home for creative industries – designers, artists, and makers of all types. The intentionally eclectic assortment of buildings is arranged along and connected by narrow alleyways leading into intimate courtyards and a new market square.
Studios, floors, or entire buildings are available to tenants – individuals or businesses – at low rates and flexible leases that help creative Londoners kickstart their enterprises after Covid in an interdependent and mutually supportive community.
Mole’s two unique, highly sustainable buildings provide open-plan, top-lit studio spaces. Both are constructed entirely from timber, with exposed beams and wooden ceilings imbuing the spaces with warmth and character, conveying the atmosphere of an old warehouse. The buildings are located along Phoenix Avenue, one facing the market square and the second onto a small square shared with adjacent buildings.
The architects were inspired by a 1950s photograph of two scientists working on fuel research on the buildings’ site. Dressed in lab coats (his dark, hers white) and holding up instruments, there was palpable tension in the air. The two buildings play off against each other, the larger one heavy and solid, the smaller one with changing colors, like the flame of burning gas.
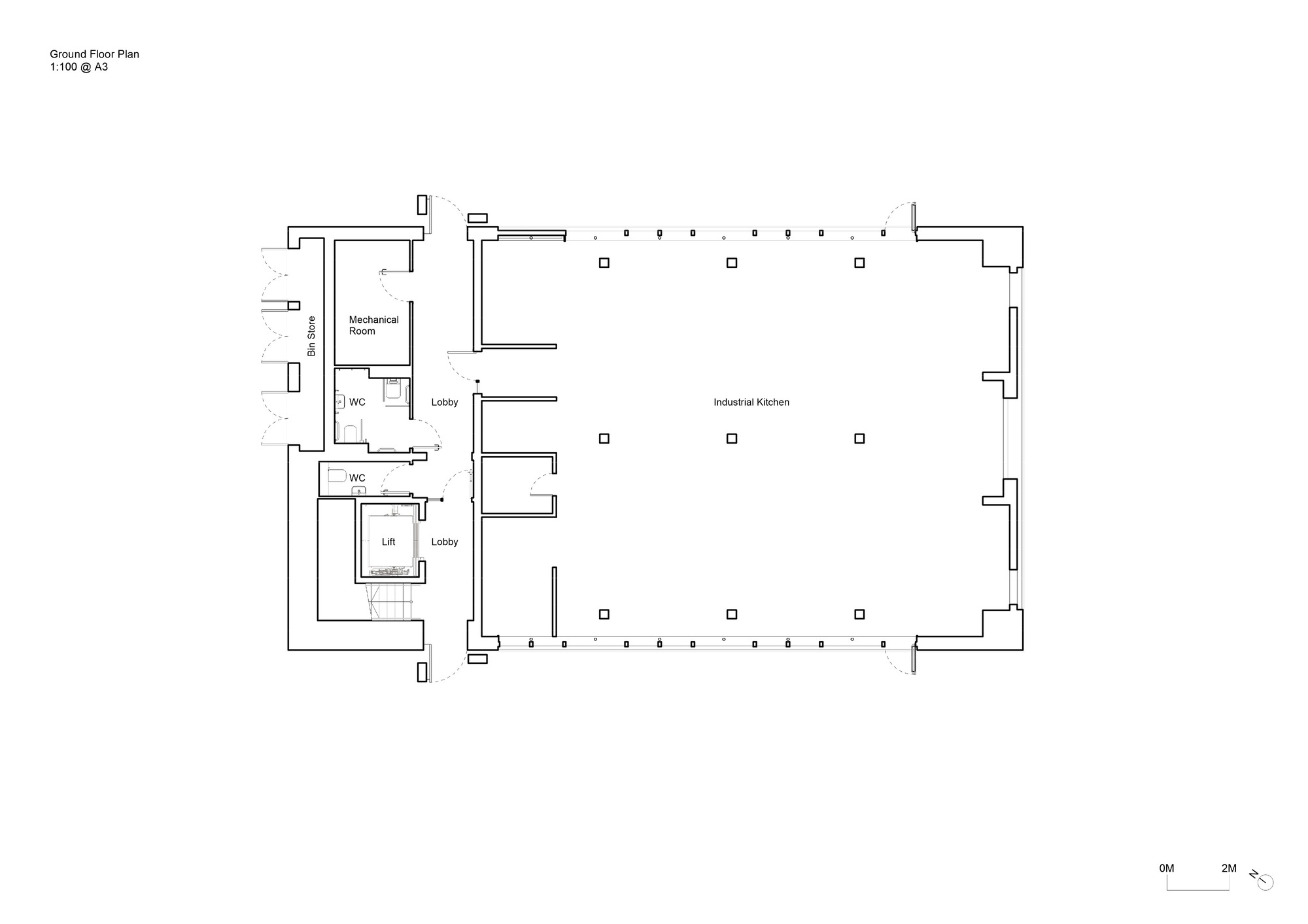
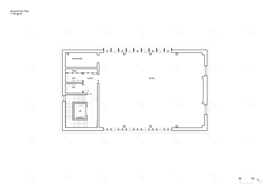
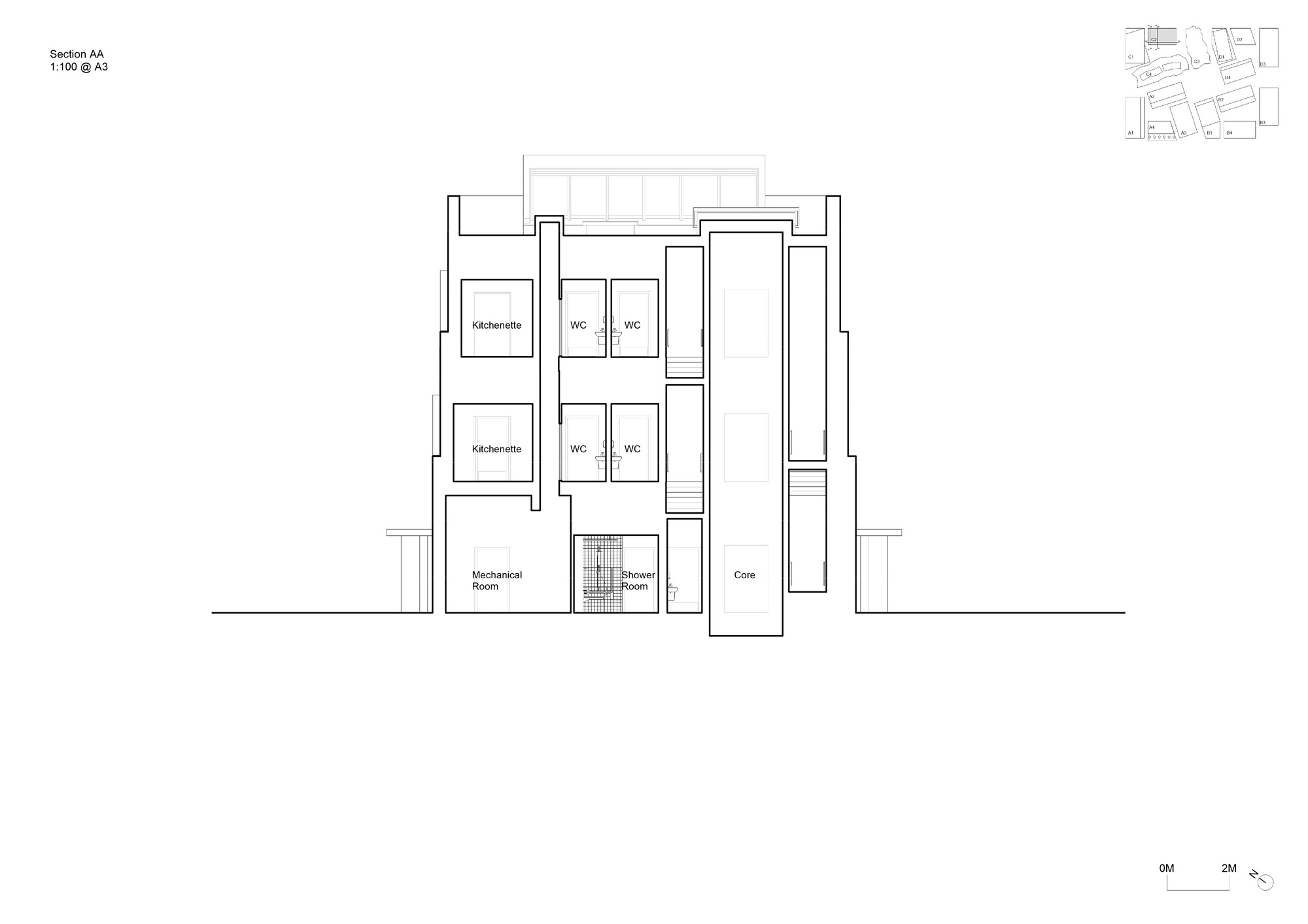
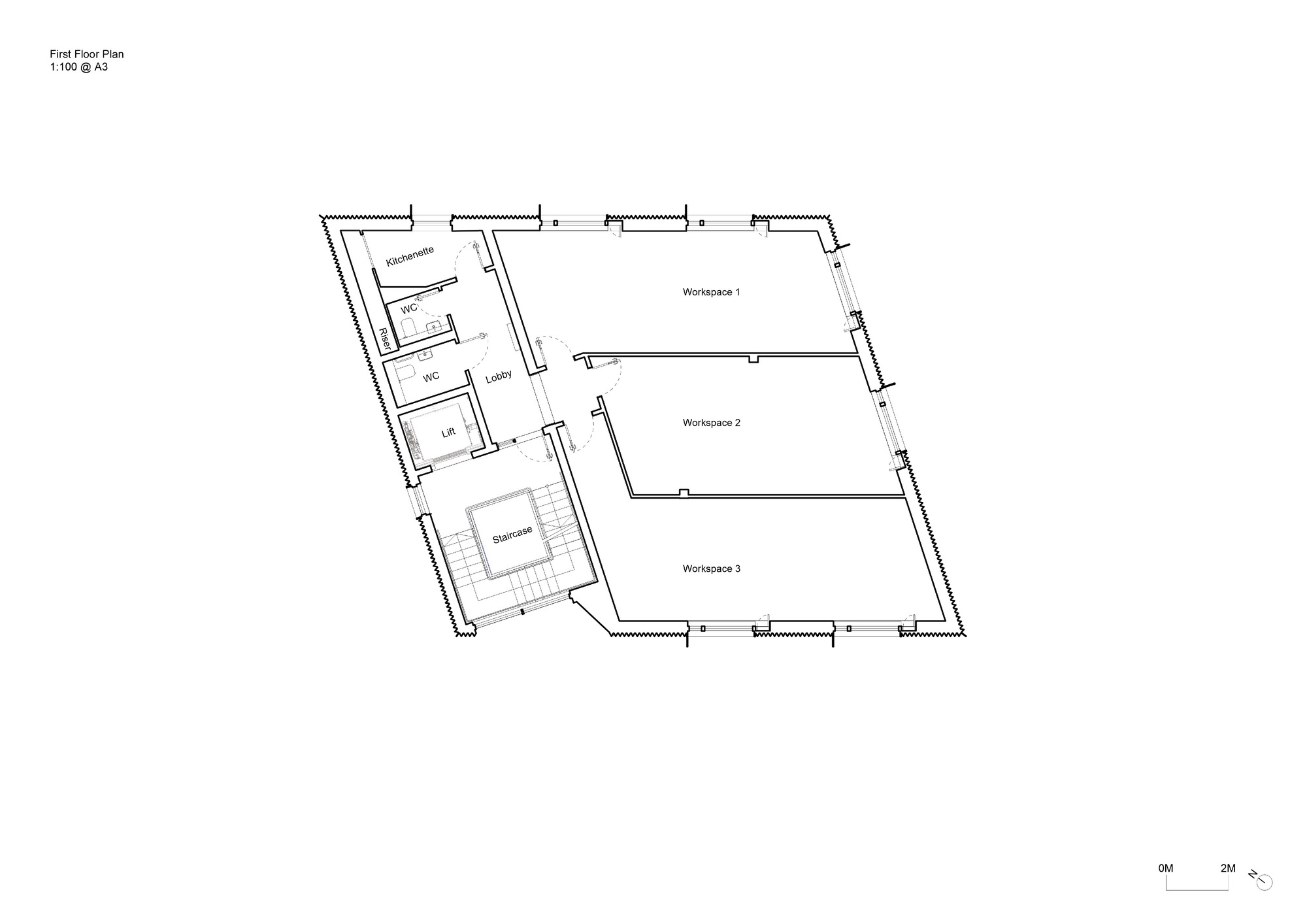
Internally, the two timber buildings share the same qualities, though distinctly different: the 784m2 Ziggurat (C2) is a three-story Corten-clad building providing six workspaces of varying sizes (from 15m2 to 217m2). Dance company Clod Ensemble will occupy the upper floor, creating an expansive dance studio in the light-filled space under the building’s sawtooth roof lights. The ground floor provides an industrial kitchen space serving Design District’s Canteen (SelgasCano). The 580m2 Rhomboid (D2) is a compact and angular dichroic structure with five workspaces (from 39m2 to 133m2) over three floors; the upper floor, which is characterized by a butterfly roof, will be occupied by The Photography Foundation, a charity helping young adults from disadvantaged backgrounds gain long-term employment through the art of photography.
Both buildings are clad in metal. Ziggurat is clad in weathered steel laid diagonally to give the simple stepped form texture and weight, and an industrial quality reminiscent of the original gasholders. External shutters on its west side and fins on its east act to shield the upper floor windows from solar gain. Rhomboid’s pyramidal profile aluminum cladding is painted in a metallic finish that changes with the light, and dichroic glass fins surround the windows and refract colored light over the facades, inspired by the colors of a gas flame.
Mole has designed the two buildings to limit energy consumption, with consideration to both embodied energy use during construction, as well as limiting energy in-use. Ziggurat is designed around a hybrid glulam timber frame with structural cross-laminated timber (CLT) floors, stairs, and lift shaft, with structural insulated panel (SIP) walls. The solid timber floor slabs are exposed on the soffit, with a raised floor distributing services. Rhomboid, which has achieved a BREEAM Excellent rating, has been constructed entirely with CLT. The timber construction has resulted in a 41 percent saving of kgC02/m2 for the Ziggurat, and a 48 percent saving of kgC02/m2 for the construction of the Rhomboid compared to an equivalent concrete structure.
This construction has not only reduced embodied energy but led to a more efficient prefabricated construction process that lowered the time on site. The walls in both buildings are lined in a phase change material (PCM) board that contributes to the internal temperature control in hot weather, along with the external blinds and shutters. The distribution of windows and the shallow depth of the section ensure high levels of daylight and the ability to naturally ventilate the floors. The design was developed with M&E consultants Skelley & Couch, who thermally modeled the buildings to ensure the lightweight buildings perform as required.
Together the two buildings contribute to the vibrancy of the Design District, fulfilling the client’s brief to design a ‘destination that will keep thinkers, makers, and doers in the very place that brings their ideas to life.’
As construction of the Design District nears completion this spring, the new tenants moving into Ziggurat and Rhomboid demonstrate the range of creative businesses that the new quarter aims to appeal to: from Helen Kirkum, the shoe-maker using reclaimed materials; to Clod Ensemble, the dance company creating provocative and original participation projects rooted in music and movement; to The Photography Foundation, which creates pathways to professional photography for less advantaged young adults. The team at Design District is installing a mix of tenants across the creative industries to establish an interdependent and mutually supportive community that will encompass 1,800 people when the district is fully occupied.
Project gallery
Project location
Address:Greenwich Peninsula, London, United Kingdom
客服
消息
收藏
下载
最近























































