查看完整案例

收藏

下载

翻译
Architects:CM Design
Area:305m²
Year:2021
Photographs:Chao Zhang
Manufacturers:Dongguan Zaoxin Metal Materials Co., Ltd.,Foshan Xinshen ceramics Co.,Ltd.,Guangzhou Yuanhai Architectural Materials Co.,Ltd.,Shenzhen Lizhiyuan Architectural Technology Co.,Ltd.,Shenzhen Ou Si Luo Shell technology Co., Ltd.
Lead Architect:Danping Chen
Construction:West construction
Interior Construction:Jiangxin Jian Zao
Design Team:Danping Chen , Jun Liao, Heng Yang, Mingming Yao,Yingchuan Zhong
Client:Shenzhen CM Design Co.,Ltd.
Collaborator:Shenzhen Vanke Real Estate Co.,Ltd., Shenzhen Bowan Architecture Design Institute, vaLue Design, GD-Lighting Design, Urban Research Institute of China Vanke
City:Shenzhen
Country:China
Text description provided by the architects. When you come to Nantou Old Town, you will feel amazed by all the different types of buildings built in different periods, such as Dongguan Guildhall with black brick and grey tiles, Xin ‘a County Government Office with towering colored sculptures, Baode Ancestral Hall with gray carvings and colored painting, Wen Tianxiang ancestral hall with the layout of three-bay and three depth, and various exquisite fashion shops and buildings along the street which its pavements were made of slates and squared stone.
When you walk through the cross street, you can discover the vitality of life from the alley by the side and the scenes of normal daily life in this urban village. Also, you can find out different kinds of stores that meet people’s daily needs such as Fish and vegetable vendors, retail stores, restaurants, barber shops, delivery stores,s, etc. Most of the time down the street and alley there are old people with white hair sitting around the steps, couples chasing pupils, and delivery men always in a hurry with their ride, they are often mixed in the crowd with the tourists down the cross street. Sometimes just a casual glance could make you stop walking and have a good taste of the diverse and staggering scenes of Nantou Old Town. Probably you would be amazed that people are so happy that they could see different scenes every day and it never ends.
If you walk into Nantou Old Town from the east gate, you will get to Wen Tianxiang ancestral hall in 50metres. As your sight towards the west, you will be attracted by a tiny exquisite garden from the opposite side, and you will see a typical urban village residential building covered with gray water-washed sandstone. On the top of the building, there is a gray block that looks up floating to the air, which you will be surprised. If you often walk through the urban village or you have some impression of the buildings from the 80s of the last century, you might seem to have met this material that we applied to the block which is constructed by the customized lightweight foamed ceramics unit module in the array. Even though no more enclosed metal prevention to the balcony or the random set up profiled aluminum sheet to the attic and the scattered arranged air conditioner external unit, the building could still be recognized for residence probably.
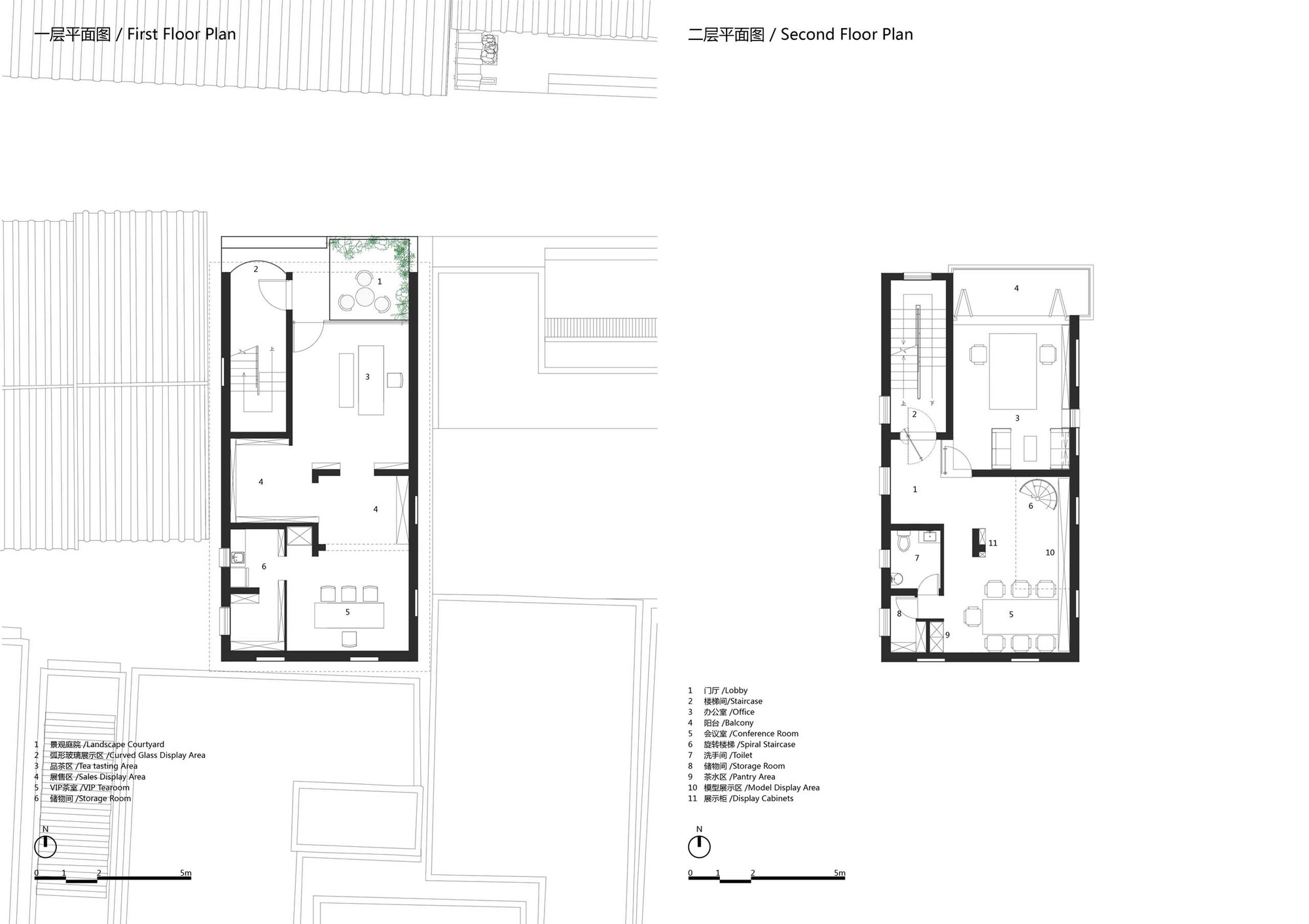
Wu-Lan Tea Studio on the first floor continues the commercial atmosphere of the Nantou Old Town. The grey space of the receded entrance not only magnifies the narrow street but also goes into a conversation with the entrance space of Wen Tianxiang ancestral hall, and the original stairway aisle became the window display facing the street. Because the hostess of Wu-Lan has a high sense of quality and storage protection for the tea and the flexible product display, the materials that applied to the space without any chemical effect on the tea. For the interior design, there is no suspended ceiling, no brand new cabinet, and no redundant design. There is only a thin layer of imitation rammed earth surface adopted on the original wall, and some old cabinets, wooden tables, and chairs that the hostess panned out. From any angle of view as your sight arrives, it always presents elegance with classic simplicity and graceful bearing. In this space, you can have tea tasting, incense enjoying, flowers appreciating, chatting, as well as the utensils, selecting, or you can have a good conversation with the hostess about tea science. Even more, you can join the tea-sharing activity that is held irregularly by the hostess.
About the CM Office, all you can see is the designers' daily working site that consists of a group of graph working tables, a whole wall cabinet of design materials, books, and different series of design models also a whole corkboard wall with projects pictures. It is because of the choice of urban village residence to complete the space replacement of the design studio, we have no reason to evade the small scale but removed as many partitions as possible that do not function as a structure. In order to strengthen the interaction and communication between the second to the third floor, part of the floor slab was opened up to expand the vertical space with the spiral staircase satisfying the connection. The original windows were blocked off with a concave to its outer elevation in water-washed sandstone, which implied where the windows stayed before. To the inner elevation, the old bricks were exposed deliberately to become the rough background to the model's display. The T-shaped structural columns in the space combine the display cabinet and the model-making table, which provide a durable mixture, and the most representative material from the era of an urban village, the mosaic was also integrated into the space. It just right becomes the servant spaces and served spaces.
If the appearance of the fourth floor has given a strong expectation, there should be real surprising spaces inside.CM+ is a public open compound space where many activities can be held such as exhibitions, salons, training, meeting, and so on, which was built above the original building that had been reinforced to its structure. The rooftop terrace is the extension of the interior space, where you can appreciate different periods of pictures of buildings in Nantou Old Town.
Based on the value of different eras of cultural accumulation and historical impression, the whole process of design respects the authenticity of history. Following the urban design strategy of preservation and regeneration while integrating the local culture and the dispersed exhibition spaces arrangement. In order to enhance the interactive experiences, we sought to connect the three-dimensional opened public cultural activities system and established a connection between the renovated cultural ancient buildings and the humanities landscape resources of the urban village. Is the only building that contains different spaces such as commerce, office, and exhibition, which after renovated from the residential building on the cross street. It is the multiple coexistence sample of transformation and upgrading of Nantou Old Town.
Project gallery
Project location
Address:29# Zhongshan East Street, Nantou Old Town, Nanshan District, Shenzhen, China
客服
消息
收藏
下载
最近











































