查看完整案例

收藏

下载

翻译
Architects:Mind Manifestation Design
Area:120m²
Year:2022
Photographs:Hemant Patil
Manufacturers:AQUANT,Hettich,Lafit lights,ProgeCAD,Trimble Navigation
Lead Architects:Anand Deshmukh, Chetan Lahoti
Design Team:Pranjali Ekre, Dipti kanade, Vidisha Paltewar
City:Pune
Country:India
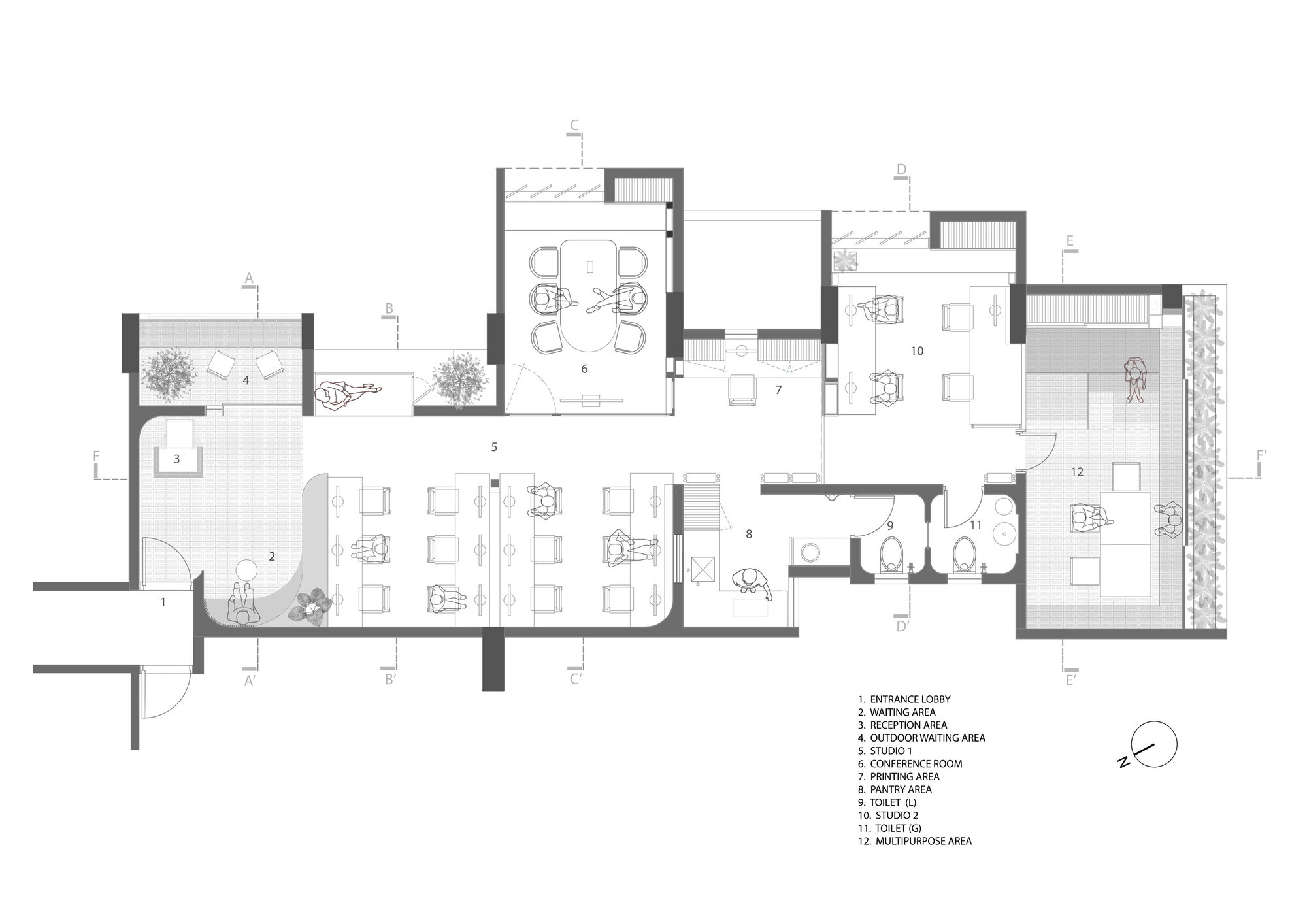
Text description provided by the architects. Brief - An Architecture studio is the representation of the studio’s ideology, same time demonstration of one’s ability to experiment with innovative materials and respond to available context and climatic conditions. With this self-given brief mind, manifestation has designed their workspace studio by converting a residential unit into an apartment building sitting next to a hill in the city of Pune.
Site - The floor plate of 120 sqm is kept open and free with functions planned suitably with minimal clear glass partitions as per necessities. Required fluidity is achieved in a rigid framework with subtle curvilinear treatment to corner junctions. The spaces are planned or styled to surrender to the adjoining hill, the material palette is tastefully chosen to match with different shades of the hill throughout the year. Thus, nature flows to the indoors, and space becomes part of nature and vice versa. Climatically, most of the spaces facing or opening towards eastern hill help to keep the areas well lit with natural light coming in without the extra glare and heat throughout the working hours.
The Palette - Material selection as light oak wood furniture, In-situ concrete floor, natural brick paving with tall seamless walls, and ceilings in pastel green lime plaster finish is the result of the desired peaceful working environment. Recycled paper tube, an eco-friendly material, is explored to be used in various interventions such as sliding or operable shutters, seating backrests, or open shelves supported with customized detailing.
The entrance zone in the open floor plan is signified with natural brick paving terminating into a built-in reception desk creating a sense of arrival, same brick floor seamlessly continues to the terrace to create a sense connect with the outdoor. Perforated brick sliding panels control the entry of southern sun rays into the multipurpose space used for informal meetings, brainstorming sessions, dining etc.
The facade helps to convert harsh southern sun rays into cool breeze before entering the indoor areas. The use of lime plastered walls and southern natural brick jail adds to the thermal comfort, The diminishing detailing in response to local context is adopted in contemporary design in various areas.
Project gallery
Project location
Address:Pune, Maharashtra, India
客服
消息
收藏
下载
最近





































