查看完整案例

收藏

下载

翻译
Architects:Daffonchio Architects,Imbewu Design
Area:15000m²
Year:2021
Photographs:Juane Venter
Developer:Blend Property Group
Structural Engineering:JRMA Consulting
Mechanical Engineer:VMG Consulting
Electrical Engineering:SOLelec
Wet Services Engineer:MG Building Services
Fire Engineering:Building Code Consultants
Main Contractor:Gothic Construction
Quantity Surveyor:DMS QS
City:Johannesburg
Country:South Africa
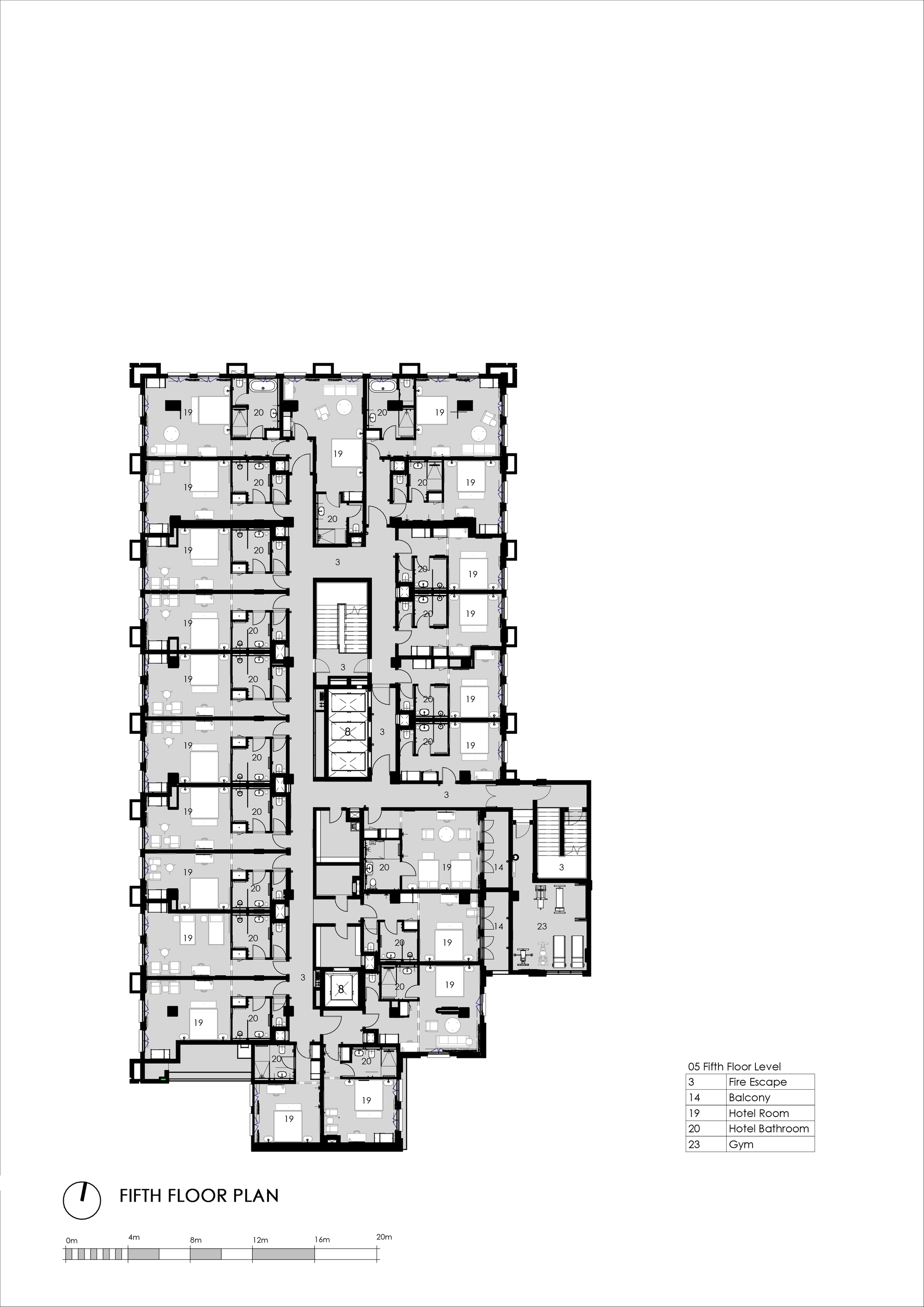
Text description provided by the architects. The Bank is an exciting new mixed-use development in the hub of Rosebank, Johannesburg within easy walking distance of the Art District. It is an approximately 15,000 sqm, 13 Storey mixed-use building with 3 additional floors of basement parking. The structure of the existing 4 storey building, previously a bank, was retained and added onto.
The design aesthetic celebrates the history of the original building as a banking institute. The deep black face-brick façade creates an impression of strength and resilience, which is softened by the greenery along the façade. The building then defragments at the top into a minimalist crown, which creates deep landscaped roof gardens in which to enjoy the views of the Johannesburg skyline.
Each hotel room, designed by Imbewu Design in collaboration with Daffonchio Architects has at least four or five original artworks that were specially commissioned for the building, so the number of artworks runs into the thousands. The developer, Blend Property Group’s Martin Epstein, recently founded the art curation company Art gazette, which commissioned the work.
The Workshop17 co-working space — four storeys of it — is also filled with original artworks from David Krut Projects, an arts institution perhaps best known for its print workshop, which collaborates with some of South Africa’s top artists, and a fabulous catalogue of art publications. The public space around the building features two Edoardo Villa sculptures, and artist Cameron Platter was commissioned to design a huge mural for the walls of the four-storey, 400m2 open-air courtyard inside the building.
Project gallery
Project location
Address:3rd Floor, The Bank, 24 Cradock Ave, Rosebank, Johannesburg, 2196, South Africa
客服
消息
收藏
下载
最近


























































