查看完整案例

收藏

下载

翻译
Architects:Ryder Architecture
Area:13935m²
Year:2020
Photographs:Graeme Peacock
Landscape Architect:OOBE
Project Manager:Potter Raper
Project Director:Richard Wise
Project Architect:Jonathan Seebacher
Architect:Rachael Raine
Technical Lead:Peter Lea
Principle Designer:Allan Binns
Principle Contractor:Sir Robert McAlpine
City:Newcastle upon Tyne
Country:United Kingdom
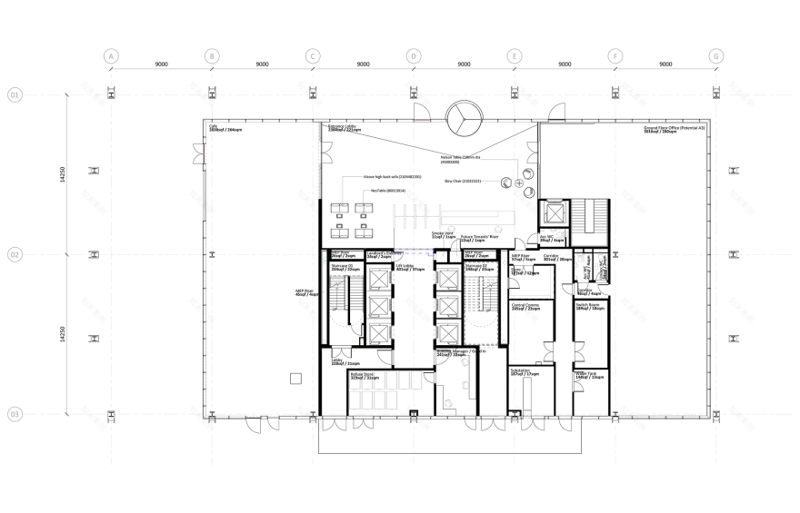
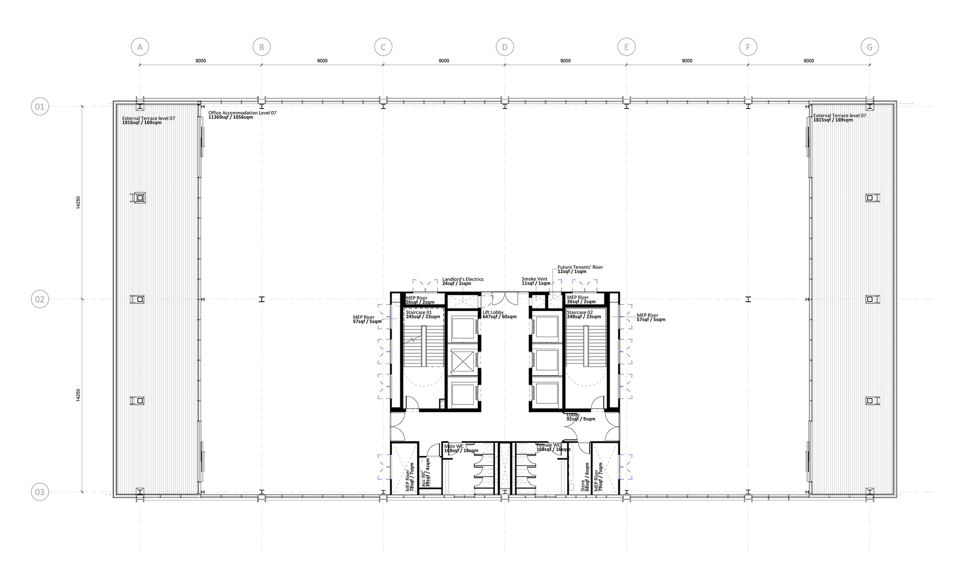
Text description provided by the architects. This speculative office development was secured through an architectural competition win for Legal and General, which is leased, managed, and maintained by Newcastle City Council. The building, a 9,300sqm NIA with A1 / A3 use on the ground floor, has been designed so that each floor can be split into three tenant domains if required. It is designed to British Council for Office standards with a ratio of occupancy of one person per 8sqm NIA, and to BREEAM Excellent with an EPC rating of A.
This was the first significant A-grade office building to be built in Newcastle city centre since the mid-1990s and provides a modern workspace for over 1,200 people in the science, technology, and knowledge-based sectors.
Vehicular access, disabled parking, and drop-off are incorporated into the adjacent public realm. There is a generous double-height shared reception and touchdown space along with a café, all of which have direct access to the public realm. A triple-height A3 unit fronts St James Boulevard whilst plant, back of the house, and staff amenity spaces are carefully tucked into a basement so as to not compromise the active frontage on this key gateway site.
Through expressing the structure and the rigor of the function within we have achieved a well-articulated architectural expression with a high degree of transparency. Colours provide richness and depth – the earthy copper tones catch the sunlight giving the building a different character throughout the day, changing its look and feel and providing a dramatic addition to Newcastle’s skyline.
In 2016, Legal & General Capital, the investment arm of Legal & General Group, became the principal funding partner with Newcastle City Council and Newcastle University, to build and finance the Newcastle Helix development.
Newcastle Helix is one of the largest urban regeneration projects of its kind in the UK. The 24-acre science and technology hub on the former brewery site, located in Newcastle’s city centre provides accommodation for over 4,000 jobs, office and research space, and 450 homes.
The aim of the development is to become a major UK hub for scientific research, and technology businesses, creating knowledge-based jobs for future generations in Newcastle and extending the Northern Powerhouse to “the North of the North”.
Project gallery
Project location
Address:Newcastle upon Tyne, United Kingdom
客服
消息
收藏
下载
最近






















