查看完整案例

收藏

下载

翻译
Architects:Taillandier Architectes Associés
Area:13954m²
Year:2020
Photographs:Roland Halbe
Structural Engineering:Betem
Energy Engineering:Soconer
Head Of Project:Aurélie Guinel
Project Assistants:Claire Peyrot, Paco Giuliani
Construction:William Saieb
Historical Preservation Architect:Pierre-Yves Caillault
Fluids Engineers:SETES
Accoustic Engineers:SIGMA
Designer :Studio Joran Briand Associés
Artists And Designers:Allover Gallery
Scenographer :dUCKS scéno
City:Toulouse
Country:France
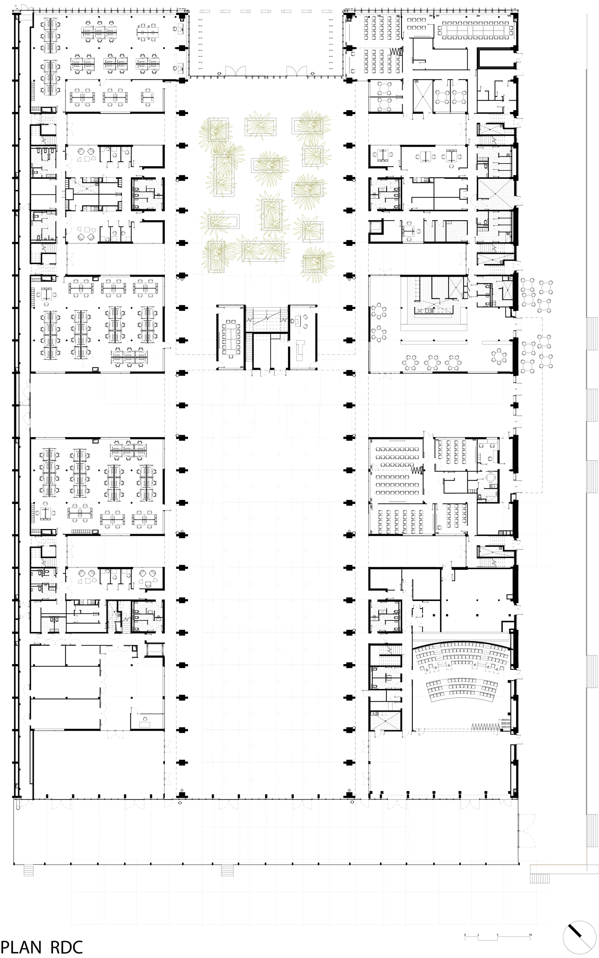
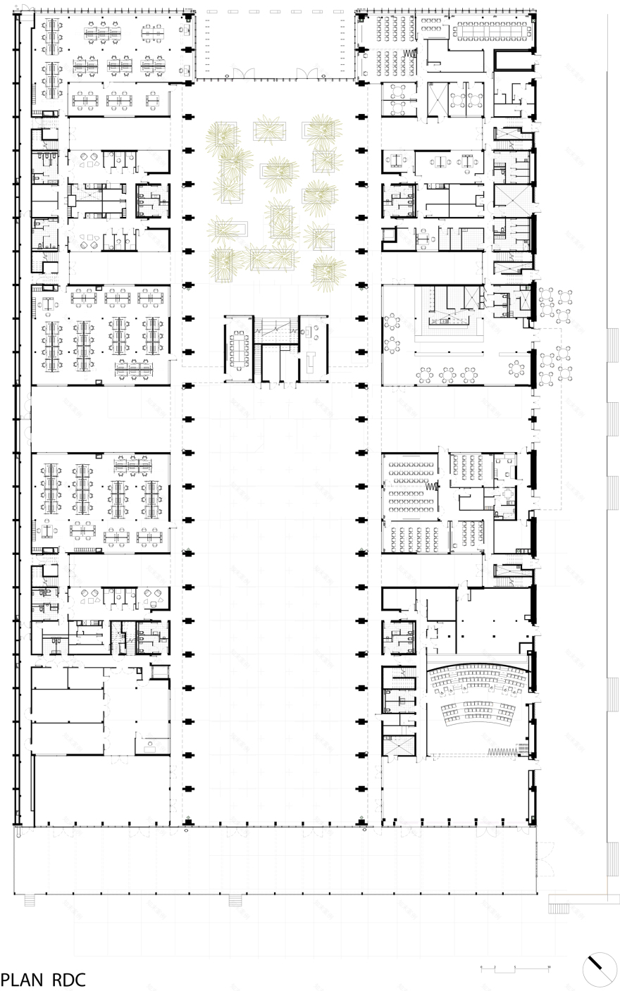
Text description provided by the architects. Sponsored by La Region Occitanie, the project of La Cité consists of the renovation of the historic site of Les Halles Latétoère, in order to create a third-place dedicated to collaborative and sustainable innovation. La Cité hosts several public and private services devoted to young start-ups, such as Ad’Occ, At Home, Nubbō, and Roselab.
The project is located in the South-East of Toulouse, in the suburb of Montaudran, next to the railway running along the protected historic runway of the Aéropostale. The building itself is registered as the heritage of the aeronautical industrial history of Toulouse.
Built between 1917 and 1918 by the industrial pioneer Pierre-Georges Latécoère, Les Halles Latécoère witnessed the origin of the industrialization of the aeronautic sector in Toulouse. Since World War I, the factory is located on the Northern side of this 45-ha aeronautic site, spread along the railway connecting Toulouse to Sète. The runway and maintenance buildings were located on the Southside. The three halls of Les Halles Latécoère housed the first aeronautic production in Toulouse. Originally built for the rail industry, then quickly shifted to aeronautic purposes, the site was used to produce military aircraft and, after World War I, commercial and Aéropostale planes.
Despite its fame, the Aéropostale was facing financial difficulties until it was bought by Air France in 1933. The Aéropostale line was thus maintained up to World War II. In 1940, the site of Montaudran is sold by Pierre-Georges Latécoère, who was associated with the planemaker Louis Bréguet since 1939. The building and a portion of the production were destroyed by Allied bombing on April 6, 1944, leaving only the structure. Louis Bréguet rebuilt and expanded the site so as to produce bomber aircraft and then till the seventies.
The perimeter of our intervention included the three historic halls of the Latécoère factory, along with several warehouses and canopies, plus a disused area at the Eastern side. The terrain has an area of 19 628 m². In spite of the destruction of 1944 and the remodeling in subsequent years, the site is generally well preserved and still presents remarkable features, such as the three main halls which have been designated as a historic monument since July 21, 1997. Given their composition and imposing volumes, they constitute a monumental ensemble.
There are also several other listed elements: the passengers’ lounge building, the runway in its current layout spanning from the North West of the site to the South East of the management building, called the Chateau Petit Espinet Raynal, also classified for its façade, roof, and left-wing. On a wider scale, the site is located in an area undergoing development. The direct environment of the site is constituted of residential areas and logistic and industrial activities. At its southern border, it reaches the university and scientific complex of Rangueil, gathering more than 35 000 students and teachers.
The project of La Cité is concentrated mostly inside of Les Halles Latécoère and is composed of the three historic halls which are 120 meters long and 26 meters wide. Each nave has a soil floor surface of 3082 m², meaning a total of 9246 m² for the three naves.
Project gallery
Project location
Address:55 Avenue Louis Breguet, 31400 Toulouse, France
客服
消息
收藏
下载
最近








































