查看完整案例

收藏

下载

翻译
Architects:Medium Plenty
Area:15000ft²
Year:2019
Photographs:Melissa Kaseman
Manufacturers:AutoDesk,Caesarstone,Cle Tile,Douglas Fir
Clients:Kapor Capital
City:Oakland
Country:United States
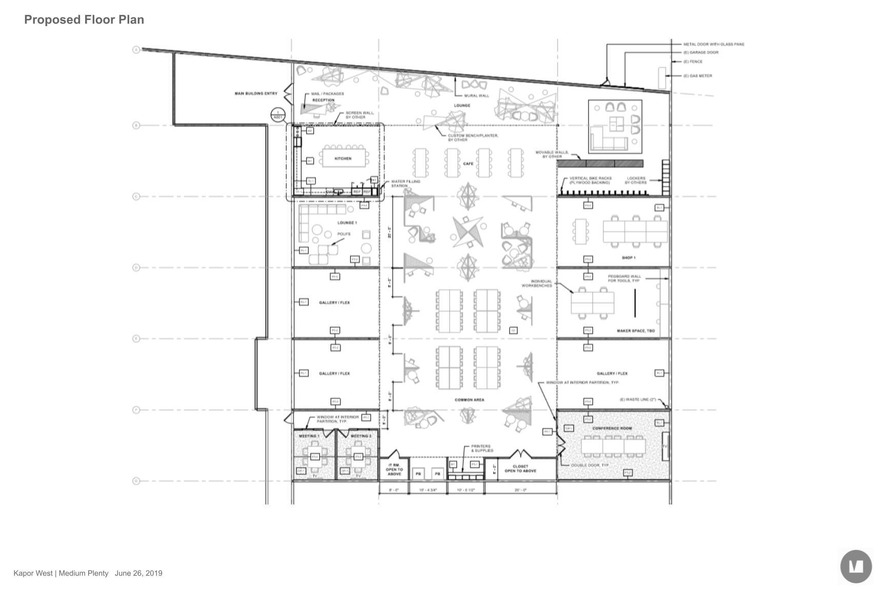
Text description provided by the architects. The oakland-based, award-winning firm, Medium Plenty, designed a start-up innovation hub and multi-faceted workspace for the underserved and underrepresented communities of West Oakland themed around inclusivity. Working with Kapor Capital, a foundation focused on investing in underrepresented entrepreneurs, Medium Plenty transformed a 15,000 sq ft industrial warehouse to create an approachable and flexible space to be used by youth groups to start-ups to serve as a bridge for opportunities in technology.
The design moves called for activating the large space by creating maximum flexibility through a variety of multi-functional spaces and furniture and creating open and dedicated offices, large conference areas, a communal kitchen, and lounge area. Medium Plenty collaborated with community developer and artist Binta Ayofemi on the project.
Current tenants and Kapor benefactors, Promise, were interested in the communal aspect of the space. The start-up, founded by Phaedra Ellis-Lamkins, a former manager for Prince, and Diana Frappier, aims to help low-income Black and Brown people stay out of the criminal justice systems through online apps and tools. With half of their users in the Bay Area, Promise found 1901 Poplar to be an ideal location and space for their Corporate Headquarters as a way to connect with their community. The flexible design offers them the opportunity to work individually or as a team by building brainstorming areas.
Project gallery
Project location
Address:West Oakland, Oakland, CA, United States
客服
消息
收藏
下载
最近






















