查看完整案例

收藏

下载

翻译
Architects:Balet Roselló Arquitectos
Area:3573ft²
Year:2020
Photographs:Davide Camesasca
Manufacturers:Viccarbe,BATHCO,FLOS,Forma 5,HAY,ICONICO,INCLASS,Marset,Massproductions,Pilma,XAL
A Lead Architects:BR arquitectos
City:Zaragoza
Country:Spain
Text description provided by the architects. Challenged by the presence of the Born Market, the perfect symbiosis between the resulting project for the dermatological products company pHFormula and the preexisting buildings and sorroundings was our starting point. The resulting ‘Art Club Born” stays true to the company image but also coexists with the strong presence of the past in the area.
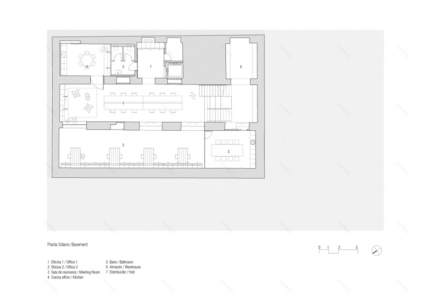
In the ground floor and basement of a corner building built in 1904, between Comerç and Ribera streets, we find the new headquarters of the dermatological company.
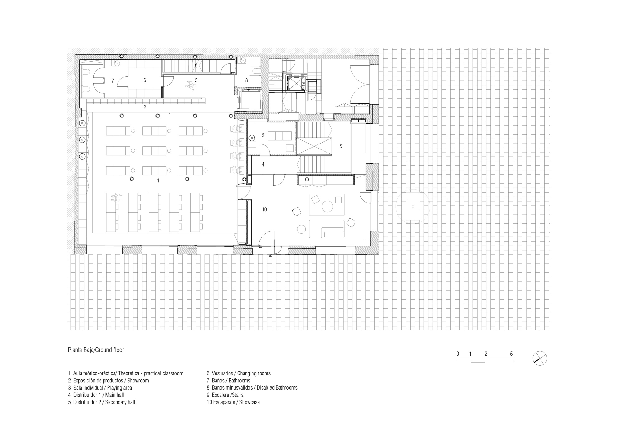
Taking into account the company has a strong committment with the training of its employees and representatives the headquarters were in need of a training area. The ground floor with access from the street is distributed between two scopes, the hall and these formation area. The divisions between the spaces are conceived as containing walls of habitable furniture, harboring the necessary program and installations.
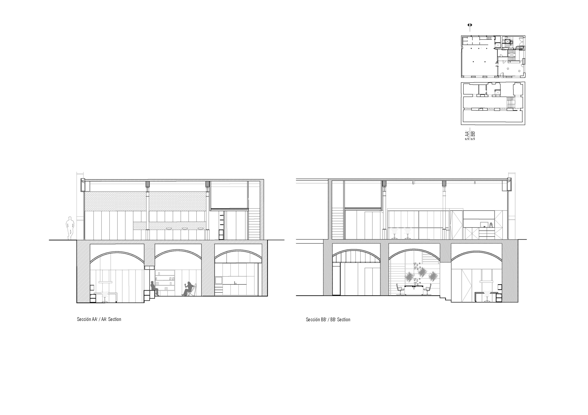
On the other hand, three adjacent rectangular floor vaults made of ceramic brick conform the basement floor.
This basement floor is thought from the idea of having again the original visual connections across a great central space with a large table. where habitually the main business activity resides as well as intersections and interactions of the daily company routine. The other two vaults are distributed parallel, and from every point of view, makes it possible to recognize the entire basement in its whole dimension.
Both the original structure and the rediscovered materials had been considered in the rehabilitation of this local, enhancing the preexisting space conditions and the heritage gathered over time.Rehabiting the space is the main intention of the project, from the beginning three premises had been taken into account respecting the existing: Recovering + Re-using + Re-lighting
RecoveringInterventions seek to bring back the autenticity of the original material in its time of construction, the ambience that once the building was originally designed for, minimizing the use of new materials, leaving just the existing resting on it respecting and reducing the impact versus the recovered.
Re-usingThe intention to purposely underline the “use again” attitude lead the project to reuse the furniture from the relocated headquarters, which had been planned by our studio in another building years before. Not only the furniture has been reused, it has also been thoroughly relocated in every single space. Rehabiting and establishing new relationships has been the main goal, embracing the existing and settling new spacial relationships with the uses program.
RelightingThe goal was to achieve the maximum amount of light in all these area. Being a basement level is indeed a strong conditionant as the only natural entrance of light was a large window to Comerç Street, next to the access stairs to its lowest level.
A mirror box becomes the strong point of this intervention sheltering a settled program underneath this great point of light reflections. The personality of each space evolves with the amount of natural light given according to the solar schedule. The more white color is in the surfaces, the more light is all over the space.
As a game of duplicities between interior and exterior, the mirror box becomes a “follie” gathering complexity and distorsion, amuseing us as the architecture some times has to.
Project gallery
Project location
Address:Zaragoza, Spain
客服
消息
收藏
下载
最近
























