查看完整案例

收藏

下载

翻译
Interior Designers:penda
Area:200m²
Year:2016
Design Team:Chris Precht, Sun Dayong, Bai Xue, Quan He, Li Pengchong
Country:Hong Kong (SAR)
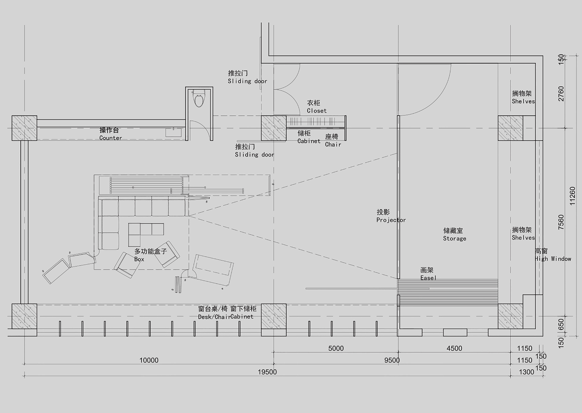
Text description provided by the architects. The project describes a space for storing and selling paintings in a tower located in the centre of Hong Kong.
Given the program of an infrequently used space, we are introducing a suitcase-like box made out of matte-reflecting copper panels.
The box can be fully opened and integrated into the space; thus, after the paintings are shown, the box can be fully folded up to secure the artwork when the space is unoccupied.
The box is made out of copper and inhabits a sliding drawer for artwork, a cozy couch, a bar, a beamer, and a working desk.
Leaving the rest of the space in untouched rough concrete, the copper objects capture attention, reflecting natural light in a warm, red tone.
Project gallery
Project location
Address:Hong Kong (SAR)
客服
消息
收藏
下载
最近

















