查看完整案例

收藏

下载

翻译
Architects:Esrawe Studio
Area:6082ft²
Year:2019
Photographs:Genevieve Lutkin
Manufacturers:Acor
Creative Direction:Héctor Esrawe
Architectural Concept:Héctor Esrawe
Architecture, Interior And Furniture:Esrawe Studio
Structure:Grupo BVG
Lighting:LUA Luz en Arquitectura
Landscape:Arturo Flores
City:Mexico City
Country:Mexico
Text description provided by the architects. Esrawe Studio was founded in 2003 by Héctor Esrawe. Due to the growth of the company, the studio has moved its location multiple times, finally settling in an old warehouse, which is unique in its typology and uncommon for the area. The spacious atelier allows the studio for further expansion, but in the meantime, it offers areas for experimental projects and displaying concepts.
In May 2019, the studio was moved to its new location in Roma Norte in Mexico City. Establishing its new workspace inside an old dancehall built around the 1950s. Roma is a vibrant neighborhood, with plenty of galleries and charming cafes, restaurants and plazas.
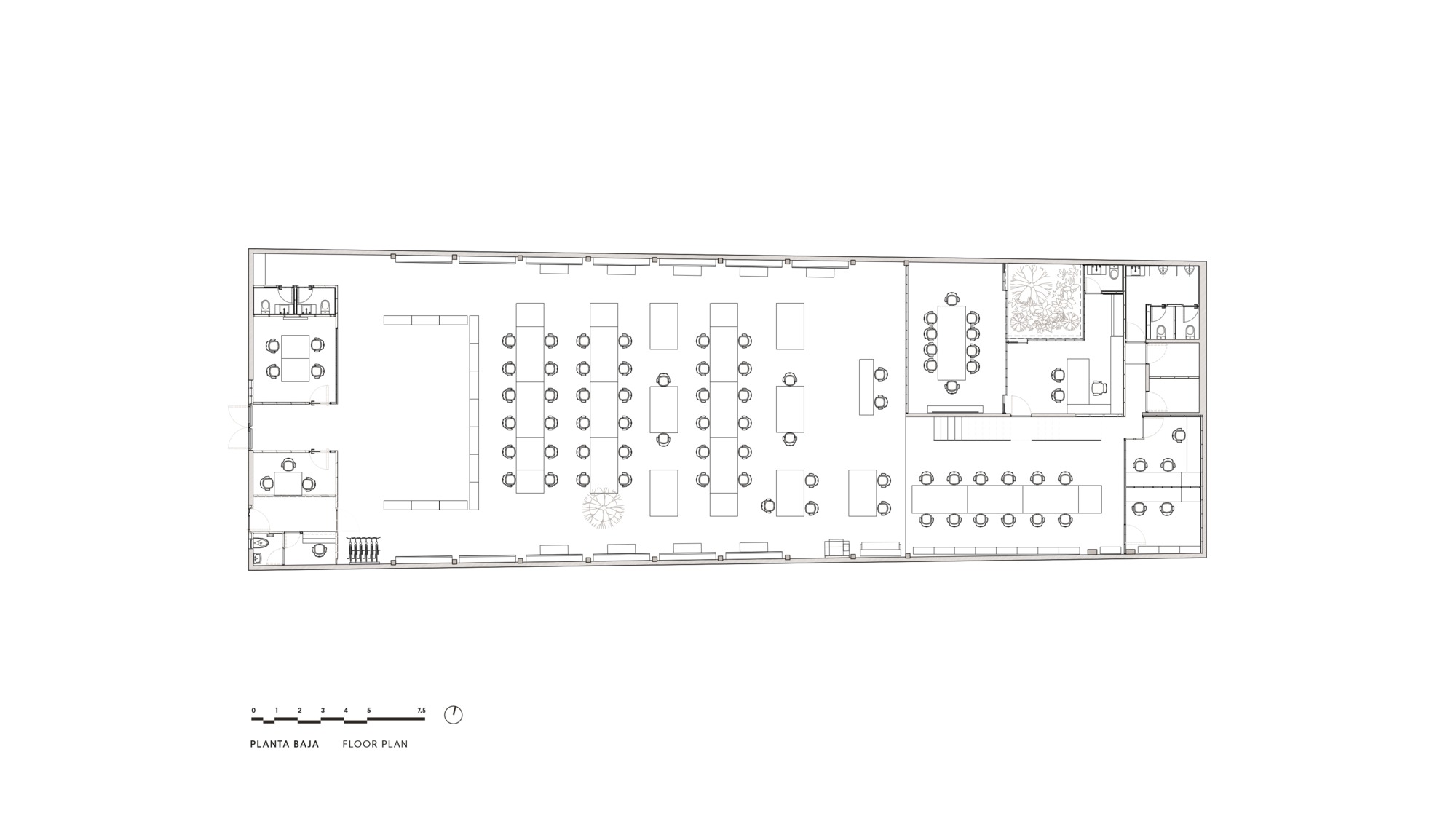
Esrawe renovated the 600-square-meter property, stripping the space from excess material and exposing the beautiful wood structure that was hiding underneath the clutter. The character of the wood structure defines the expression of the studio. The open area consists of tables placed in a transversal position, where the different teams are integrated.
The existing metal of the ceiling was restored and painted in pale color, and skylights were added to bring in natural light. Concrete beams were built to restructure the ceiling and a natural cement finish was applied to the floor. The honest industrial aesthetic proved to be ideal for a creative atmosphere.
The space is covered on both sides with cork boards in order to display different projects in progress. In the furniture design area, walls are covered with rack-stands that hold experimental solutions and tests of different materials, like samples of stones, metal and wood as well as tools, prototypes and molds. This allows us to build an archive of our past projects, our processes, our mockups and in the end, the memory and knowledge built along the years.
A space where architects, industrial, interior and graphic designers, renderists, engineers and administrators can interact and learn from each other, a space built to create, to promote lectures, projections and conferences, that encourages collaboration, multidiscipline and cross-pollination
The studio comprises of an upper area, which consists of a terrace, a kitchen and a communal dining area, as well as a space for model making, filled up with material samples, mockups, full-size models, 3D printer and a laser cut machine.
Project gallery
Project location
Address:Mexico City, CDMX, Mexico
客服
消息
收藏
下载
最近
























