查看完整案例

收藏

下载

翻译
Architects:oftn studio
Area:2023m²
Year:2023
Photographs:Choi Young Joon
Lead Designers:oftn studio
Country:South Korea
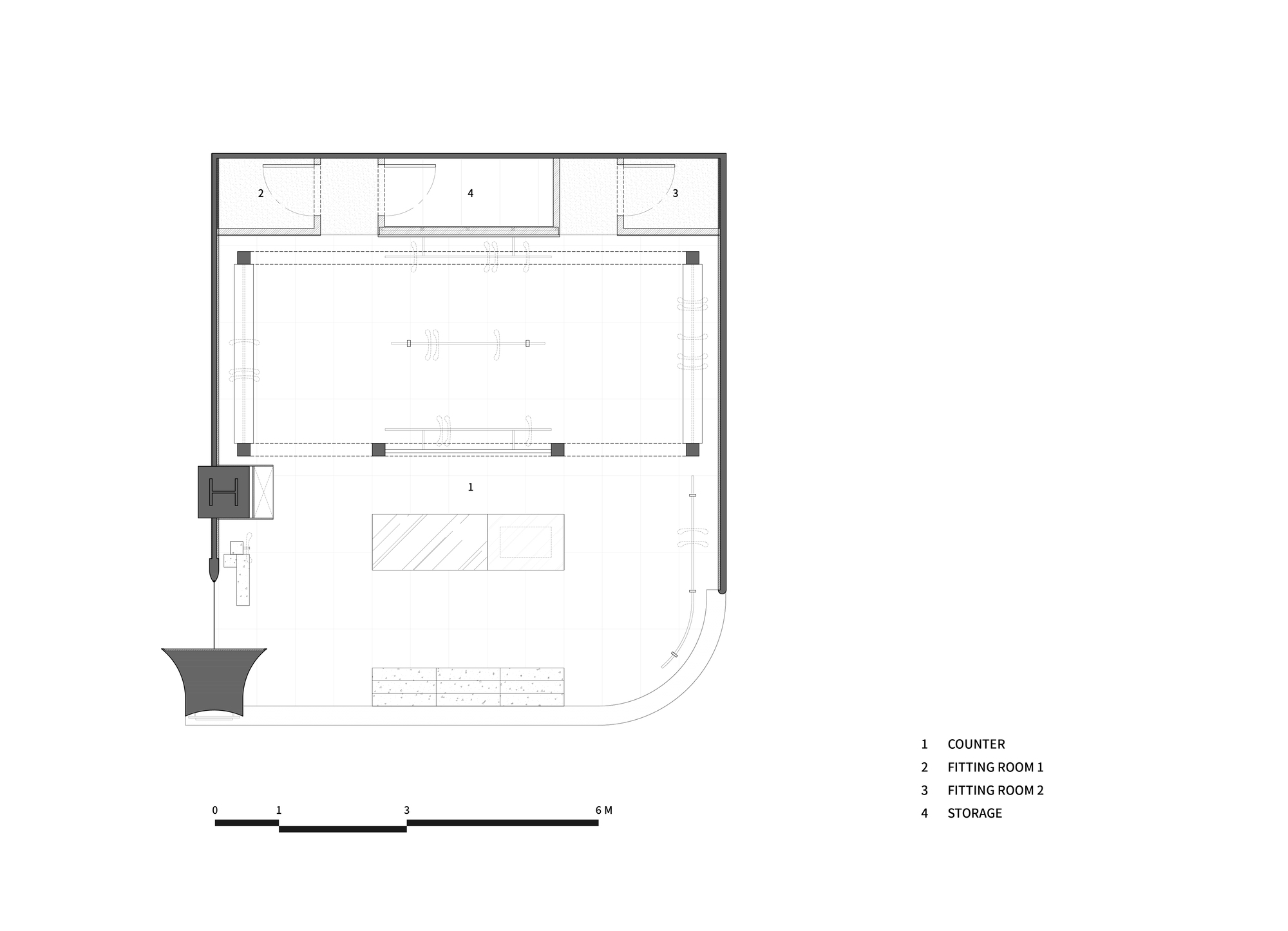
Text description provided by the architects. diagonal is a showroom located on the 4th floor of the Shinsegae Department Store in Busan, South Korea. The total space area is 65 sqm, designed by Oftn studio. Diagonal, which previously had a showroom in Hannam-dong, planned a new showroom in Busan to create a new mood space.
To be able to look around the entire space, the line of the C-shaped structure was composed of a hanger zone, and various products could be displayed according to the planned line. The six pillars distribute the intended movements, give them structural differentiation, and give a three-dimensional effect to the space through contrast with existing wall materials. While using various physical properties to match the brand's concept of pursuing simplicity and uniqueness in form, it was completed with achromatic materials to become the basis of the product, which is the brand's essence.
The Barisol section of the ceiling, which gives diversity to the space, has become more private and focused on the hidden space behind the counter back wall, the concept of partition. Physical properties complete concrete objects, metal shelves, and speaker zones with display characteristics, and various physical properties that are not artificial and decorative are intended to be used. The contrast between the stainless steel partition reflected like a mirror and the concrete panel at the back, and the large mirror on the outside of the fitting room intended to make the space look deeper and wider.
Project gallery
Project location
Address:Shinsegae، Busan, South Korea
客服
消息
收藏
下载
最近



















