查看完整案例

收藏

下载

翻译
Architects:FLYmingo
Area:582m²
Year:2022
Photographs:Yongjoon Choi
Designers:Junho Kim, Jiyeon Hwang
Design Team:Jiah Choi
City:Mapo-gu
Country:South Korea
KPOPMERCH aims to become a business that exists for fans. The spatial concept of the flagship store called "ME:DOM", a portmanteau of "ME" from KPOPMERCH and "DOM" from the word fandom, has been completed. ME:DOM by KPOPMERCH is not only a collection of everything about K-pop but also our—and my—shrine that the fans and KPOPMERCH will complete together. A space that signifies being with fans, ME:DOM plays an important role in strengthening connections with the fans, bringing K-pop fans closer to their idol celebrities, and raising the awareness of each fan as a member of the K-pop community through his/her interaction with other fans.
ME:DOM is a space that harbors a theme that every fan can intuitively find interest in. The main theme is about fans meeting idol celebrities in person and receiving autographs or taking pictures in an event where idols and fans meet and interact, and creating their own space and story together by placing stickers, giving themselves a sense of membership in the community. As a space where fans gather to interact and share information, ME:DOM aims to enhance efficiency in interaction mainly through the exchange of idol photo cards or a card exchange kiosk, and space for a fan cafe can be used to hold birthday events created collectively by the fans. It is a space for fans to write messages or create posters congratulating their idol's birthday and share memories with the idol.
Fans make their favorite artists shine brighter and create them together.
The space unravels in a way that its visitors can enjoy the experience of idolizing their artists.
Key Material. Among the main finishing materials, special paint was used to express the roughness of the shrine, and metallic-themed materials (hairline, laminate, mirror fabric, etc.) were used throughout to reinterpret the classic image of the shrine. In addition, the visitors were made to recollect the image of a shrine through the repetitive display of arches, pillars, and layers.
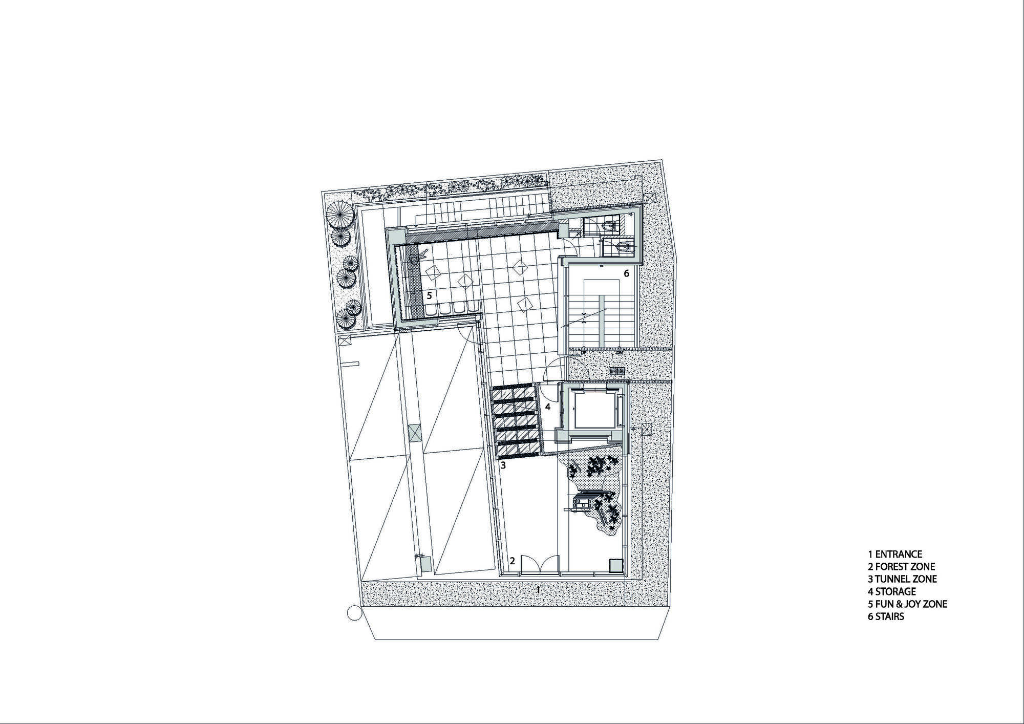
1F Open Gate. The landscaping and monitors at the entrance signify the Forest of K-pop. The acrylic furnishings placed in between signify KPOPMERCH's brand spirit, which is about embracing fans of all tendencies, from K-pop culture to products. Next to the Forest of K-pop is an arched tunnel that seems to lead to a new world. The tunnel represents a space of boundary between the shrine and reality, and the continuous arch and line lighting and the videos seen beyond it signify the real beginning of entering the shrine of K-pop. After passing through the tunnel, the visitors will face a space filled with light from a blend of the mirror fabric on the wall and the videos. It is a space designed for the fans to watch the videos of their brilliant artists freely and pleasurably.
2F Plaza. The space for the music store was designed with the motif of a plaza, where markets are held. The decorative features of arches and columns were applied to the space to display the images of a plaza. The mirror-finished closet makes the items look like they are layered, expressing the image of an infinite plaza. The ceiling's Barrisol lighting applies the floor pattern of the plaza to the ceiling, creating the most fantastic atmosphere. Yellow tones were used throughout the second-floor flooring to elicit the brightness and liveliness of K-pop.
4F/RF Garden. The cafe was intended to serve as a space where visitors can feel openness and as a free rest area where they can interact with one another and spread their fan spirit to the fullest behind the solid walls of the shrine. The seats and tables are organically connected in a sitting-around style. This design was inspired by a park-style picnic table, and it was intended to convey the theme of several people sitting around a table and gathering virtue. The texture of frosted acrylic and white and light gray were used throughout the space to capture the freshness and cleanliness of a park. In addition, symmetries using mirrors were expressed to elicit the concept of a "shrine" that encompasses all floors.
B1 Pop-up Party Hall. The place was designed to be used flexibly as an event space for fans and artists.
Project gallery
Project location
Address:Mapo-gu, Seoul, South Korea
客服
消息
收藏
下载
最近


































