查看完整案例

收藏

下载

翻译
Architects:Studio Simon Barazin
Area:65m²
Year:2023
Photographs:Ido Adan
Lead Architects:Simon Barazin
Brand Identity:Ark Visual
City:Tel Aviv-Yafo
Country:Israel
Text description provided by the architects. Alon Shabo, the renowned Pastry Chef, has chosen to establish his patisserie shop in the heart of Tel Aviv's historic center on Shenkin Street, a bustling location known for its trendy fashion boutiques and bohemian cafes.
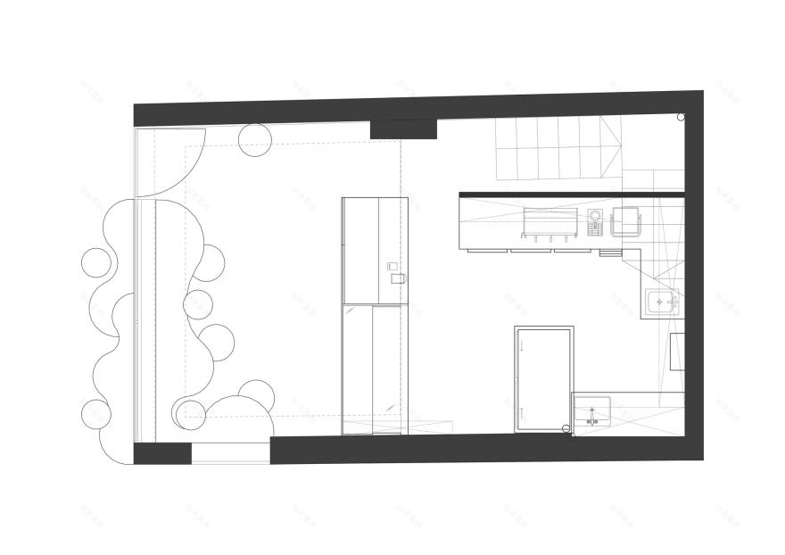
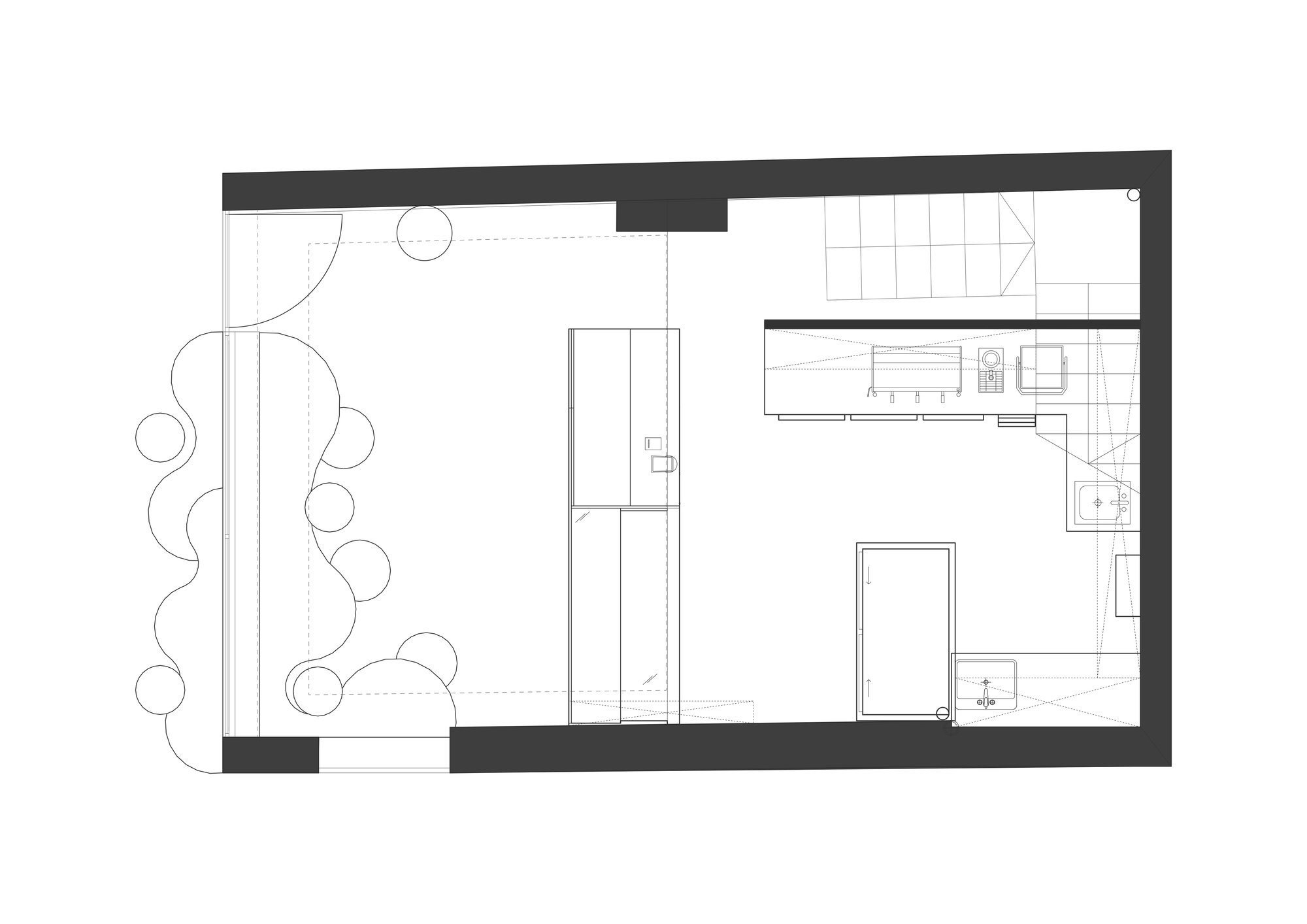
The interior of Alon's store offers a unique experience with its minimalist appearance and basic colors, creating a contrast with the street's familiar character. The studio's design and material choices aimed to highlight the patisserie's displays rather than compete with them using: Neutral gray colors, basic geometry, and clean, minimalist lines. Moreover, the studio created a distinctive seating system that defies the space's minimalist nature. The oval geometry, bright blue color, and iconic formality of the seating system make it Visually appealing for pastry lovers and easily recognizable from the street.
The venue is split into two levels, with the entrance floor featuring the main kitchen and a display counter as the primary point of interaction between the staff and customers. Additionally, customers can enjoy a cozy seating area where they can purchase and appreciate the designs of serving utensils created by both local and international designers. The seating arrangement includes stool benches and small tables, which merge smoothly into the street, forming a formal sequence that connects the indoor and outdoor spaces.
On the upper level, there are toilets, a general preparation kitchen, and storage space, which serves both the staff and customers.
Project gallery
Project location
Address:Tel Aviv-Yafo, Israel
客服
消息
收藏
下载
最近


















