查看完整案例

收藏

下载

翻译
Architects:studio fragment
Area:339m²
Year:2022
Photographs:Kim Donggyu
Lead Architect:Seo Donghan
Design Team:Seo Donghan, Kim Hannah, Song Jaewoo
Clients:Musinsa,.inc
Brand Identity:C.F.C
Country:South Korea
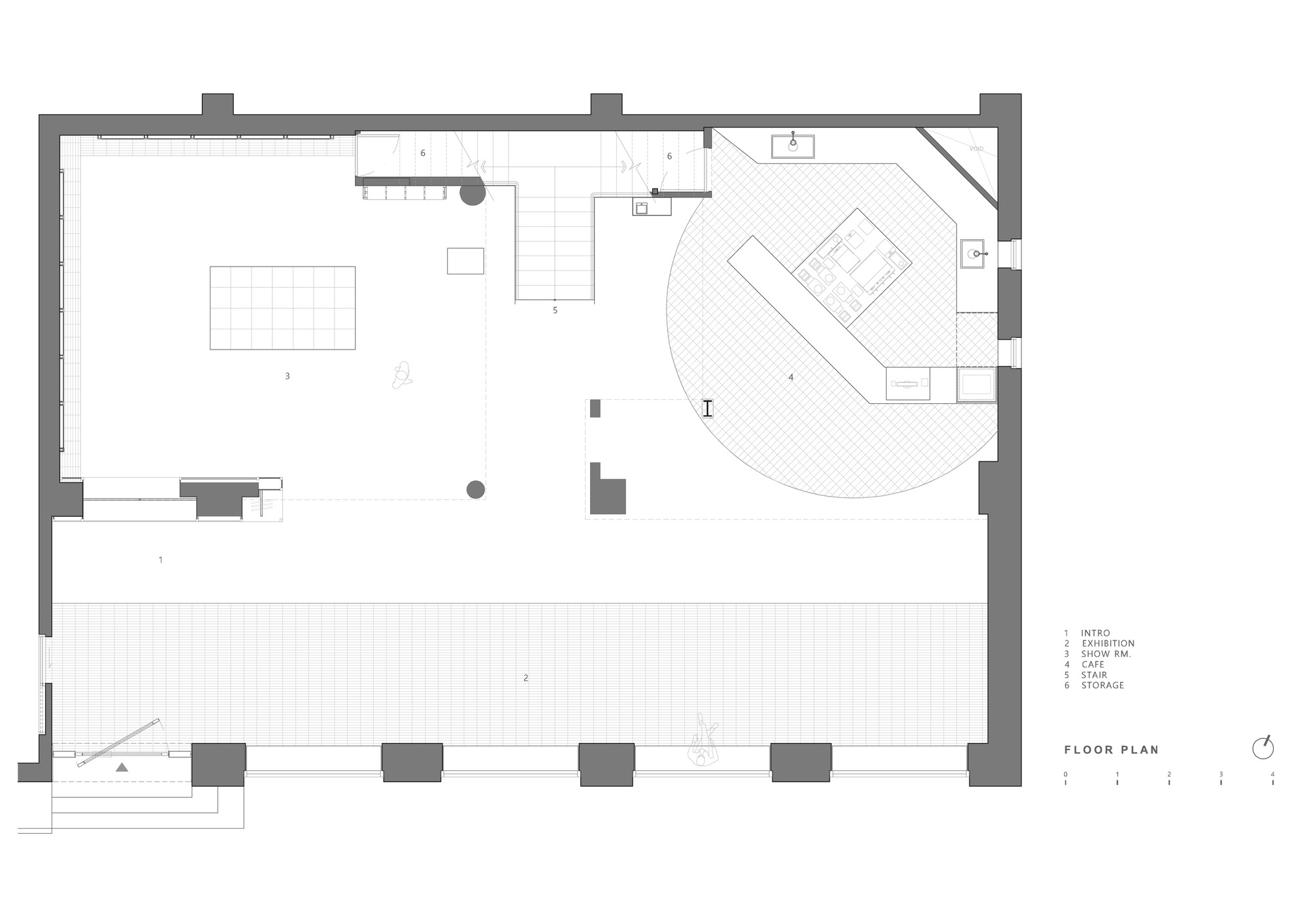
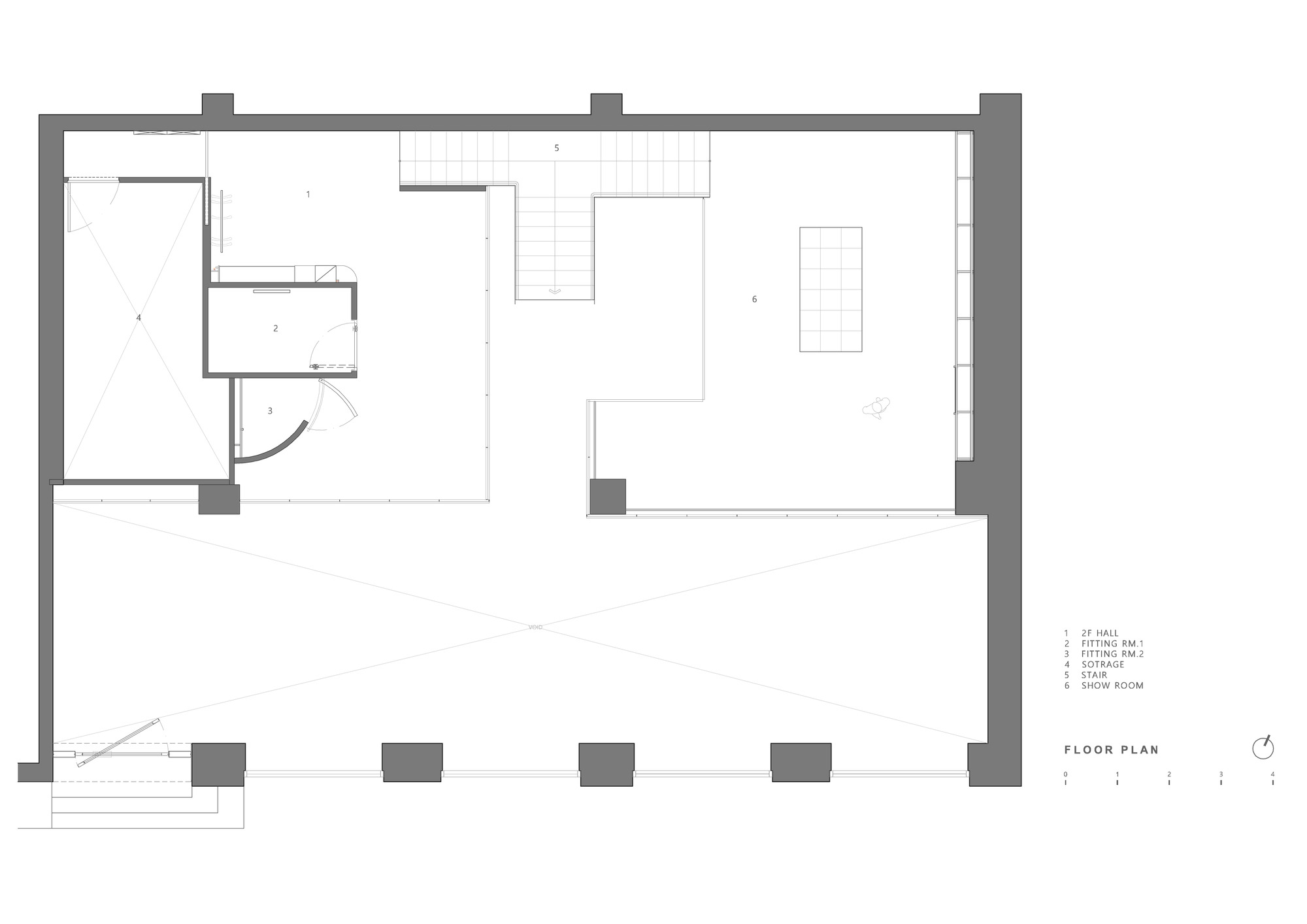
‘29CM Seongsu’ is the first offline showroom of the online store ‘29CM'. Making the unknown known means a change in cognition. ‘29CM’ specializes in discovering and introducing new things. The friendly way of speaking as if telling a story is also a unique feature of the ‘29CM’ online store.
We were very attracted to the development of a unique format of ‘29CM’. We designed it so that ‘29CM’'s unique way of suggesting and introducing various tastes under the theme, like a magazine, can be developed in the space as well.
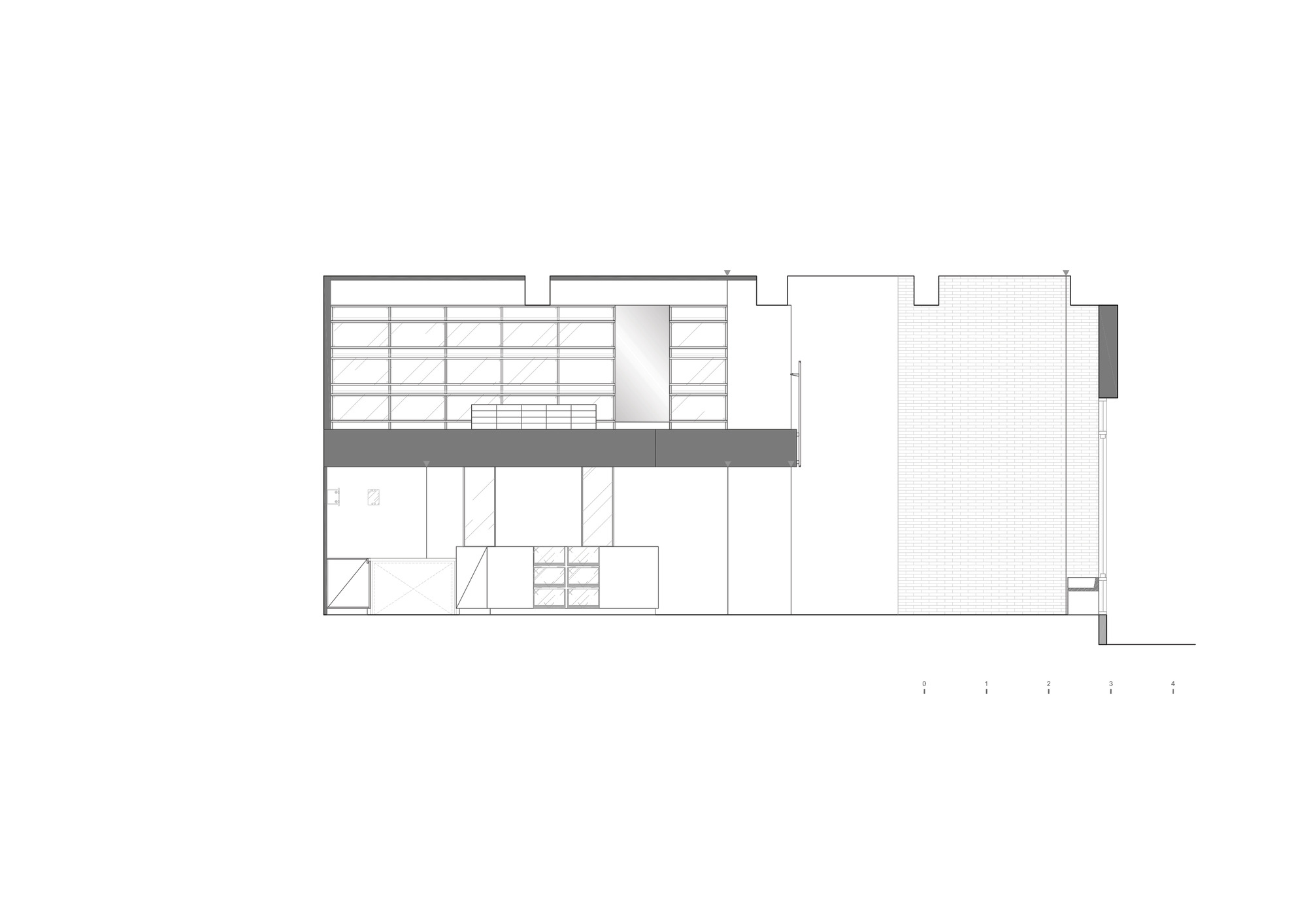
We intended to be a platform that can contain various contents and spaces like drawing paper. Devices and shelf methods that can organize various types of exhibitions in space were designed.
The frosted glass layer is characterized by changing color from inside to outside through the material. We actively used it because recognizing the invisible is also consistent with the characteristics of ‘29cm'.
Project gallery
Project location
Address:Seoul, South Korea
客服
消息
收藏
下载
最近






































