查看完整案例

收藏

下载

翻译
Interior Designers:Linehouse
Area:2000m²
Year:2022
Photographs:HDP photography
Lead Designer:Briar Hickling
Client:Great Eagle Holdings
City:Hong Kong
Country:China
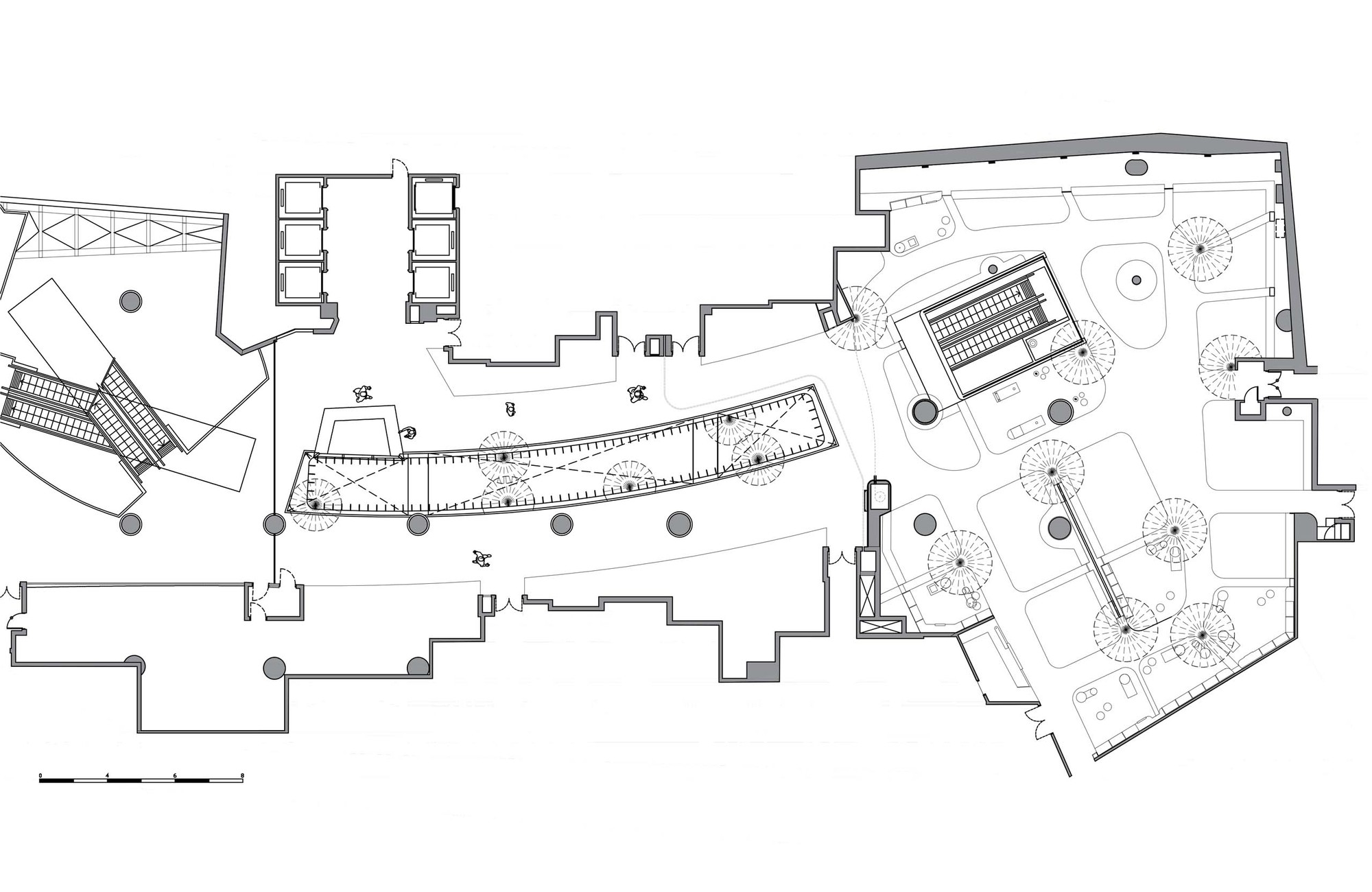
Text description provided by the architects. Langham Beauty Galleria located in Langham Place, Mongkok, Hong Kong, is a 2000 sqm beauty hall. Occupying 2 levels the beauty hall operates as a platform for a range of beauty vendors, rotational events, and pop-ups. Unlike traditional beauty halls, the spatial identity of Langham Beauty evokes a return to nature, and one’s natural radiance. This is represented in the organic rhythm of the timber ceiling fins, undulating radiating trees, a truth in materiality, and ephemeral light.
Upon entering the beauty hall, one passes through a double-height space. Previously closed off by a skylight Linehouse opened the atrium, inserting timber trees that line the passage. The trees undulate in height, creating a forest-like canopy through the circulation space and filtering light down into the retail floor below.
The atrium perimeter is lined with timber fins that wrap down to cover the ceiling plane, hovering above the vendors. These timber fins organically shift in profile creating a sense of passing time and rhythm.
An honest material palette of oak timber is employed for the trees and ceiling. The structure of the trees is composed of a series of timber fins that diverge out in a radial pattern at the tree tops to form the canopies. Lower level trees are backlit, creating focal points to guide customers through the retail floor.
The design of the lower level fixtures seeks contradiction in materiality to create qualities of natural vs man-made, tectonic vs. organic. The fixtures are composed of inserted stainless steel elements and floating plush peach glass.
Project gallery
Project location
Address:8 Argyle Street, Mongkok, Kowloon, Hong Kong, China
客服
消息
收藏
下载
最近






















