查看完整案例

收藏

下载

翻译
Interior Designers:CJ Studio
Area:660m²
Year:2021
Photographs:Emil Fagander
Manufacturers:Andreu World,Ferm Living,Artek,FLOS,Friends & Founders,Glas Italia,HAY,La Cividina,Massproductions,Møbel Copenhagen,Occhio,Ogeborg,Swedese,VitrA
Lead Architects:Charlotta Skog, Jonna Flordal, Alva Karasalo Dahlbäck
Lighting:Occhio
City:Stockholm
Country:Sweden
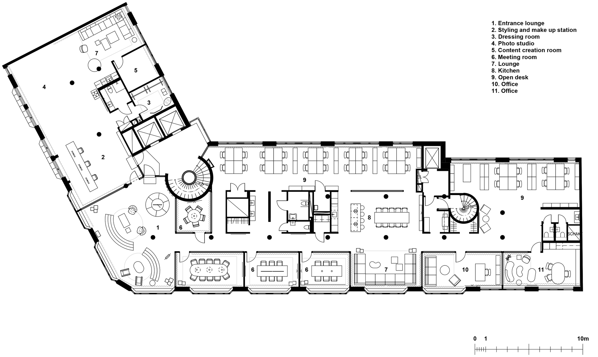
Text description provided by the architects. CJ studio has transformed an entire floor of a 1970s office building into a showroom, head office, and studio for the Swedish make-up and skincare brand CAIA Cosmetics. The interior design focus on creating an extraordinary, candy-colored yet professional space to represent CAIA and enhance the experience of their brand. The color palette and concept are inspired by the company's identity, its products, and visual language.
The program is divided into two parts. A showroom part with a photo studio, styling and make-up station, a room for content creation, and a lounge. The interior in this part of the space is white, sharp, calm, and crispy with the exception of a bright pink dressing room and a grand table in white oiled oak specifically designed and manufactured for this project, serving as a station for styling and makeup for photoshoots.
The second part is the office space with four meeting rooms, two open office spaces, a kitchen, a lounge, and two offices. This part takes up approximately two-thirds of the 660 square-meter space and is divided from the showroom and studio by a generous and welcoming entrance lounge. The conference rooms have individual color schemes of pastel green, blue, purple, and silver.
These rooms as well as certain colorful objects and elements throughout the office have a scenographic feel and stand out in contrast to the otherwise minimalistic yet sharp interior. The idea is for the interior to work as a backdrop for the products and the creativity of the office.
Project gallery
Project location
Address:Stockholm, Sweden
客服
消息
收藏
下载
最近





















