查看完整案例

收藏

下载

翻译
Interior Designers:Yatofu Creatives
Area:245m²
Year:2020
Photographs:Wen Studio
Design Team:Angela Lindahl, Yihan Xiang, Sheen Tao
City:Ningbo
Country:China
Text description provided by the architects. Ningbo’s Bund (Waitan) area holds high historic significance as the home of the province’s first post office. In establishing a new location on the banks of the Yongjiang River, the Bund Post Office sought to revive the establishment’s former significance and re-establish its role as the center of the community.
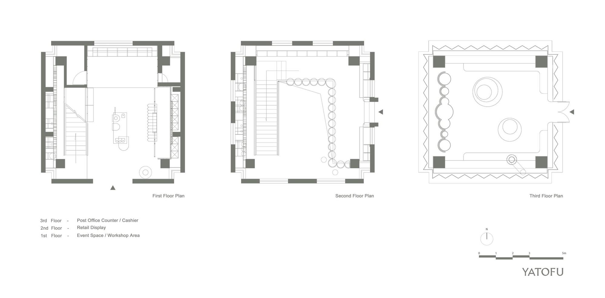
The new premise, therefore, needed to evoke a sense of nostalgia and at the same time provoke the boundaries of what is traditionally associated with the concept of the post office. The Bund Post Office chose to collaborate its efforts with the neighboring “Nordic Books” to place an emphasis on lifestyle while adding contemporary cultural interests into the mix. The Bund Post Office’s three floors are made up of the post counter and station, gift and souvenir retail displays, and a children’s play area that is also used for workshops and seasonal events.
Nostalgic forms combined with a festive palette featuring greens, white and rich shades of red allow the historic references to living in a contemporary context. As visitors enter, the space opens up into a double-height atrium, with a post office and checkout counter on the first floor and a striking and dynamic white staircase structure sweeping through the space from the first floor up to the mezzanine. The eye-catching staircase is clad in perforated metal mesh, creating a transparent and bold visual statement while incorporating functional writing surfaces and retail display structures at the same time.
The second floor sees the continuous extension of the mesh staircase structure as well as display shelves painted in a deep hue of crimson, with two built-in reading booths featuring green leather and custom lighting. The third floor, which is entered through a bridge from the adjacent premise, is a private children’s event and workshop space, surrounded by undulating panels of glass windows and inspired by community rooftop gardens.
The brief from the client was posed as a question: How can we reimagine the role of the post office in the community? The initial research led to the realization that post offices are often seen as most necessary during times of celebration – this means holidays, festivals, birthdays, and of course the culturally significant, Chinese New Year. This led to the redefinition of the brief itself as creating a post office that combined its normal functions with gift retail, cultural events, and a children’s an event/play space.
The Bund Post office, therefore, becomes a one-stop-shop for customers looking to send greetings and presents for celebratory purposes, and at the same time serves as a gathering point for the community’s families for seasonal events. In its completed form, the Bund Post Office delivers a fresh perspective on the role of the post office in the modern setting. It reaches beyond its founding purpose of sending and receiving mail and offers a hub where visitors can connect with one another through the sharing of gifts, memories, and events.
Project gallery
Project location
Address:Ningbo, Zhejiang, China
客服
消息
收藏
下载
最近





















