查看完整案例

收藏

下载

翻译
Architects:Emilieu Studio
Area:2000m²
Year:2020
Photographs:Antoine Huot
Manufacturers:Howe,Snef,Viriot - Haubout
Decorative Painting:Pierre Yves Morel
Woodwork:D.S.F Crew
City:Toulon
Country:France
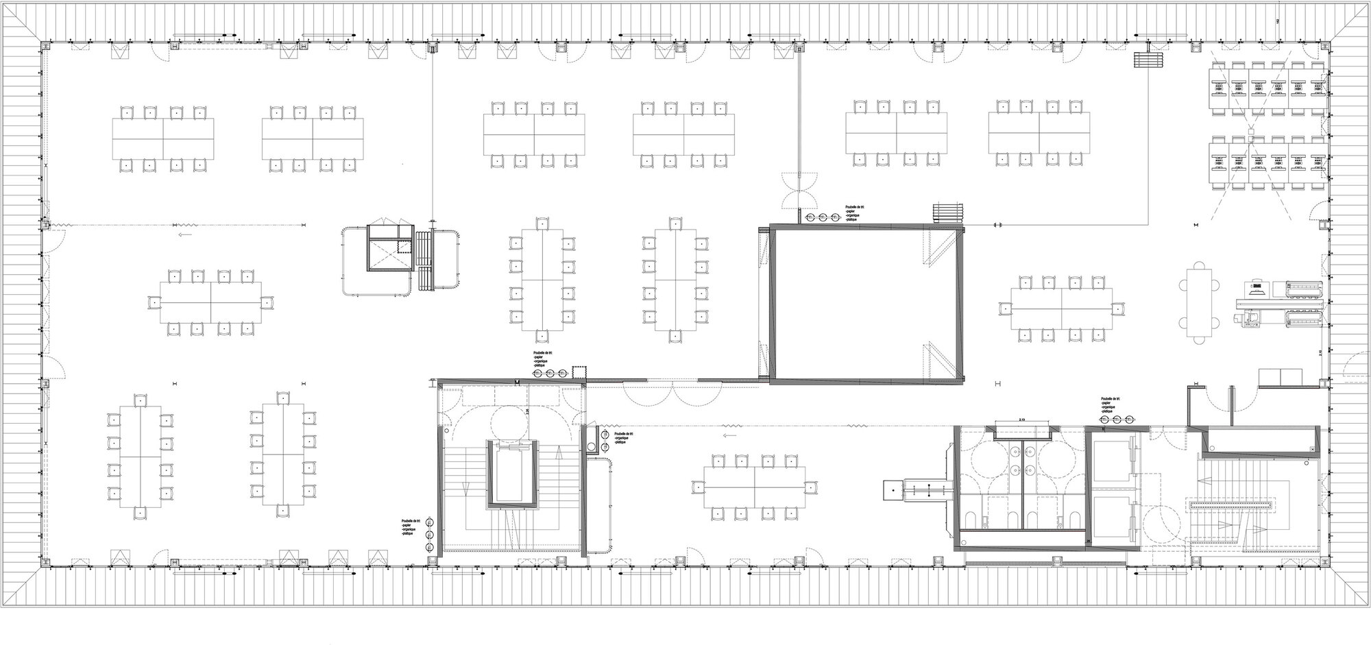
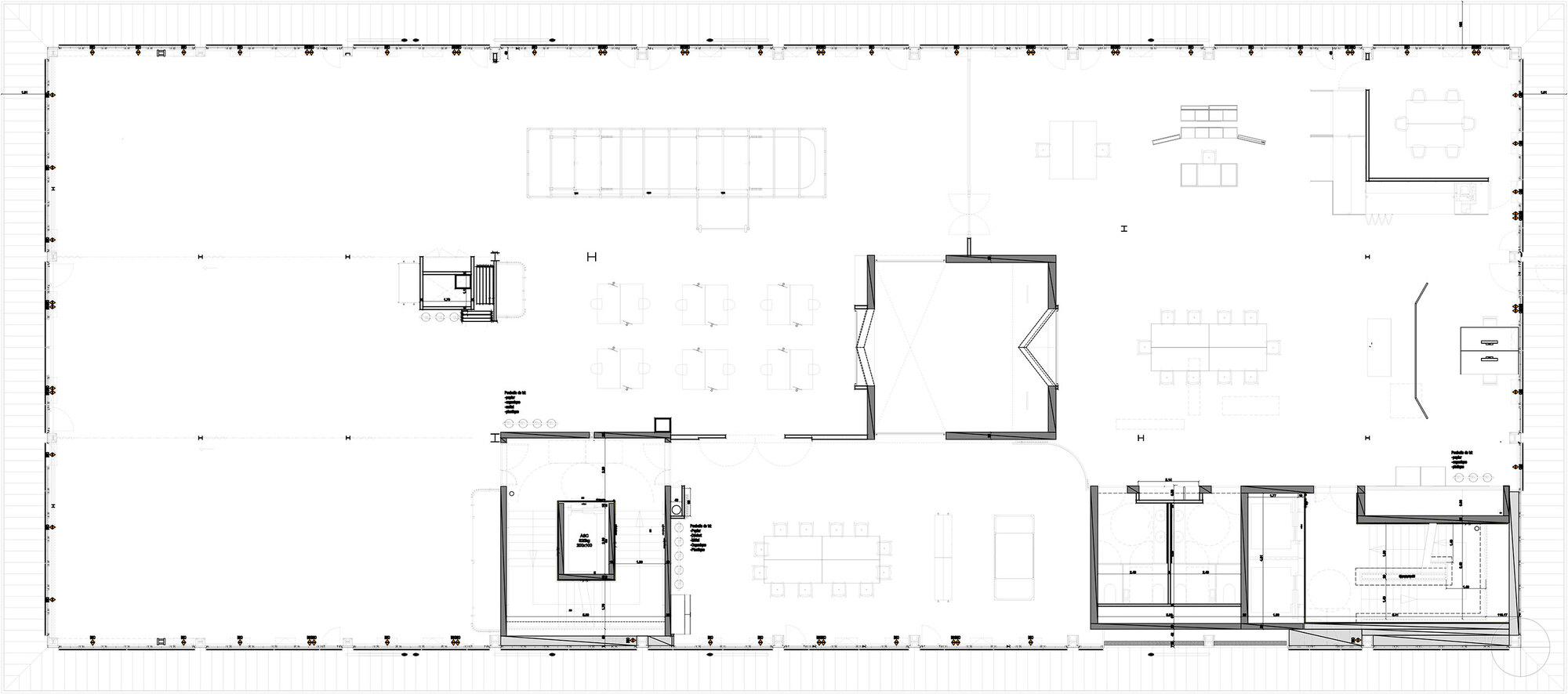
Text description provided by the architects. Being given the opportunity by the product design and interior architecture school Ecole Camondo Méditerrannée to design its entire interior design and architecture, Emilieu Studio took the challenge to build a learning space where pedagogy and ecology are not only companions to one another, but also stem from one another. The key to this new way of teaching space design is to embody pedagogy in a practical area, instead of abstractions and generalizations.
The choice was made to root the school in its Mediterranean territory and embrace the local interior/exterior dichotomy by creating a mobile school. The furniture stems from a custom standard, the trolley, creating a fully interoperable and transportable system for modulating any piece of furniture the students would need.
The combinable system of a flat surface, vertical surface, seat, is made out of 100% reused and outdoor-proof material (marine plywood and sails), enabling any outdoor project and the exploration of local crafts. The school’s interior is a scale one playground, enabling exploration on all axes, like the technical grid on the ceilings of both 1000 m² floors; or the entirely modular furniture. Every design choice becomes a learning surface so that the school becomes a landscape of exploration.
Ecology being a situated science, 2.4 m x 2.4 m detailed maps of various scaling (from neighboring territory to Mediterranean scale) ornate the interior and are fully writable for better collaboration. There is no Camondo sign at the entrance, all the eyes can see, is the map. The map, the territory, is the school. The school is as much a matrix of multiple potentialities as it is a product of its environment. Both deposits of raw reused material (maritime plywood and sails) come from local shipyards and the surfaces are enhanced by bio-based inlays, like a black cork.
The materials are hence fully reused, but also fully reusable. Pushing forward a manifest for ecological pedagogy, Emilieu Studio dared to rehabilitate faux. One of the innovative challenges was to come out with rehabilitation techniques for enhancing reused material. The choice was made to paint a series of large modular pieces of furniture with trompe l’oeil of rare, rich, and elegant minerals of the region. This avoids the extraction of rare materials and creates a learning space displaying a scale 1 library of minerals.
Far from pure provocation, Emilieu Studio refuses any concession with eco-responsibility and goes back to the fundamentals of ecology and pedagogy: widening the perspectives and innovating. Be it by furnishing a 2000 m² school site exclusively with 100% reused and reusable material from the cushions to the kitchen, or using faux.
Project gallery
Project location
Address:Toulon, France
客服
消息
收藏
下载
最近



















