查看完整案例

收藏

下载

翻译
Architects:Paul Le Quernec
Area:2500m²
Year:2016
Photographs:11H45
Manufacturers:CBA,Cilia,Eiffage,Meder,Stutzmann,Vonderscher,iJuk
Structural Consultant:Batiserf
Consultant Specialized In Fluides:Solares Bauen
Construction Economist:E3 Economie
Building Costs:E3 economie
Client:City of Strasbourg
Cost:2500000 euros
Fluids Specialist:Solares Bauen
City:Strasbourg
Country:France
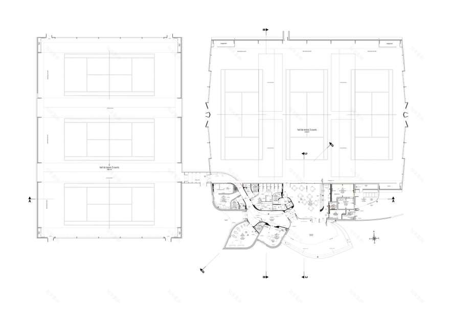
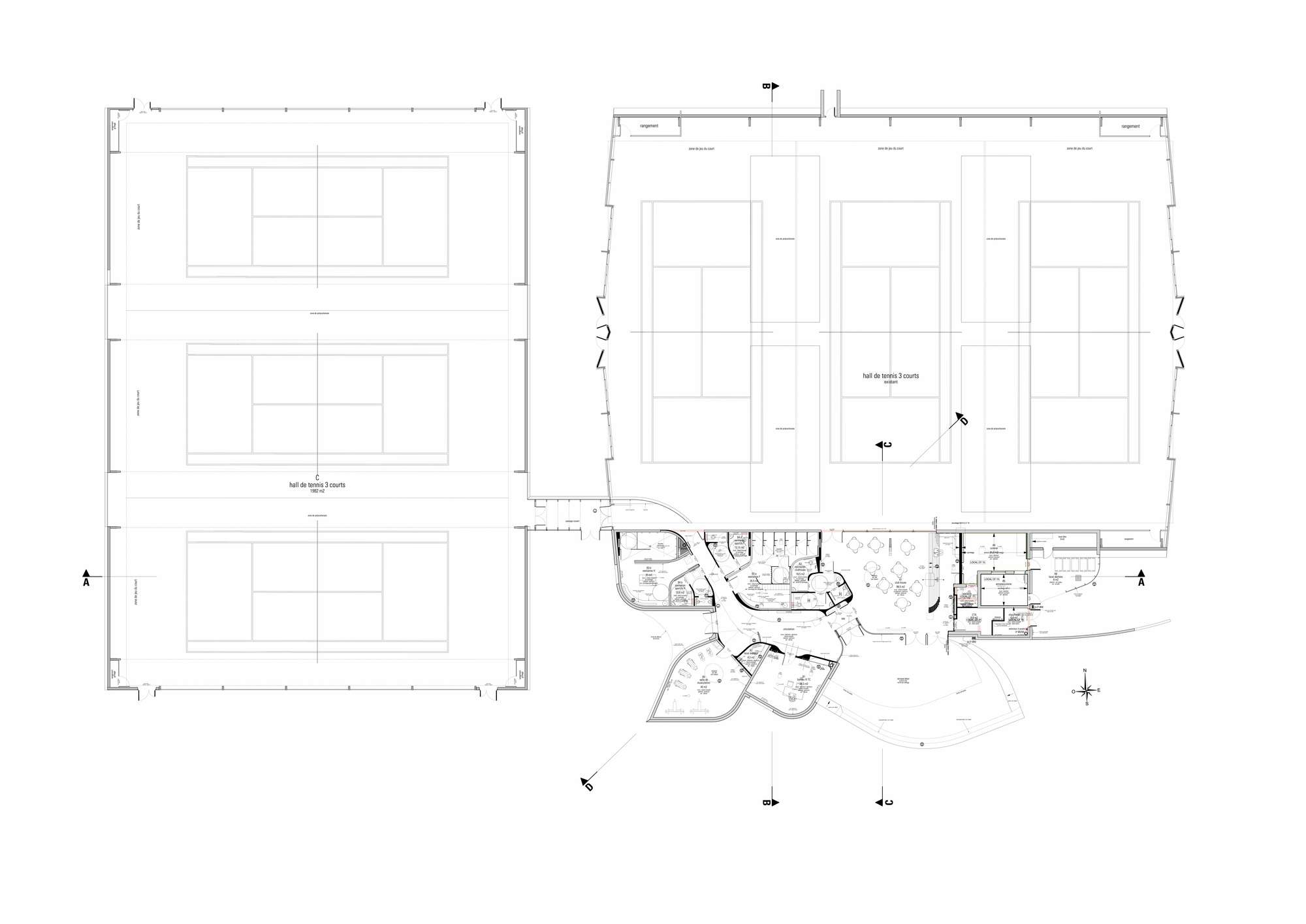
Text description provided by the architects. The project consists in a new tennis hall building with three new covered tennis courts and and new club house including changing rooms, fitness room, office, restaurant and bar with wide covered terrace.
This tennis club design is directly inspired by people flow in and through the building, considered as tennis ball dynamic trajectories, flowing from point to point, from function to function
The new building is generously day-lighted with sky domes and a special colour treatment of the floor increases day light effect. Areas where natural light falls are treated with a beige resin, the room borders and corners are treated with deep orange resin. Both are linked with a rough handmade colour gradient. The result is a kind of augmented reality, providing a feeling of sunny weather whatever is the meteo.
All the furnitures were designed for this project, each of them is a unique piece. Master piece is the 777cm long bar, made of solid wood slices. One edge sits on the floor and the opposite edge is suspended from the roof and all under space length stays free.Note: This project was originally published on July 13, 2017
Project gallery
Project location
Address:Strasbourg, France
客服
消息
收藏
下载
最近

































