查看完整案例

收藏

下载

翻译
Architects:SEU-ARCH
Area:1972m²
Year:2022
Photographs:Time Raw
Lead Architect:Yuan Zhu
Design Team:Zhenyi Wang, Weijing Dai, Wenjun Liu, Cheng Fan
Landscape Design:Yuan Zhu, Zhenyi Wang, Weijing Dai
Engineering:JIANGSU TRY STRUCTURAL DESIGN Co., Ltd.
Consultant:Jiangsu Lanyan Construction Group Co., Ltd, Mao haibin, Zhang hao, Zhang wenlong
Collaborator:Jiangsu Meficheng Architectural & Planning Design Institute CO.LTD.
Client:Xuyi Youlian Asset Management Group Co., Ltd
City:Huai An
Country:China
Text description provided by the architects. The project is located in Xuyi, Jiangsu Province, with Huaihe River in the northwest and the First Mountain in the southeast, adjacent to the First Mountain Historic District. The existing building on the site is a three-way courtyard, currently vacant, with an abandoned water tower in the backyard. Drinking tea and watching Huangmei Opera is very popular in the local area. The openness of the teahouse-style small theater is in line with the simplicity and lightness of Huangmei Opera. In terms of space and function positioning, it is not limited to conventional theater interpretation, but to build a small theater based on the local characteristic Huangmei Opera, combine with the local taste of Yushan Tea, and introduce the traditional cultural exhibition and salon space of intangible cultural heritage to form a "Huangmei Opera+" characteristic cultural museum.
Make large spaces smaller, echoing nature and mountains. On the basis of fully satisfying the function of the small theater, the design makes the building have a dialogue with the landscape and the texture of the block. Dissolve the sense of the scale of the large space of the small theater, and integrate the rolling mountain scenery with the folded undulating roof.
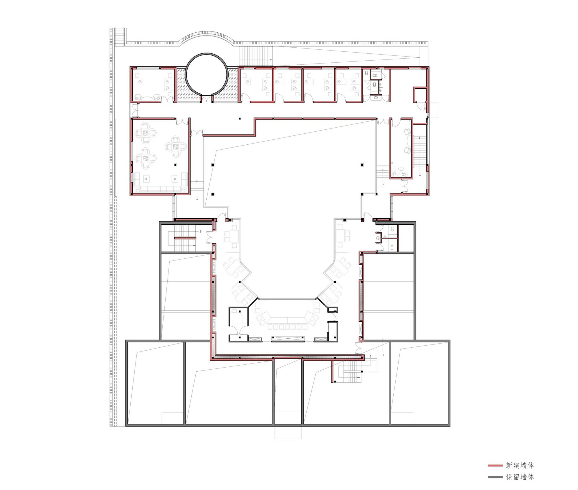
New and old dialogue, space pluralism symbiosis. Moderately renovate and extend the preserved building, using the original courtyard as an auditorium of the small theater to connect the old building with the new one. Preserve the "space" pattern of the original building, open a hole in the middle of the wall to connect the originally closed space, and form a shared space sequence.
The spatial pattern of the entrance of the original building is retained as the entrance of the performance hall, implying the continuation of the space attribute in the renovation. The steel structure is used to prop up the roof on both sides of the audience hall, and part of the raised part becomes a skylight. The side lighting can be used as a multifunctional hall. The texture of wood and brick gives the elements of the interior space a special perceptual experience.
Low carbon construction, materials recycling. Following the concept of low-carbon construction, the design preserves the materials of the original building as much as possible. Recycle the roof truss, watchboard and old brick temporarily removed during construction. The original materials have formed unique patterns in the use of buildings.
U-shaped structure equipment wall, technology-intensive composite under the division of space inside and outside. The U-shaped wall is designed to divide the commercial and theater Spaces and support the roof as part of the structure. At the same time, HVAC equipment, water pipes, and electricity pipes are integrated into the cavity of the equipment wall. While dividing and clarifying the spatial attributes, the equipment is concentrated in the cavity to serve both sides of the space, strengthening the design concept of space-structure-equipment integration.
Project gallery
Project location
Address:Huai He Bei Lu, Xu Yi Xian, Huai An Shi, Jiang Su Sheng, China
客服
消息
收藏
下载
最近



































