查看完整案例

收藏

下载

翻译
Architects:skimA
Area:292m²
Year:2022
Photographs:Jinbo Choi
Manufacturers:Gonggan-sw
Lead Architect:Sejin Kim
Architectural Design:Hwieun Ahn
Structural Engineer:MOA & Consulting Engineers, Ltd
Mep Engineering:DAEDO Engineering
Contractor:Taeyang Construction
Project Architect:Yunseon Cho
City:Mapo-gu
Country:South Korea
Text description provided by the architects. Yeonnam-dong used to be a low-rise residential area, but in recent years, remodeling into cafes and restaurants has accelerated, centering on the Gyeongui Line Forest Road, called 'Yeontral Park'. The site of YN241 faces the Gyeongui-Jungang Line railroad at the end of Yeonnam-dong and is located in front of the Yeonhui Underpass that goes to Yeonhui-dong.
The client of YN241 has planned to renovate the existing multi-family house 'Yeonggwang Villa', and the lower floors are composed of a small but good music cafe and wine lounge to deliver a comfortable and rich experience to people, and a plan to brand and expand based on this. The upper floors are used for an office space operated by the client, and the rooftop can provide a view of the train tracks, the sound of passing trains, and the scenery of bamboo swaying along the railroad for guests.
Remodeling Strategy | Repairing Instead of Wearing New Clothes - Yeonggwang Villa, built in the early 1990s, was made of red bricks and traditional tiled eaves at the top, like many other villas around it. Instead of putting on new clothes in consideration of the limited budget and the surrounding buildings, the modification was selected as a remodeling strategy rather than a transformation. The outer wall of the stairwell at the corner facing the Yeonhui Underpass was demolished and replaced by thin aluminum vertical louvers to secure a sense of openness, and the space seen through the louver was made to reveal a subtle reddish wine-colored stucco. The eaves with roof tiles were changed to thin metal horizontal plates while maintaining the role of eaves, and glass balustrades were installed to indicate the rooftop space, and the appearance of the building was refreshed with vertical aluminum louvers and horizontal metal plates.
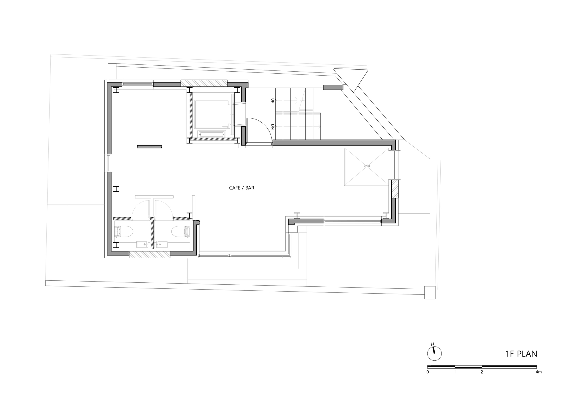
The existing semi-basement floor and the first floor were planned to be the open lounge space by connecting and expanding the space for a cafe and wine bar in connection with the neglected outdoor space and street. A new entrance directly connected to the semi-basement was placed on the street side to secure the frontage of the building, and a void was created at the top of the internal stairs to secure a visual connection and openness with the first floor.
The office space on the 2nd and 3rd floors and the living space on the 4th floor were all changed to an open plan through steel reinforcement to accommodate new programs. A new elevator was installed to facilitate movement from the lounge on the ground floor to the rooftop, and the traces of the existing water tank room, new elevator top, and staircase overhead were planned to coexist with different physical properties and heights.
YN241 hopes to be recognized as a space like a lantern that lights up in soft colors when crossing the underground walkway at the end of Yeonnam-dong or following the wall of the railroad track.
Project gallery
Project location
Address:63 Donggyo-ro 51-gil, Mapo-gu, Seoul, South Korea
客服
消息
收藏
下载
最近

























