查看完整案例


收藏

下载
Museu, Shenzhen, China
设计师:Vector Architects
面积:47269 m²
年份:2019
摄影:Shengliang Su, Chao Zhang
负责建筑师:Gong Dong
Arquiteto Projeto:Yue Han, Peng Zhang, Jinteng Li
Arquitetos Locais:Jinteng Li, Guangli Yu (colaborador local)
设计团队:Xiaokai Ma, Dongping Sun, Liangliang Zhao, Xiangdong Kong, Yihsuan Lin , Jiadai Wu, Yun Liu, Nana Zhang, Yunhan Liu
Arquitetos Ldi:Zhenfeng Liu, Zhigang Wu, Baojie Ding
Estrutura:Guoqiang Zou, Zhijiang Yi
Mecânica E Elétrica:Yu Huang, Xiaohua Liao, Shaoliang Xu, Tingwan Lu, Canrong Luo, Hong Zhang, Xiaowei Qi
景观设计:Jie Zhu, Changrong Zhang, Long Shu, Ming Feng
Consultoria Iluminação:Dongning Wang, Xiaolei Sun
Consultoria Fachada:Wangming Zhang, Chao Cheng, Jiabin Sang
客户:People's Government of Pingshan District, Shenzhen
Fomento:China Merchants Real Estate (Shenzhen) CO., LTD.
Supervisor De Competição Planejamento Acadêmico E Provedor De Serviços De Concurso:Urban Planning, Land Resources Commission of Shenzhen Municipality
Cidade:Shenzhen
País:China
设计师描述 | Designer description:
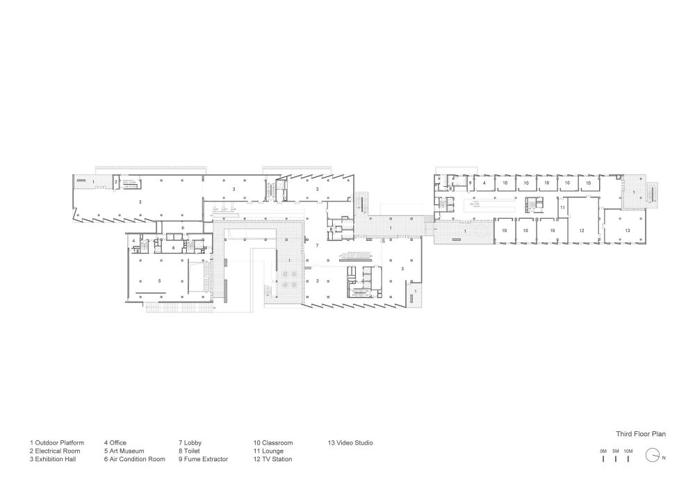
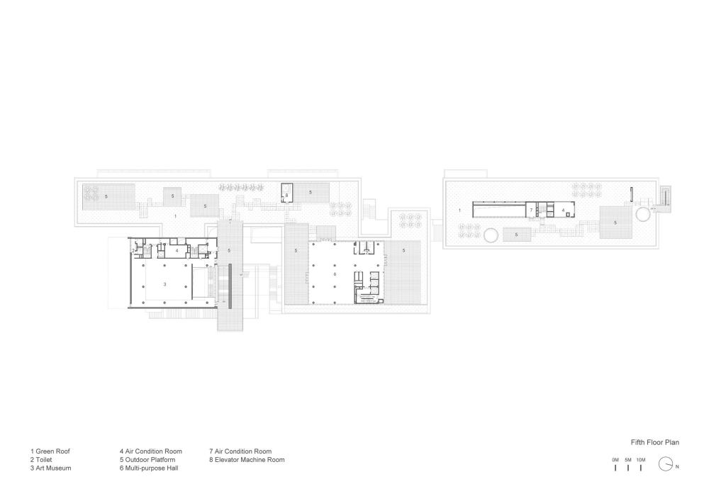
O Museu de Arte Shenzhen Pingshan está situado na fronteira de uma transição espacial urbana - a oeste, um bairro de alta densidade em uma vida urbana típica; a leste, um grande parque urbano. O Museu de Arte está organizado no sentido norte-sul, paralelamente à orla deste longo quarteirão. Em termos da disposição espacial do local, fragmentamos o volume arquitetônico para distribuir os vários espaços funcionais do museu em diferentes níveis.
设计师:Vector Architects
分类:Museu
语言:葡萄牙语
阅读原文
客服
消息
收藏
下载
最近











































