查看完整案例

收藏

下载

翻译
Architects:Think Architecture
Area:4400m²
Year:2021
Photographs:Simone Bossi
City:Thun
Country:Switzerland
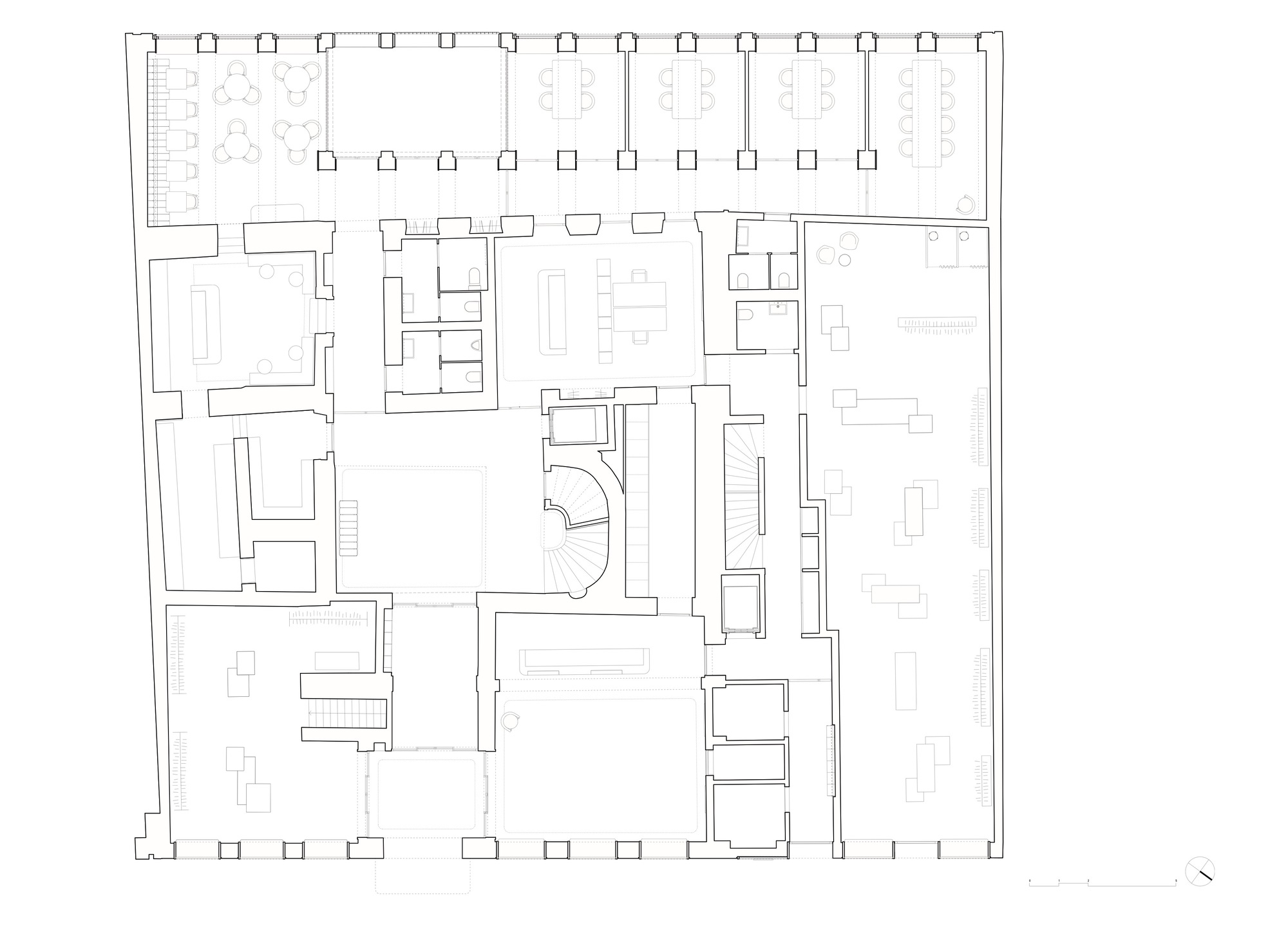
Text description provided by the architects. The listed Art Nouveau building from 1835 was extensively renovated and expanded with a pavilion-like annex along the Aare River. Various alterations at the end of the last century obscured the quality of the historically valuable "Falken". For example, the atrium as well as the ground floor were largely destroyed and - on the side of the Aare - the historic substance was extended without care.
These mistakes had to be corrected and the still existing qualities had to be emphasized again. We didn’t design our new interventions in a historicizing way, but in a contemporary way, yet with due respect for the existing structure. The atrium, which can be experienced again after the reconstruction, becomes the central element of the new Falken, which connects the various uses in an attractive way.
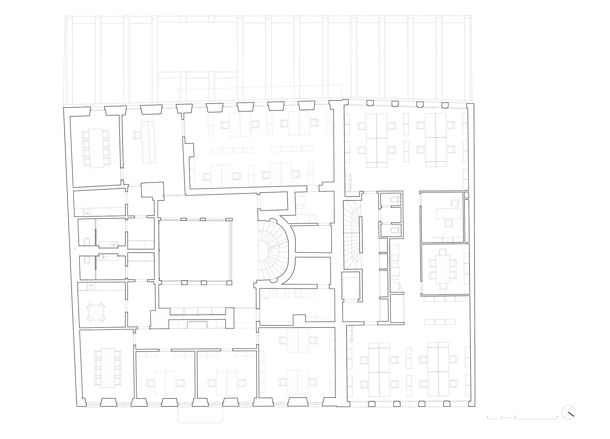
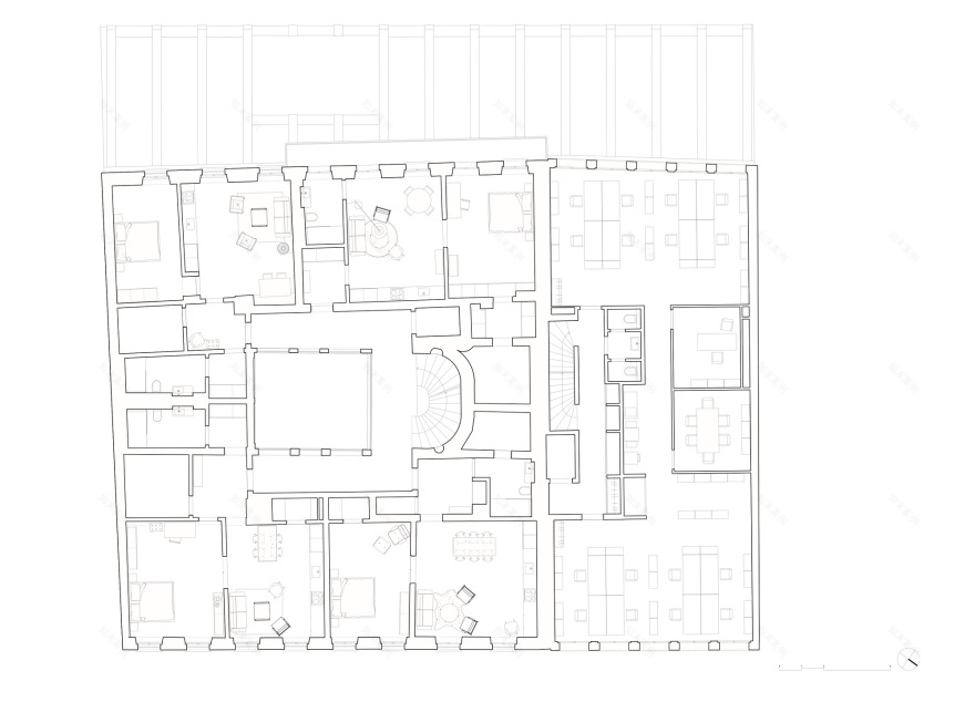
On the ground floor are the representative rooms of a bank, which are supplemented with a boutique and on the Aare side with a café. Offices and attractive old town apartments were organized on the upper floors. The new annex building along the historic city wall of Thun was made of prefabricated concrete elements. The elements span from the city wall to the wall of the river bank and take over the rhythm of the main building.
The statics become visible and structure the space inside and outside. Characteristic elements such as the existing segmental arches of the atrium were taken up and – modern interpreted- find their application in various ways in the new "Falken".
Project gallery
Project location
Address:Thun, Switzerland
客服
消息
收藏
下载
最近































