查看完整案例

收藏

下载

翻译
Architects:ACAU Architects
Area:1030m²
Year:2022
Photographs:Charly Broyez
Lead Architects:Flavien BLONDEL & Vincent DUBILLOT
City:Verson
Country:France
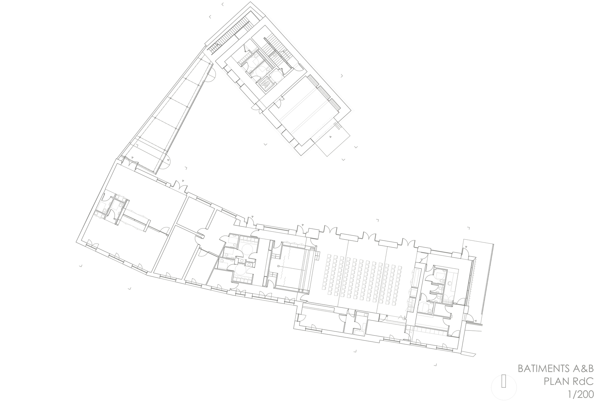
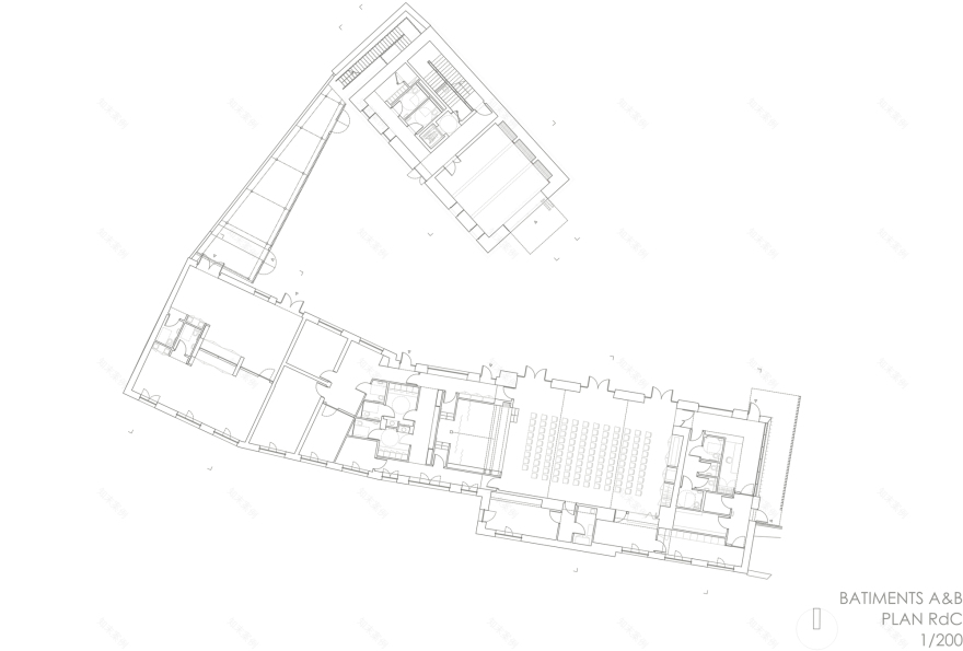
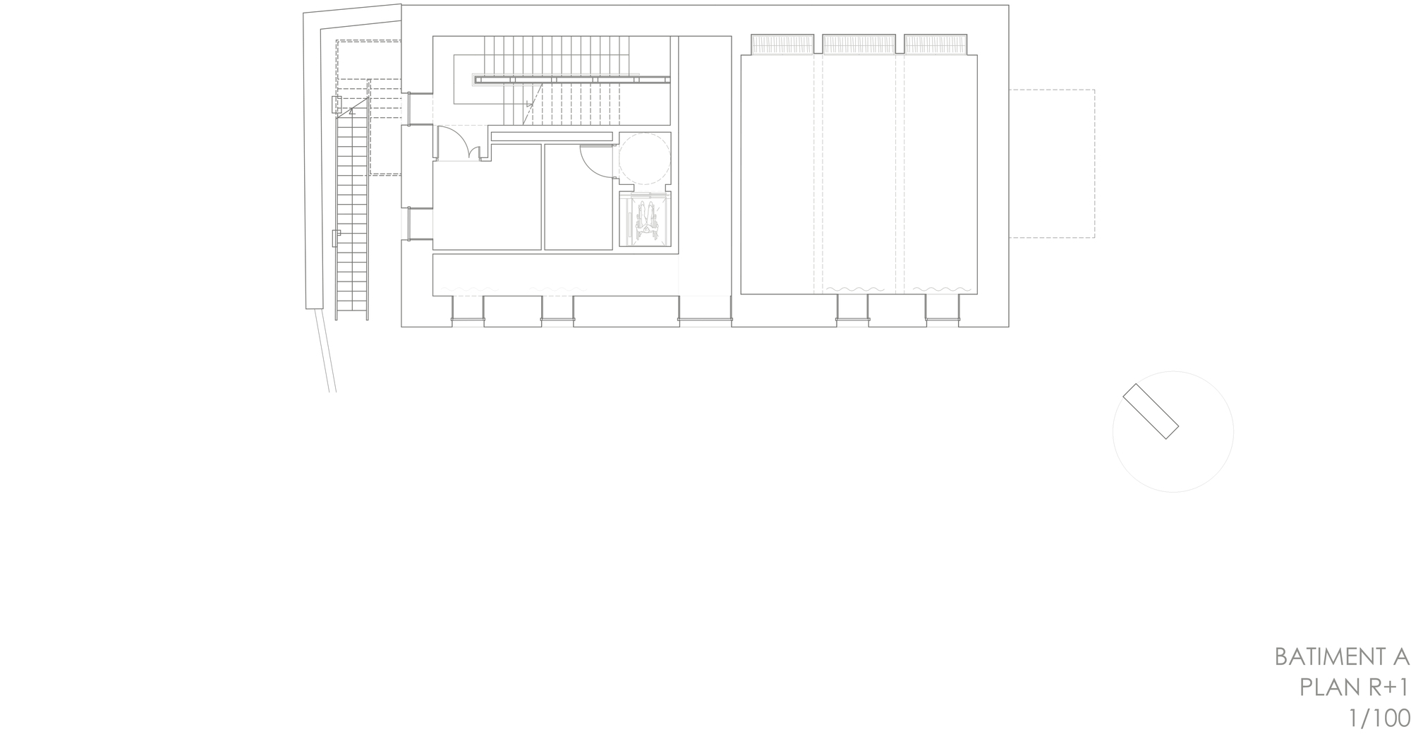
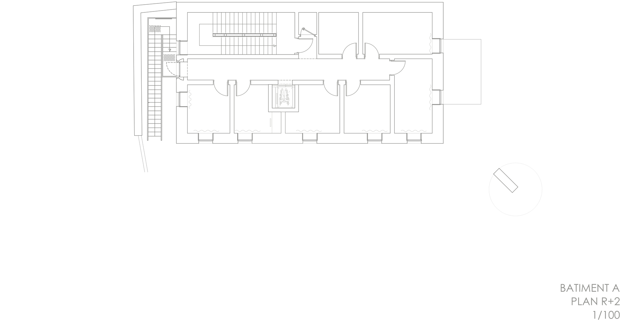
Text description provided by the architects. The rehabilitation of the former Rotation Workshops was guided by a desire to restore, with respect, this built heritage that reflects the history of the site and the town, in line with the programming desired by the Municipality of Verson (cultural center, multi-purpose hall and association spaces).
The proposed project is intended to offer interventions with assertive modernity, always in line with dedicated use. Here, the new generosity of the entrances, the installation of protective canopies, the creation of a courtyard linking the two buildings, the proposal of anodized woodwork with an iridescent tint or the landscaping are all "kindnesses" with the ambition of offering visitors a project that is both functional and poetic.
The Odon river which crosses the plot, the Caen stone which is revealed on the facades, the high trees and the listed church in the background, the lapping of the river or the relief of the sunny gables are all poetic elements imposing a frugal reflection and an architectural project respectful of its environment. Our responsibility as architects commits us to respond to contemporary and future environmental issues.
The structural quality of the existing buildings (massive Caen stone walls) led us to propose sprayed hemp concrete insulation. This natural bio-sourced insulation, beyond its thermal insulation characteristics, offers many advantages that affirm an ambitious architectural and technical response: - A raw material and local know-how - Respect for the existing material (hygrometric transfers) - Relevant acoustic properties - A 100% "recyclable" material at the end of the building's life. The rehabilitation of the former Rotation Workshops in Verson is intended to be a shared and ambitious architectural project, serving the public interest.
These contemporary interventions, through their writing and materiality, are intended to serve the built heritage and its enhancement within a remarkable landscape.
Project gallery
Project location
Address:14790 Verson, France
客服
消息
收藏
下载
最近











































