查看完整案例

收藏

下载

翻译
Architects:Asami Architect and Associates
Area:1650m²
Year:2015
Photographs:Tomomi Takano
Manufacturers:Revigres
Lead Architect:ASAMI Toshiyuki
Client:Shimaya Stays
Construction:Tsuji Komuten
City:東山区
Country:Japan
Text description provided by the architects. In the ancient Japanese capital of Kyoto, the wrecking ball continues to swing. The wooden townhouses that give the city so much of its atmosphere are disappearing at a rate of about 800 machiya a year.
These machiya are torn down to make way for apartment blocks, hotels and carparks; even designated heritage buildings have been lost.
But Japanese and non-Japanese alike are trying to stop the wooden townscape from vanishing. In our own way, we at Shimaya Stays – a Singaporean-Malaysian venture formed in 2014 – are working to preserve a city where we have spent much time and which continues to give us so much.
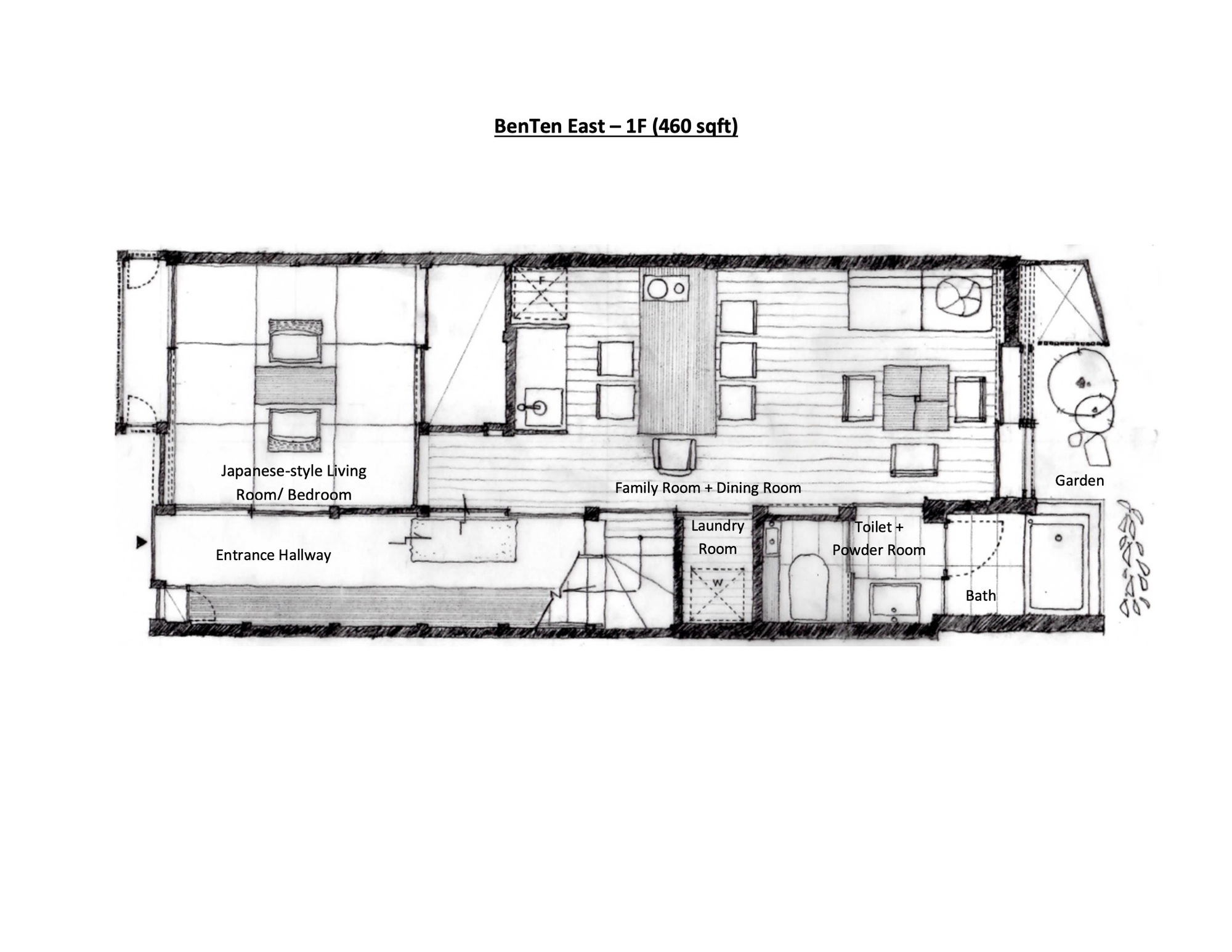
We began by saving two machiya, both more than 100 years old, which were in danger of being demolished after the previous owner passed away. Shimaya Stays bought over the land and restored the houses, which had been cemented over, to a more traditional appearance. The BenTen Residences have many of the iconic characteristics of machiya including degoshi, wooden lattice bay windows that enable air to circulate while offering those inside a sense of privacy.
Reinvented as luxury serviced accommodation, the houses, which began receiving guests in November 2015, stand as testimony to the skill of Kyoto artisans and their dedication to their craft.
The keyword for this project was restoration rather than re-creation: to bring back and showcase the traditional beauty of the machiya but also to offer convenience and comfort to a modern traveller through such features as heated flooring and wi-fi.
By making extensive use of traditional building materials such as wood, paper and tatami, the team was able to create a space at once light, airy and modern yet unmistakably Japanese.
One thing, though, has not changed. Incense is lit to sweeten and purify the rooms just before check-in: a way of welcoming guests that Kyoto continues to hold dear to this day.
Project gallery
Project location
Address:Higashiyama-ku Kamibentencho 431-3, Kyoto City, Kyoto 605-0822, Japan
客服
消息
收藏
下载
最近


















