查看完整案例

收藏

下载

翻译
Architects:Flansburgh Architects
Area:3900m²
Year:2020
Photographs:Robert Benson
Manufacturers:Forbo Flooring Systems,9Wood,Creative Materials Corporation,FilzFelt,Kawneer,Newmont Slate Company,Nordic Structures
Landscape Architect:Brown + Sardina
General Contractor:Fontaine Brothers
Construction Manager:Scalora Consulting
MEP Engineering:Rist-Frost-Shumway Engineering
Acoustics:Acentech Inc.
Furniture:Lab 3.2
Principal In Charge:David Croteau
Project Manager:Kelley Banks
Project Architect:Joseph Marshall, Madeline Le, Rob Potish
Project Designer:Lauren Barnes, Mike Banks
Cost Estimating:PM&C
City:Gill
Country:United States
Text description provided by the architects. Evangelist Dwight Lyman Moody founded Northfield Seminary for Young Ladies in 1879 and Mount Hermon School for Boys in 1881. Beginning as two institutions to educate young people with limited resources, Northfield and Mount Hermon later became a coeducational schools in 1971. NMH enrolled students of all races and ethnicities, as well as prioritized providing opportunities for students of color.
Today the school continues to encourage inclusivity, hands-on problem solving, compassionate thinking, and effective communication through holistic, rigorous academics. The new Gilder Center encourages students to develop a life-long love of learning. It honors NMH’s rich architectural history while providing a modern educational environment.
NMH’s campus sits along the Connecticut River Valley in Massachusetts, a site originally used for navigation, trade, hunting, and farming. With increased European settlement and industry in the 1800s, production and trade boomed along the river. The Industrial Revolution brought new styles of architecture to New England, including Richardsonian churches and Industrial mill buildings.
The Gilder Center commemorates the valley’s rich history with its dual relationship to the campus. The traditional, granite façade sits solidly on the green, reflecting NMH’s “well-grounded” ethos. Inspired by the work of HH Richardson, the façade is heavily rusticated with load-bearing stone lintels. The stone arch entrance harmonizes the structure with the campus’s existing chapel, as well as symbolizes a gateway to the sciences.
Behind the granite façade, the contemporary building gestures towards the Connecticut River Valley. Lifted above glass walls, the upper slate-clad exterior seems to float above the landscape. Drawing from Industrial-style high ceilings, minimalist aesthetics, and large, divided windows, its quintessentially New England design resonates with the region’s history of technological innovation.
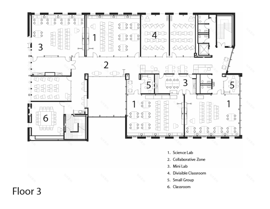
The Gilder Center has a variety of academic spaces including a faculty hub, maker space, lobby/presentation area, central collaboration zones, small group meeting spaces, 10 math classrooms, 10 science labs, and 5 mini-labs/prep rooms. These spaces accommodate multiple uses, stimulate creativity, and encourage interaction amongst students and faculty.
Embracing the school’s engaging academic environment and beautiful campus, the bright and airy interior allows for transparent views of indoor and outdoor areas. Exposed systems reveal the building’s anatomy, creating a high-tech atmosphere that demonstrates the science of construction.
The project has a sustainable design and uses local, green materials. The floor and roof structure is made of cross-laminated timber. This renewable resource reduces embodied carbon, supporting the school’s commitment to minimizing their carbon footprint. Glass walls maximize natural light, and the slate-clad exterior decreases the use of carbon-intensive manufactured products. All artificial lighting is LED, and all toilets save water through a low-flush, highly efficient design.
By combining traditional architecture and modern facilities, the new Gilder Center celebrates NMH’s heritage while providing a home for its innovative and collaborative educational approach.
Project gallery
Project location
Address:Gill, Massachusetts, United States
客服
消息
收藏
下载
最近
































