查看完整案例

收藏

下载

翻译
Architects:CAA.Studio
Area:4500m²
Year:2018
Photographs:Alişan Çırakoğlu,Soner Şimşek
Lead Architects:Alisan Cirakoglu, Ilgin Avci
Design Team:Alisan Cirakoglu, Ilgin Avci, Deniz Yazici, Batuhan Kumru, Meriç Arslanoğlu
Clients:Yuksel Proje
City:Ankara
Country:Turkey
Text description provided by the architects. METU campus, with its well-designed and sustained spaces, stands as an important case in Turkish architecture. The campus, designed after a project competition held in 1961 and constructed in the 1980s by architects Altuğ ve Behruz Çinici has a holistic architectural language. This language originates from the brutalist approach in which building materials such as concrete and brick were used in their bare forms.
Moreover, the fact that all buildings were situated alongside an alley with respect to a master plan as well as strong landscape elements that create a pedestrian life are other important aspects that make up the campus. In such a context, the most significant design input of YP Auditorium was naturally the campus itself. The aim was to create a building that would sustain the environmental context as well as to create a landmark that would carry on a dialogue between a contemporary design and the existing architecture. Not only the material and shape was taken into consideration but also the spatial quality and the features of common spaces were taken into account when creating a structure reminiscent of the original 1960s design.
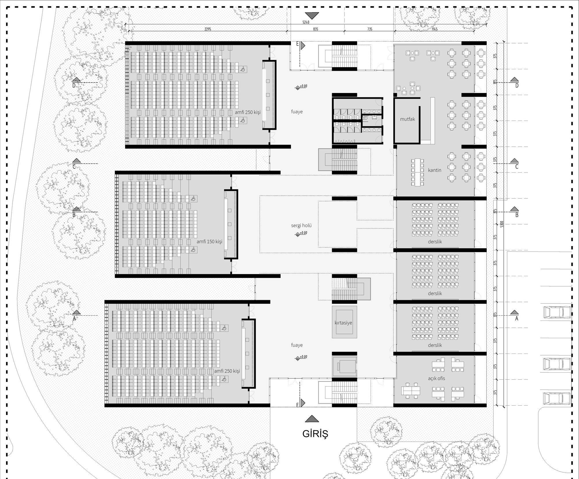
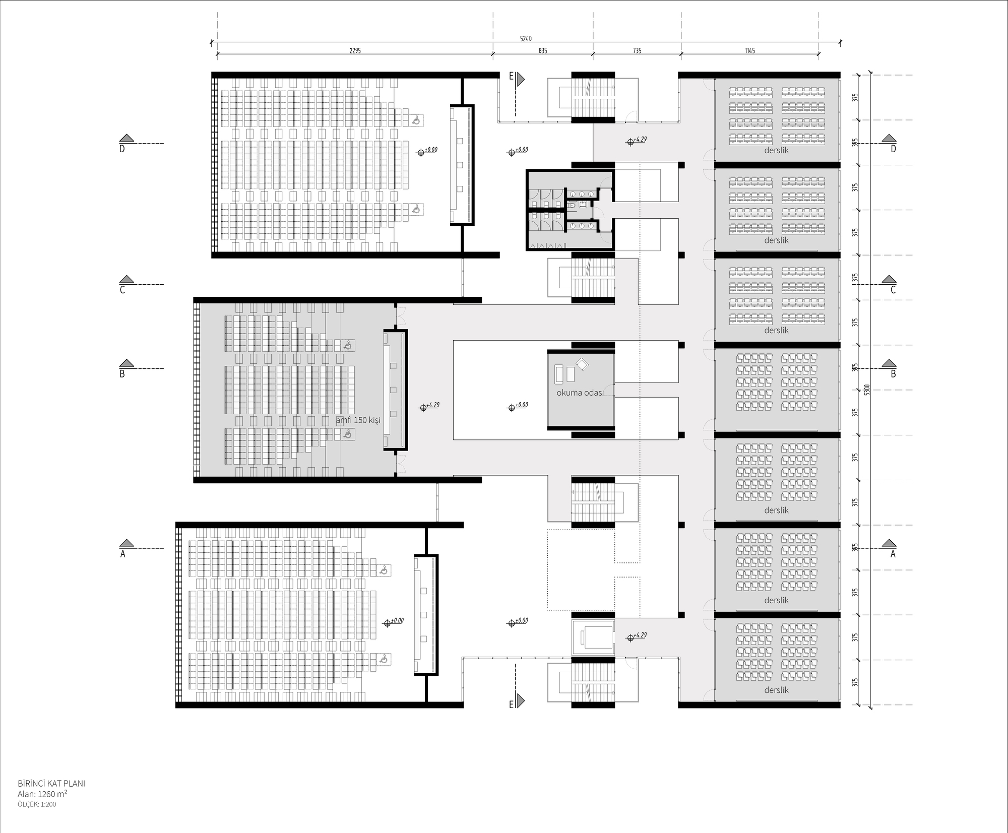
The building has 4 amphitheaters and 17 classrooms. All classrooms and amphitheaters open up to a common gallery which also is integrated into the outside, creating a continuous space for socializing and interaction. Red prismatic elements between the exposed concrete surfaces create both dynamism within the gallery space and also a colorful and vibrant contrast to the still and pale surfaces.
Four amphitheaters are massive blocks that play a prominent role in the overall design of the building. These blocks, while stretching out of the building towards the landscape, create a sculpture-esque feeling and also create big cantilevers which stand out as an ambitious engineering work.
Project gallery
Project location
Address:Ankara, Turkey
客服
消息
收藏
下载
最近




























