查看完整案例

收藏

下载

翻译
Architects:Marvel
Area:50000ft²
Year:2020
Photographs:Timothy Hurlsey,Greg Maka
Manufacturers:David Weeks Studio,Delta Millworks,Kawneer,Kirwin and Simpson,Pablo Lighting,St. Cloud Window
Structural Engineers:Silman
Architectural Lighting:Jim Conti
Construction Manager:Baldwin & Shell
Design:Jonathan Marvel, Lissa So, Zachary Griffin, Ariel Poliner, Bell Ying Cai, Siyuan Ye, Enrique Ramon, Mabel Plasencia
Mep Engineers:Buro Happold
Code Consultants:Code Consultants Professional Engineers
Cost Estimation:Dharam Consulting
City:Fayetteville
Country:United States
Text description provided by the architects. The new TheatreSquared building in Fayetteville, Arkansas provides a permanent home for Northwest Arkansas’s only year-round professional theatre. The theatre company currently creates nationally acclaimed productions that reach 45,000 patrons annually and has a significant educational outreach program that gives students across the region access to live performances and leading arts-based learning tools.
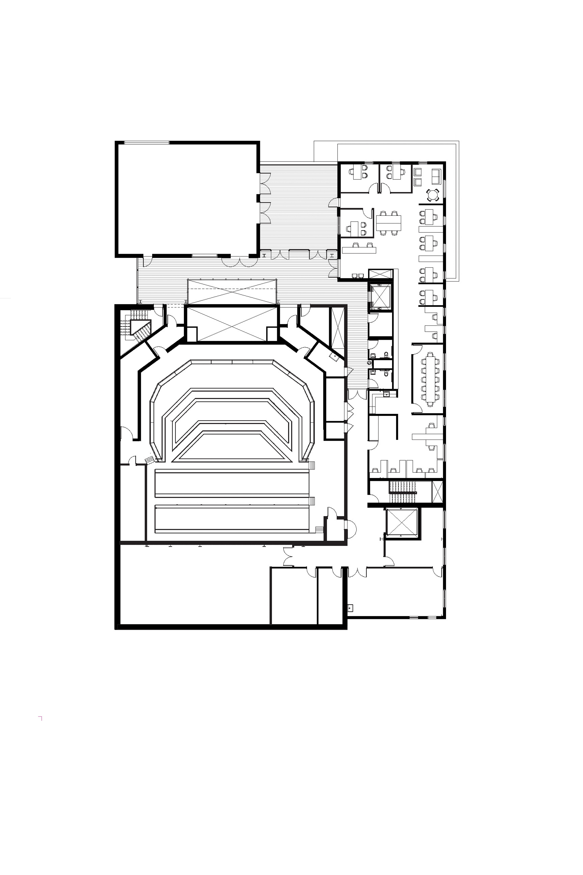
The new home extends this programming and public outreach with two intimate theatres, dedicated rehearsal and event space, offices, education, and community spaces, scenery, props, and costume workshops, a café and bar, and outdoor terraces on all floors. Accompanying the state-of-the-art performing and support spaces are eight short-term residences for visiting actors, writers, and directors – demonstrating TheatreSquared’s commitment to the artist community.
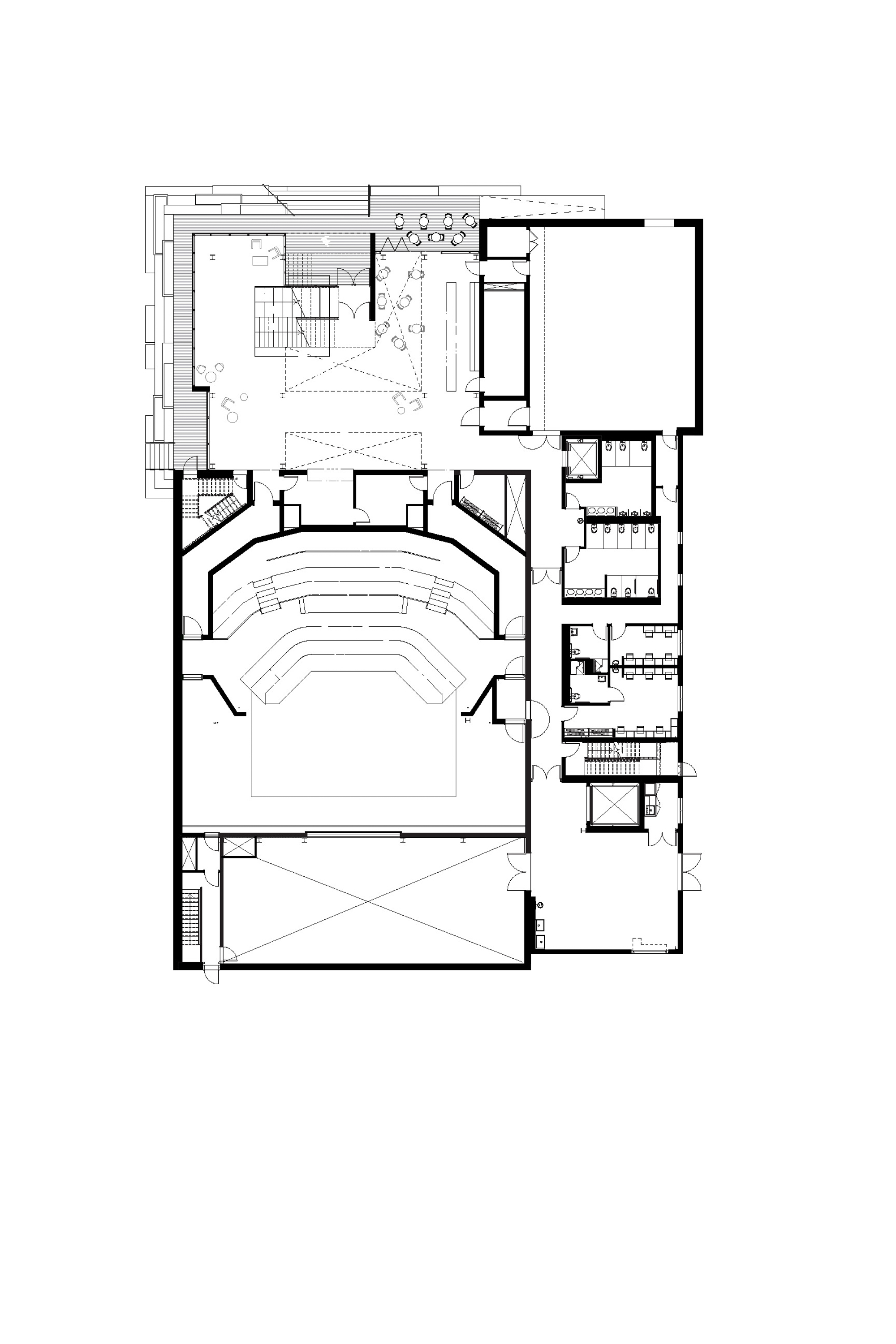
The design derived from the company’s vision statement: “theatre—done well and with passion—can transform lives and communities” and resulted in the performance space thought of as the “beating heart of the building.” The theatre was left exposed with a concrete envelope, visibly expressing itself on all sides – from the exterior, into the commons, and into the back-of-house corridors – letting the people locate themselves in relation to this building’s “heart.”
Working with theater consultants CharcoalBlue, Marvel created state-of-the-art mainstage and studio theatres capable of mounting complex, technically challenging productions situated within acoustically soundproofed envelopes, a crucial consideration due to the nearby active railroad tracks. TheatreSquared’s previous extra-wide stage shape was replicated in the new main theatre while audience capacity was increased by adding a wraparound balcony level while the back row of the orchestra level became only one row deeper than the original space. Audience members enter at the stage level, the same level as the actors – another experiential element that was preserved – further heightening the personal theatre experience that has become a hallmark of TheatreSquared’s performances.
In the natural expression of a theater as a place of storytelling, the materials used narrate the livelihood of the space. The building is an expression of the Northwest Arkansas region. A limited material palette was used with priority given to durability, flexibility, and the building’s technical and performance systems. Wood and concrete play a role in every space of the building, whether it’s constructed furniture out of trees felled from the site, recycled wood for interior finishes, or concrete that provides a durable finish, the materials are economically resourceful and efficient way.
At the core of TheatreSquared’s ethos is the outlook that theatre ought to be enjoyed by everyone. Frequent public programming within the Commons and a café set to be open daily is intended to broaden the theatre-going audience and entice residents and visitors to make the space their home. Performance capabilities extend out of the theatres with audiovisual and stage lighting systems integrated into the public spaces increasing both performance flexibility as well as the client’s ability to draw the public in.
Project gallery
Project location
Address:Fayetteville, Arkansas, United States
客服
消息
收藏
下载
最近




















