查看完整案例

收藏

下载

翻译
Architects:Stantec Architecture
Area:882m²
Year:2017
Photographs:James Brittain,Gerry Kopelow
Manufacturers:Altex,Armstrong,Kawneer,Lumenpulse,Viracon
Engineering:Stantec Consulting Ltd
Landscape:HTFC Planning & Design
Contractor:Bockstael Construction
Principle Design:Art Martin, Michael Banman
Project Architect:Matt Vodrey
Architect:Fletcher Noonan
Design Specification:Kerry Maskiew
Contract Administration:Stacey King
Client:Claudette Leclerc, David Thompsom
Building Envelope Consultant:Morrison Hershfield
Code Consultants:LMDG
City:Winnipeg
Country:Canada
Text description provided by the architects. Needing to expand space and offer greater flexibility for world-class traveling exhibits, The Manitoba Museum elected to expand and renew its temporary exhibition space, Alloway Hall. The Manitoba Museum, located at Main Street and Rupert Avenue in Winnipeg, opened in 1970 as a component of the Manitoba Centennial Centre (MCC). Its mandate is to collect, research, and share Manitoba’s rich history, culture, and varied geography.
MCC’s modernist campus was built under the aegis of the Canadian Centennial Commission and was purpose-built to house the Museum, Canada’s Royal Winnipeg Ballet, and the Winnipeg Symphony Orchestra. Post World War II, arts and heritage projects helped define modern Canada, but many Centennial facilities are now outmoded, worn, and require renewal to meet contemporary needs.
The existing Alloway Hall was constructed in 1994, and infilled areas of the campus’ plaza and front entrance. The addition, formally characterized by a barrel-vault roof, was a post-modern expression in a modernist milieu: put simply, an anomaly.
A landscaped passage divides the campus with the Concert Hall to the south and the Museum to the north. This outdoor public space invites pedestrians through the heart of the campus with enticing views into the culture and arts buildings. The initial vision of this Centennial project is to be a catalyst for renewal, which requires an intentional fit into the urban fabric; Alloway Hall completes this aspiration.
Along the passageway, the sunken Steinkopf Garden offers a quiet oasis to pause and to take respite. The linear garden includes falling water and airy trees. The expanded Alloway Hall leans in and opens a ‘picture window’ into the garden to engage the verdant thoroughfare. With this gesture, Alloway Hall makes a cultural overture, inviting pedestrians to experience the current exhibitions within.
The vaulted form of the pre-expansion Alloway Hall limited curatorial freedom by restricting the height and organization of exhibits. The rectilinear addition opens the space horizontally and vertically. Flexibility is found in the simple box with a single aperture that engages the garden and becomes a focal point. With this simple form, exhibition programming receptions and performances can comfortably be accommodated. The multi-functional space provides additional revenue for the Museum by facilitating a broader range of events, increasing the number of visitors.
The Museum is focused on history and includes culture, nature, science, technology, and sound and movement of the performing arts. Design materials were selected to impart ideological meaning and to also fit the building module of the structural grid. Glass allows a view into space, a proscenium, capturing a moment.
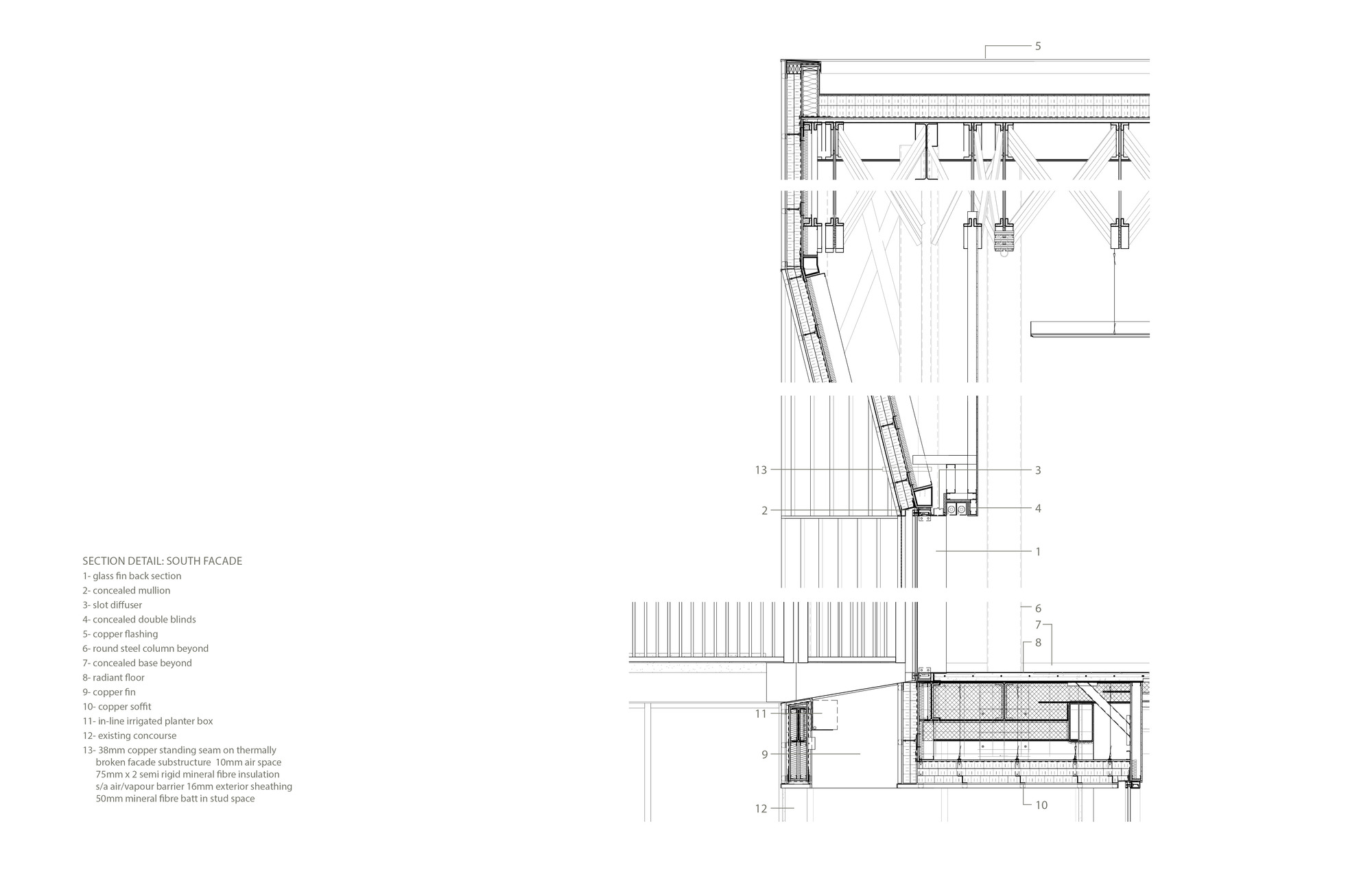
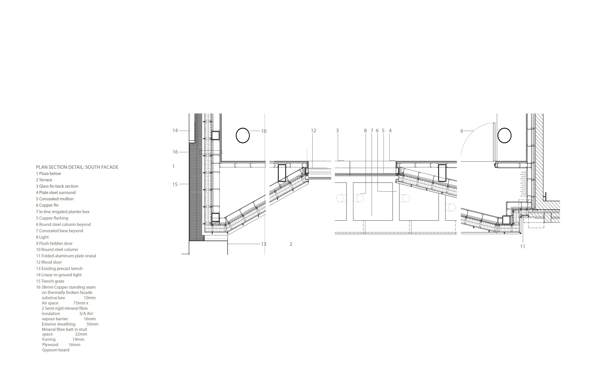
Tyndall stone contains fossils, frozen in time; precast concrete expresses endurance; and copper cladding patinas, altering in appearance over time, convey the passage of time. A regular rhythm, consistent with the modernist order, is expressed by fins in both windows and cladding. It is within this rhythm we find The Manitoba Museum restored and renewed to continue its vital cultural mission for future generations.
Project gallery
Project location
客服
消息
收藏
下载
最近
























